查看完整案例

收藏

下载
原房屋鞋柜不能满足业主储藏需求,于是拆除重新定做门厅左右两边到顶鞋柜储藏柜,遮盖原电箱于柜内,拆除原吊顶改为简洁石膏板平顶。原入户仿大理石砖与设计调性不符,但是下面是地暖排布不能轻动,于是在原地砖上面直接铺设微水泥,这样处理,不伤害原地面避免地暖出问题,且微水泥硬度足够,不惧踩踏,效果还好。入户空间整体是木白灰搭配。
客户第一次看到房屋,就被这9米长的落地窗吸引了,拍板买下,估计超爽落地窗是个重大诱因。以前的窗帘是厚重的欧式帘,调整为电动香格里拉帘,帘子闭合并不影响室内采光,影影绰绰仙气飘飘。沙发,茶几,边几皆来自网购,性价比不错。
整个公共区域客餐厅贯通,依次布置沙发观影,圆桌餐饮,长桌学习,一家三口可以在光线充足的公共区域共同休息,娱乐,学习,就餐。按业主的原话,他们要在自己的家共同成长。大量空间留白,不刻意造型装饰,保持简约,整个空间显得极宽敞,业主认为实现了客厅自由。原房屋门颜色不符设计调性,业主认为门质量还不错,予以保留,通过贴膜的方式改成白色,效果还行。
由餐厅看向客厅视角 圆桌是一家三口平时就餐地方
因为原客厅地砖下面是暖气,为避免施工破坏,所以保留了公共区域原地面砖,原吊顶上面是中央空调与新风,也加以保留,对原吊顶加以局部调整,也节约了预算。以前墙面的一些装饰比如软包一类予以拆除,大面积刷浅咖色与浅灰色乳胶漆,以呼应原地面砖色彩。电视墙造型简约,利于业主摆放他以前的音箱。
一个动线自由的开敞空间。紧挨着陈列柜的空白处应该摆放小孩用钢琴,目前钢琴还未就位,该处用吸音板外裹皮质做了硬包,以达到吸音效果
由客厅看往餐厅视角 客厅餐厅贯通一体
拆除了以前精装房的备餐柜及镜面,定制上顶储物柜及开放格展示架,业主可放置书籍与生活杂物。灰色与木色的搭配是业主喜欢的稳重调性。挨着展示架空出来的部分是业主女儿的钢琴摆放位置。条桌长2米4,业主全家可在这里工作,学习,做手工,家里访客多的话,亦可当大餐桌使用。琥珀色的透明工作椅与木色工作台搭配,并不突兀。
主卧是业主姐姐的独立空间,姐姐喜欢的色调搭配与业主夫妇喜欢的不同,还好只是卧室独立空间,设计师采用白色与浅橙色搭配,拆除精装房以前硬包改为白色与橙色硬包,搭配大面积白色乳胶漆,效果还行。
精装房原地面木地板偏深,重新铺装暖色系木地板,原吊顶保留微调,以前家具造型浮夸放弃了,通过网购重新添置了床,床头柜,写字台及灯具,性价比颇高。
保留了原飘窗大理石窗台石,灰色木板包裹飘窗墙面,搭配浅橙色硬包,灰色窗帘,更凸显白色小吊灯质感。
为避免破坏原精装房卫生间防水及地暖,卫生间设施及布局均未改动,卫生间采用浅灰色微水泥和橘色微水泥覆盖原来大理石及墙地砖,洗手台柜门黑色通过贴膜的方式改为白色,整体调性较以前明亮活泼。
儿童房布局做了重新调整,增加了书柜及独立学习的座椅,原吊顶保留,考虑到小女生审美,承袭主卧的调性,咖色,蓝色,浅橙色搭配。换掉了以前墙纸与床及窗台柜,网购了现在的床与云朵灯。
次卧为业主夫妇卧室,拆除原来深色木地板换成暖色系木地板,墙顶面刷浅咖色乳胶漆,保留了以前的大理石窗台石,承袭公共区域调性,卧室空间为白色,咖色,木色搭配,整体明朗开阔,原吊顶保留予以微调。造型简约,这个是业主喜欢且强调的。
书房为开敞式,与公共区域联通,这是业主夫妇在家办公区域,可随时与客餐厅家庭成员互动。业主家有许多书籍资料需要收纳,设置到顶柜子和透明吊柜做书籍储藏。长的工作台足够夫妇两人同时办公使用。后期女主人要摆放椭圆仪在这里,办公,锻炼随时切换。
业主家有大量锅碗瓢盆需要收纳,于是在厨房外设置小件柜作为补充收纳,原厨房实心墙壁开窗洞,使得厨房光线更为通透,也方便女主人在厨房操作时候与公区家庭成员互动,窗户也是传菜口,窗户下面是台面,咖啡机,饮水机可在上面放置。原厨房门改为长虹玻璃谷仓门,也是便厨房于采光。
调整了原精装房厨房布局,保留部分地柜,柜门采用贴膜的方式进行了颜色调整,增加吊柜与工作台面,原厨房墙砖拆除改贴白色墙砖,厨房原地砖保留,吊柜下方设置手扫感应灯带,墙面插座改为滑槽式,方便业主操作。整体是灰白搭配,厨房空间更显宽敞。
厨房一面墙做收纳设备柜,把以前散乱摆放的冰箱等物件做好规置,满足业主超多物件储藏。
原衣帽间柜子不太够用,存在空间浪费,所以保留了以前柜子,同时增加了定制衣柜,原柜子颜色过深,用贴白色膜的方式改变了柜门及内膛颜色,节约了预算,也使得空间更明亮不局促。
精装房改造门厅前后对比
精装房改造客厅前后对比
精装房改造餐厅前后对比
精装房改造主卧前后对比
精装房改造儿童房前后对比
精装房改造次卧前后对比
精装房改造卫生间前后对比
精装房改造厨房前后对比
精装房改造衣帽间前后对比
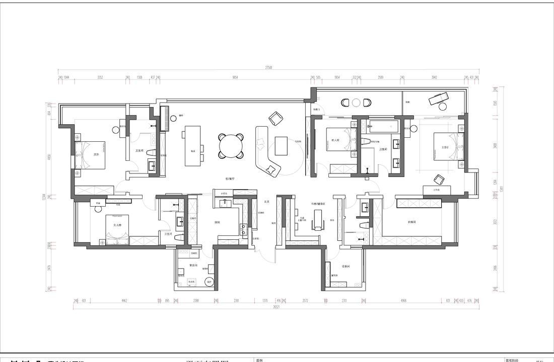
以上是房屋原始平面结构图,从图中可看出,原房屋布局相对于业主居住需求,是基本满足的,房屋公区拥有大的落地窗,采光条件非常好,没有必要对布局结构做大的调整。因为原房屋地下有地暖,屋顶天花有中央空调与新风系统,这些业主都希望保留,所以设计师在结构布局上只做了一些微调,避免牵一发动全机,增加预算,这个是精装房改造需要注意的问题。
以上是调整后房屋布置图 调整如下: ①原入户位置鞋柜只有一排,不能满足业主储物需求,调整为入户门厅左右两边为到顶鞋柜,左边鞋柜与公共区域小件柜相连呈L型,弱化了门厅垭口。②拆除原厨房部分墙体,让餐厅与厨房有窗户贯通,厨房外设置小件柜与水吧台,增加储物功能,厨房部分物件可储藏此处。同时女主人在厨房操作时候可以与在公区家庭成员互动。③门厅右边房间设置为开敞式书房,男主可以在此处家庭办公,且随时与公区家庭成员互动,因为是开敞式空间,女主打算在此放置跑步机,锻炼工作随时切换。④客厅餐厅一体,依次排列沙发观影区,圆餐桌,学习手工桌,陈列柜,钢琴,保证家庭成员在公共区域自由活动。
客服
消息
收藏
下载
最近

































