查看完整案例


收藏

下载
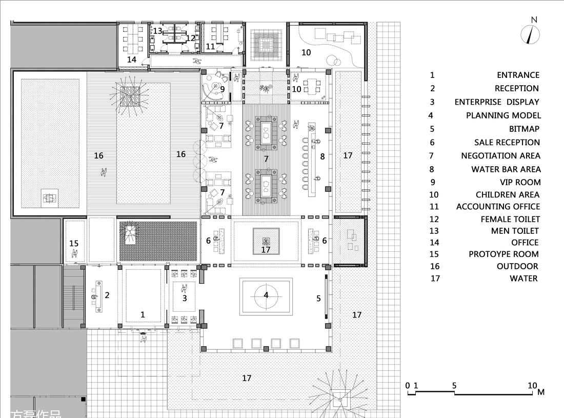
步入大厅,通过“借景” 手法,将颇具诗情画意的东方园林之景铺呈在眼前,一抹翠绿更是让整个空间灵动起来,巧妙而又极具视觉冲击。在阳光照射下,投影又成为景观的一部分,展示出自然与建筑的互动,活跃且适宜。一大排落地窗串联起室内外关系,正是光线的引入,让建筑、景观、室内形成有序的一体。沿着预接待吧台的动线向前穿引,便是整个销控区域。
预接待吧台与大厅讲究整体的对称平衡,通过巧妙的吧台构成形式、空间吊灯的位置,呈现灵动的立面关系,有效缓解空间的呆板。大面积深灰色石材,配以紫色壁饰花瓣式铺洒开来,夹杂一丝神秘感,东方韵味无限弥散。
利用建筑层高优势,在沙盘区上方创造层次丰富、光影虚实变化的几何造型,强化空间错落感。通过动轴引伸便是洽谈区。设计方案不希望洽谈区和接待区域过于直接,通过造景形式将两个空间自然串联并分割开来。花艺在静水面的映射下,光与影默契配合,有效避免了接待台前的空旷,也营造出了整体空间的美学秩序。
借由东方园林式的假山,打造出“未若柳絮因风起”的雪景,美如水墨画、细腻至极。这与围绕式洽谈方式布置相结合,巧妙处理好空间形态和陈设之间的关系。大尺度挑高设计,加上顶部有序交互的线条,让空间极具延展性,通透敞亮的照明效果搭配艺术性灯光点缀,使整体氛围更显大气与品位。该空间通过主体、功能位置、通透的序列式的立面关系,自然分割空间视线,同时又实现了将光线引入到室内的最大化。
水吧台以毛凿面的形式呈现,质朴却别具一格。而光线透射在吧台顶面,又与书架、吊灯以及顶部的木百叶形成互动,勾勒出缤纷的空间轮廓。粗犷肌理感的石材,又与花瓣式的吊灯形成材质上的鲜明对比,晶莹璀璨。
VIP区域原木色书架、竖向的木百叶有效阻隔区分空间,与周围关系相互连接又互不打扰,形成半开放式的私密空间,整体保证了空间的互动性与独立性。在这个“书卷留白笔墨浓”的区域,营造出静心一隅,构筑具有人文气息和品质感的氛围。
深灰色意大利火山石与柔和的沙发茶几相得益彰,互为映衬。而光线照射进来更是活跃了整个空间,落地窗外便是庭院。水景区域一只白天鹅正在梳理羽毛,而水畔一侧的休息区域更是增添了一缕闲情逸致,营造一种静谧惬意的氛围。
设计师方磊表示:”我们希望借由未来之光售楼中心,塑造一种都市生活形态。”循光而至,探寻未来,这里既有东方情韵的传承,又有现代设计的妙笔。承载着万科光系的高端定位,万科未来之光以光的力量于百年长江路照彻东城未来人居,谱写合肥东城发展的新篇章。
项目名称 | 万科 未来之光售楼处
项目地点 | 安徽 合肥
项目面积 | 700平方米
完工时间 | 2017年5月
设计公司 | 壹舍设计
设计师 | 方磊
参与设计 | 马永刚、蒙程鹏
视觉陈列 | 李文婷 周莹莹
主要材料 | 意大利火山石、橡木染色、蒙古黑石材毛凿面、山西黑石材、和纸、不锈钢镀 黑钛
摄影师 | 张静
客服
消息
收藏
下载
最近




















