查看完整案例


收藏

下载
概念方案。 项目位于峨眉山脚下山与湖别墅区内。甲方粑粑是在成都工作的斜杠青年,此房屋为周末和假期所准备。整栋住宅设计了三个独立套房和一间多功能茶室,分别位于二三楼。老人房、厨房、餐厅、客厅都设在一楼,为了方便老人使用,卫生间配置了无障碍设施。
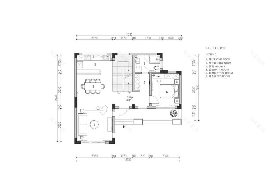
1F平面规划图。拆除楼梯间的墙体,引入更多的自然光线。拆除原本厨房的墙体,做开放式厨房,空气也对流了起来。社交厨房让周末的亲子活动更加的丰富多彩。
2F平面规划图。原本露台的区域,搭建出主卧的玄关部分,让空间更有仪式感。二楼的多功能房间,给与阅读和品茶的静谧空间。露台的鹅卵石给了更多大自然的气息。
3F平面规划图。保留坡屋顶的层高优势,增加阁楼空间,让亲子之间有了互动也有了照应。榻榻米的设计也让偶有居住有更多的新鲜感。
我们大量采用原木、留白的处理手法,营造自然放松的度假氛围。
柔和的光线,温润的色彩是我们这次打造度假房的主题。想让平时忙碌的甲方粑粑到了周末有一个完全放松的状态。不需要过多的装饰与色彩,自然,舒适是我们想要给与他的另一个家。
利用建筑原有坡屋顶层高和空间优势,设计了可供阅读和亲子活动的阁楼,丰富形式也增加空间的趣味体验。
尝试设计的多种可能,赋予空间可生长的延展性。
亚麻、纯棉等物料的加入,强化了自然的属性。通过材质柔和光线,拉近自然的感受,始终贯穿整个设计思路。清新的空气,温柔的光线,是假期最佳的伴奏。
三楼榻榻米房间半开放式卫生间让原本狭小的空间变得有趣。
客服
消息
收藏
下载
最近




























