查看完整案例


收藏

下载
原有外立面经改造之后,传递出 凝聚书院气息的灯火阑珊
从街道上看,餐厅的外立面通过精心控制的窗洞、背后的灯光配以外凸的竖向侧板,在一小片竹林的掩衬之下若隐若现。
进入室内之后,这些位置和尺寸都经过精确设计的窗户,就成了向外观赏竹林院落和梧桐街区的取景框。
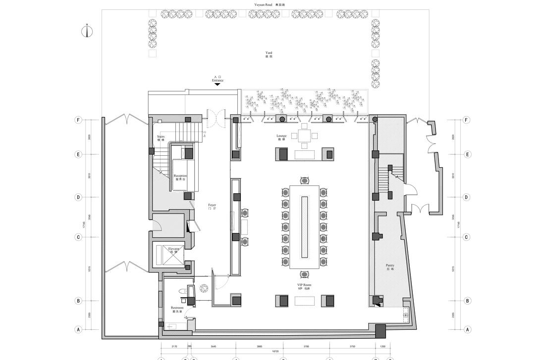
穿过院子,进入主入口人行通廊,作为室外通往餐厅的过渡空间,它依次连接了疏散楼梯、前台、客用电梯以及端头较为私密的一层贵宾厅的大门。幽静的通廊传达出静逸深远的第一印象,而它与左侧包房之间的少许半透隔断,为客人的步行过程中创造出引人入胜的空间感受。
一层 贵宾厅
利用一层相对高大而开阔的空间,特别设计了可供12~18位贵宾使用的特别大包房,一个空灵而又肃穆中正的厅堂。一整块巨大尺度的大理石桌面设计,不仅仅在形式感上让人为之一振,桌面中央一条水道的结构造型,更是设计了一幕提供独特用餐体验的表演,只有亲身体会一次在这间包房用餐的经历,才能更加体悟设计师的用意所在……
二层散座区采用了木质窄长的书架和壁龛相结合的形式作为空间隔断,使空间在自由而开放的同时营造出更多的书香气韵。
地面的处理方式:看似如同青砖交错的地面实际是采用了现代同质砖,经过切片后纵列码砌的方法,兼顾了地面实际耐磨防滑的功能和传统金砖做法的真实质感。这一系列处理手法和工艺细节,是对材质的可能性和表现力的深度挖掘,用匠人精神辅之以现代先进工艺,最终呈现出的“极简”,不是简单的简单,而是复杂之后韵味深长的简单,这是一种追求极致的设计态度。
三层以原有柱网为轴线,靠窗的两侧采用独立的小包间的形式,并通过一个回廊进行串联。利用轻纱般质感的半透玻璃隔断与实木柜体隔墙、推门之间的对比,让每个小空间都呈现出明暗交叠、若即若离的悠远和空灵。
如果说平面是展示了空间在功能上组织的逻辑性,那么剖面则传递出更多空间设计的情感体验。透过纵向的观察,不难发现除了电梯和疏散楼梯等垂直空间外,餐厅的南北中心区域设置了一道与通廊交错贯穿的天井,配以变化丰富的木格栅作为画面,天井从视觉上将一、二、三层联系成一个整体。室内每层的顶面和立面以白色为基调,采用适当的镂空图案让空间界面在宁静和丰富之间达到一种平衡。天光至上而下,明暗变化的气韵在各层空间中轻轻萦绕,塑造出一种柔和的韵律感也给人更多的想象空间。
2015/2016/2017连续三年 荣获【亚洲BEST50最佳餐厅】
餐厅空间无论是整体意境的营造,还是节点方式取舍上,都表达了设计师对素食独到的理解:“素”体现在慎密的梳理、细致的取舍、悉心的演绎。“素”空间更多了对人的感受和内心的尊重以及对人与人之间交流的关注。轻松安静的休憩不仅仅为了平衡城市生活的繁重和浮躁,更是整个生活的真实存在的一部分。基于这样的设计理念,素餐厅没有显性的标示,没有清规戒律般的局限,“素”的状态是更多的包容,是对“多”与 “繁”的理性制约和收敛。
曾有哲人说过,空间是可以驻留休憩的,它因限定而生,限定的不是空间的边界,而是万物生长、情感交融场所。素餐厅的设计用意,是让空间承载更多的书院气息,提供静心养性、吐故纳新的休憩场所,在这里品用素食,更像是人们在现代都市生活中,身心处于繁重、束缚之下的一种释然放松的状态,一种回归本真的轻盈和闲适。客人行至于此,三五知己畅叙幽情,灯火阑珊品察美食,涉园寻趣怡然自得。体验青黛地面的厚重、白素墙壁的空灵、实木格栅的温暖,半透隔断的轻盈,在对比和融合中相映成趣,唤起了几分被遗忘的书院氛围和自然禅宗气息。
项目名称:福和慧 健康素食餐厅
项目地点:上海
项目面积:750平米
完工时间:2013年
主要材料:黑色大理石、黑色地砖、胡桃木、云纹玻璃、织物硬包
客服
消息
收藏
下载
最近
























