查看完整案例


收藏

下载
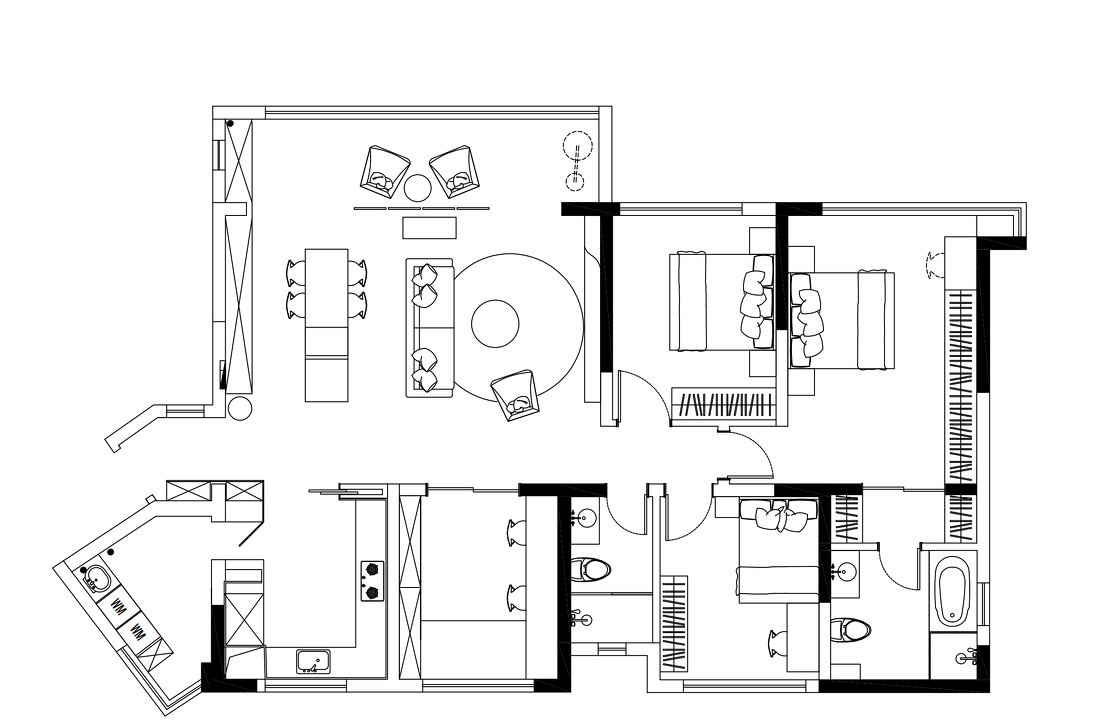
作为一套精装房改造项目,原始的空间分布比较规整,不需要大面积的墙体新建拆改,只用进行小范围的空间优化:
❶. 入户+厨房+生活阳台:原始户型中,餐厅、生活阳台和厨房都集中在入户左侧,每个空间使用起来都非常局促。因此我们将厨房空间扩大,生活阳台门后移,以隐形门的形式,与从入户延伸而来的饰面板融为一体,优化空间的同时,扩充鞋柜面积,削弱入户门的这道“拐”。
❷. 客厅+阳台:将客厅和阳台打通,中间以屏风隐约阻隔。阳台放置藤编休闲椅和猫砂盆、猫爬架,作为人和猫咪的休闲玩耍区域。
❸. 主卧+衣帽间:新建移门,移门与卫生间之间的区域,作为小的衣帽间,与主卧衣柜共同组成细致的收纳系统。
在家具的选择上,紧扣“度假放松”的主题。淡雅图纹的地毯、形似花瓣的蚕丝吊灯,与实木、藤编、棉麻等元素融合,大面积使用朴素的自然材料,避免华丽、精致。
客厅阳台打通后封落地窗,再装上木质百叶帘。百叶帘全部合上,光线全都隐匿起来,室内昏昏暗暗的、壁炉闪着火光,好像一幅油画。
将开未开时,阳光被分割成一条一条的,给室内的光景都带上一层木色的滤镜。全开则窗外景色一览无余,现场观摩窗外的高尔夫球赛。
电视墙区域的月球灰涂料+弧形过渡+壁炉,配合嵌入的木台,使用起来稳稳当当,古朴、粗犷之感扑面而来。
屋主喜欢涮火锅、包饺子,一家人围坐在一起,热热闹闹。但同时,这也决定了需要较大的伸展空间,还得小心油溅在桌子上。于是我们采用岛台+餐桌结合的方式,充分利用餐厅尺寸,一劳永逸地解决这个问题。
异形岛台为现场制作,侧面留有轨道插座,底部留有储物柜。岛台高度略高于餐桌,餐桌抽出后可增加3个就餐位,亲朋聚餐一点也不局促。
超大的餐边柜,承担了客餐区的收纳需求。中空区域可以放置咖啡机、直饮水、咖啡茶叶、杯具、抽纸等,距离餐椅不过一只手的距离,需要什么转身就可以拿到。
柜子界的实力派,也需要凹造型:双色门板与石材组合,凸显体块感而不沉闷,同时巧妙地遮挡配电箱和承重墙。
想要悠闲的度假风,再来一点点复古的feel?看看是怎么实现的吧!
改造之后,厨房三面都可有效利用:右侧嵌入冰箱、烤箱,中间嵌入洗碗机,左侧的抽屉+拉篮+平开柜则用于收纳餐具、刀具、调料、米面粮油等,保持台面的整洁度。从右侧到左侧,冰箱→洗菜→切菜→炒菜→上菜一气呵成。
青苔绿墙砖,灰蓝色橱柜,搭配从入户延伸而来的石纹颗粒板,简约大气的体块感扑面而来。生活阳台门很好地隐藏其中,丝毫不会破坏空间的整体性,治愈强迫症。
厨房移门开合,开放式、封闭式随意切换,爆炒时也不担心油烟跑出去。
从藤编移门进去,就是书房区域。
屋主说:“因为我俩职业的关系,之后可能会不停地购置专业书和其他书籍,所以书房的储物一定要够”。
书桌+书柜+矮榻的组合,完全满足两人使用;洞洞板可以挂放耳机、装饰画等。
矮榻供给两人小憩,头顶的小柜子专门用来收纳毯子、抱枕,不用的时候塞进去就好。
黑色门板、氛围灯带、藤编、木质百叶等元素融合,小小的房间里,男屋主想要的科技感、女屋主想要的复古风,巧妙地融合在一起。
不仅停留于满足需求,还要为他们的实际生活做细致考量。
明厅暗卧,是屋主明确提出的一个要求。两人有时会值夜班,回到家后只想舒舒服服地躺床上补觉。
因此,主卧使用深色艺术涂料、深色墙纸以及红橡木藤编衣柜。在灯位布局上,仅设计床头、床尾的暖白色局部光源,让睡眠不受灯光打扰,真正实现“明厅暗卧”。
在收纳方面,按照屋主两人的收纳习惯,做了细致的分区。
女屋主希望两人的衣物分开放,“当时想着给他一个单独的柜子,自己收拾,收拾成啥样我也不想管,不想打开那个柜子哈哈哈哈~但是可能之后住进来了,还是得帮他收拾一下。”
新建移门,并在内侧做了一个小的衣帽间,作为次净衣、洗浴衣物、潜水设备(脚蹼等)的收纳区,与主卧衣柜共同组成细致的收纳系统。
次卧用作屋主父母的偶尔居住,和主卧一样,依旧延续了较深的色调。
两人,两猫,三餐,四季。希望家可以陪伴他们,十几二十年都不会厌烦。
观景、泡茶,藤编屏风隐约一遮挡,阳台就变成屋主单独的放松区域。眼睛可以远眺,脑袋可以放空,环绕四周的都是自然材质……度假的状态,这不就来了吗?
这儿也是猫咪的地盘,两只猫主子的日常是:一只趴在猫爬架上,懒洋洋地晒着太阳;一只随时都在竞走、四处巡视。主人回家时,它们会粘人地跟前跟后,在脚边环绕。
客服
消息
收藏
下载
最近

























