查看完整案例


收藏

下载
骨子里的东方意,情致间的时尚镜——GSD
The essence is oriental, without losing style and fashion
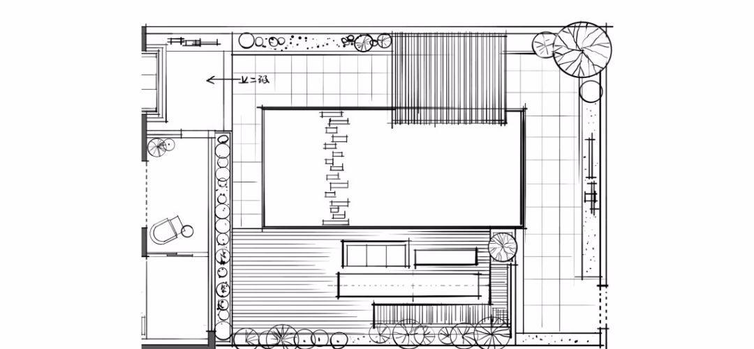
院落平面规划PLANER FUNCTION
平面规划PLANER FUNCTION
灵感来源INSPIRATION
院落概念(局部)FACADE
“景贵乎深,不曲不深”,因此院落布局注重曲折回环,同时采用空间渗透的手法,通过形象墙、连廊,使两面的景色相互可见;“步移景异”,空间转换自然和谐。
餐厅(意向)
餐厅
厨房
客厅(意向)
客厅
客厅(意向)
客厅
客厅
将当代制作方式与传统色彩结合,大气内敛的东方元素在简洁自然地现代都市基础上,变得温婉而摩登。所谓的“中国品质”、“重视生活方式”,其实就是在细节中传达善意之美。
老人房
老人房
儿童房
儿童房
主卧
主卧
客服
消息
收藏
下载
最近





























