查看完整案例


收藏

下载
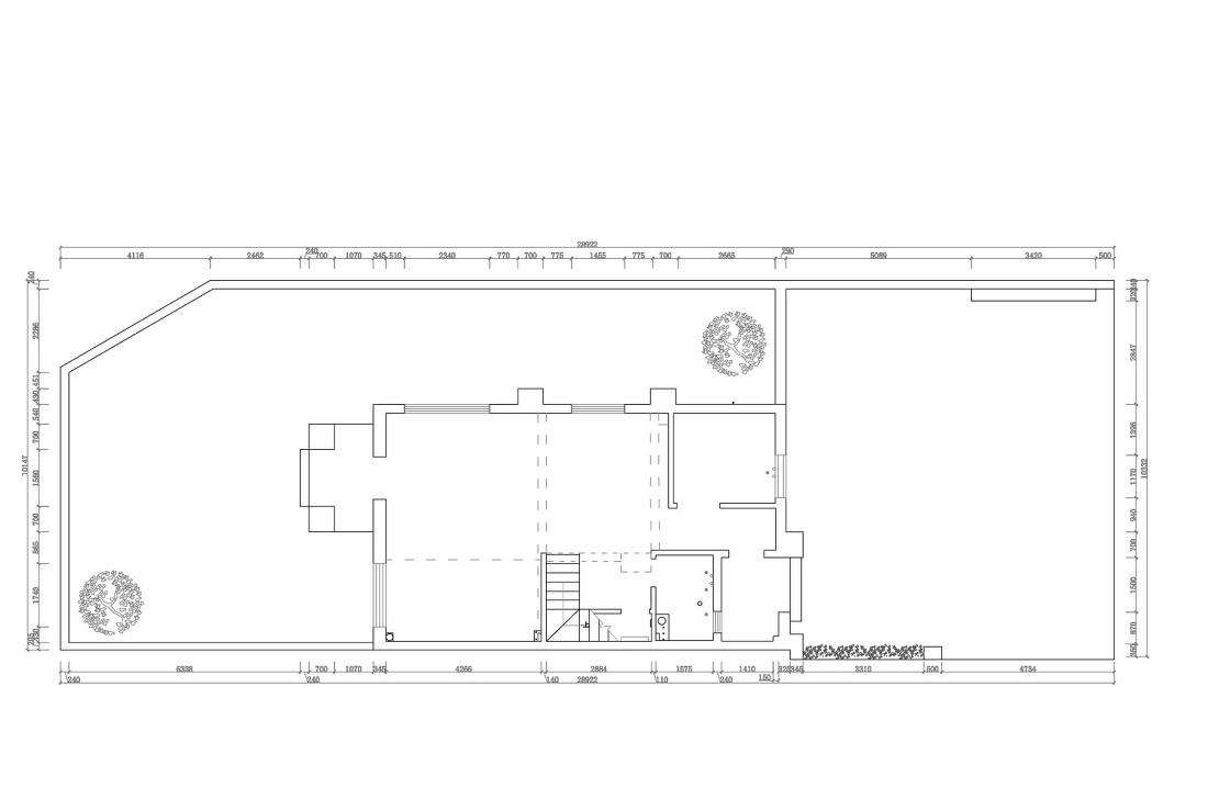
一层原始平面图
一层平面布置图
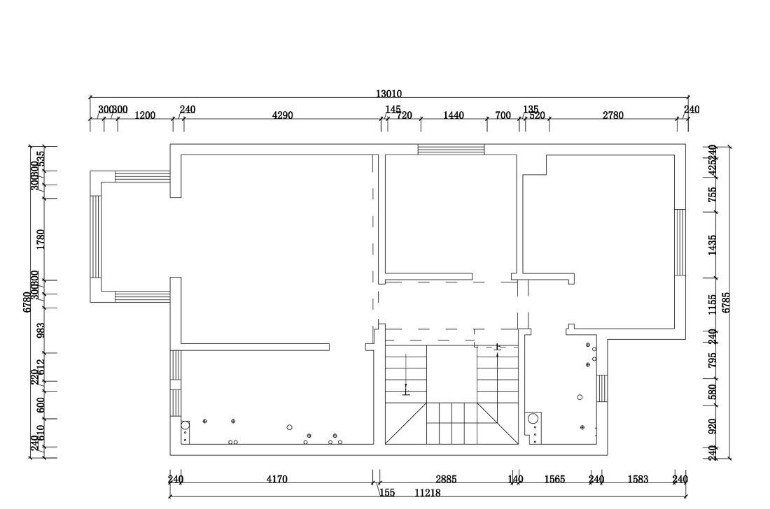
二层原始平面图
二层平面布置图
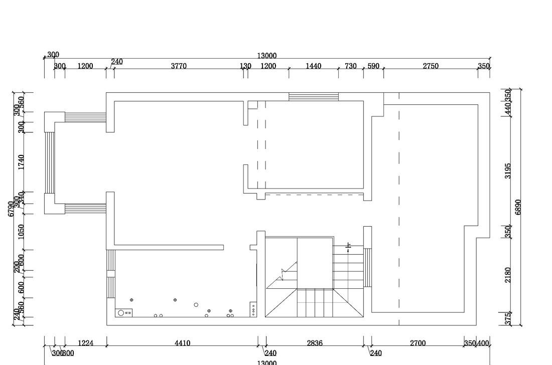
三层原始平面图
三层平面布置图
入院门+停车位
踏入前院,迎面过来的是蔷薇花的气息,一整面蔷薇花墙,不仅满足了客户喜欢花的需求而且还利用蔷薇花隔开了和邻居的空间,双方各不打扰,还有一处好风景。
前院里采用防腐木做成的地台,通往后院去的小道两侧一侧采用枯山水做的景观,另一侧是用鹅卵石做的,角落里种了一棵石榴树,树下是围绕着一片绿植,再加上感应灯、地台灯、太阳能灯营造出身在闹市,心在大自然的氛围。
通完后院去的小道上,是用青石板铺成的地面,下台阶处的两旁还有镇宅石狮,一侧是竹子,另一侧是绿植
进入后院,下沉式院落设计,休闲的好去处,假山、花草、水系,三五好友聚会,晒晒太阳读读书,种树养花,品茶赏月,尽情享受美好时光
下沉式院落设计 悬空踏步设计
后院俯视图
多功能玄关柜,将衣物区、置物区、鞋区集于一体,换鞋凳在旁边,看起来整洁有序。
开放式厨房设计,家用电器一应俱全,有格调,与家人的互动性更强
磁吸灯设计,内嵌式冰箱 ,让空间看起来简洁大气,
二分离洗手间,洗手台放外面,可以同时满足洗漱、如厕的需要,节约时间
客厅
电视打破以往放中间的概念,放在一侧,嵌入式壁炉设计,突出氛围感,一方面装饰,一方面取暖。
沙发背景墙采用半装饰半书柜的设计,使得空间有层次感,楼梯下区域流水石墙面造型,绿植区为时尚现代的楼梯间风格增添了一份原始大自然风味
U字型楼梯,格栅造型,内嵌灯带,楼梯踏步感应灯带,空间感大气
二楼走廊护墙板内嵌灯条,卫生间透光不透影半墙钢化玻璃造型,空间更显大气
主卧床头背景墙格栅板加硬包造型,磁吸灯设计,氛围感强
二楼主卧
U型衣帽间设计,充分利用各个转角空间,实现了强大的收纳功能
大落地窗设计,视野辽阔,永生苔藓设计,给空间增添生机
干湿分离设计,一侧式空间布局,能够满足夫妻同时使用,壁挂式马桶设计,时尚、个性、方便清洁,减少噪音,入墙式花洒,高大上的感觉,简单大方且节约空间,壁龛设计增加收纳空间耐用又好看
洗衣房
床头隐藏式书柜,格栅板造型,空间层次感加强,简洁大方
三层男孩房
写作阅读区,满足孩子学习的需要
阳光房泡澡区,边洗澡的时候,还能够看窗外的天空,晚上还可以看星星,非常的惬意享受
干湿分离设计,一侧式空间布局,壁挂式马桶设计,时尚、个性、方便清洁,减少噪音,入墙式花洒,高大上的感觉,简单大方且节约空间,壁龛设计增加收纳空间耐用又好看
实木造型加钢化玻璃,书房空间不沉闷,通透性加大,空间感辽阔
折叠门设计,满足办公需求
阳光房
卡座,休闲区,钢琴声、蔷薇花、在这里喝茶聊天,营造出浪漫精致的氛围感
在夜晚的时候看星星,在下雨的时候听雨声;在夏季的时候听虫鸣,在冬季的时候看雪花,找一个合适的角落,享受一般人享受不到的惬意安然
客服
消息
收藏
下载
最近








































