查看完整案例


收藏

下载
业主喜欢家里光亮一点,在接触装饰公司的方案后取消了原本存在的岛台设计。因为岛台设计让原本狭窄的餐厅空间更显的拥挤。
客厅的空间不足以放置常规的餐桌。所以在设计时考虑到用卡座解决空间狭窄的问题。同时封掉了原本卡座背部门洞的位置,将卡座内嵌进去100mm。这样空间的舒适性得以提高,也保证了美观。因为空间的造型不是很复杂,考虑到空间平衡采用了灯光元素的植入,提升了空间的平衡之外也保证了餐厅位置的照明。
客厅在跟业主沟通后电视背景墙试过多稿设计,考虑到业主的钢琴的摆放在墙面也是一种元素,所以采用了木饰墙面的造型,让空间显得简洁又大气。落地灯的植入让空间有了一种活力,灰色沙发配黑色炫酷的地毯让整个空间安静又有调性。
业主有大量藏书,再改过几稿之后业主选择了这一稿。通透的玻璃柜方便选书,也保证了私密性。双人沙发客可拉开兼做客用床,让空间的使用达到最大化。大胆加入推拉门设计,让书房空间可开可合。
业主考虑儿子的成长,建议是儿童房的设计不要太儿童化,所以在配色上采用了比较稳重的浅蓝色,墙面作为转换用了两种壁布。让空间即统一又有层次。
床头个性的壁灯让空间多了灵动,白色柜体让空间显得干净利落。
女儿房考虑孩子只有4岁,用到了色彩丰富的壁纸设计,让孩子在空间中觉得有安全感,。同样的考虑到长期使用跟收纳,采用了类似榻榻米的设计,让孩子在不同的成长阶段都有空间可变性。
主卧简洁明快,在满足收纳、梳妆、休息的功能之后采用了简单的空间动线规划,让卧室与户外的卧室阳台有了链接。将原本通光不是那么理想的窗户增加了500mm的高度,增大了自然光的介入,提升了空间的舒适性。
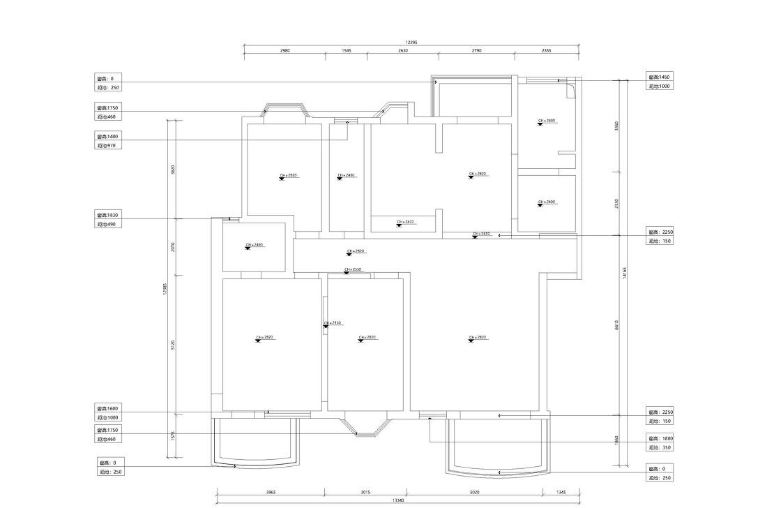
这是测量之后的原始结构图。
用于方案前期沟通及定稿的手绘平面稿。
全屋Sketchup模型的推敲建模。(厕所、厨房因为已经由装饰公司施工,不在此次设计范畴内)
客服
消息
收藏
下载
最近













