查看完整案例


收藏

下载
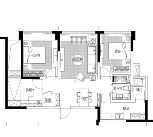
这是一个小户型的设计,72平米的三房,在有限的空间里尽可能多的储藏空间,这是颇费脑筋的。所以设计师在利用了每个空间,在有可能的情况下都做了柜子增加储物功能,当然要和整体设计融合在一起,当然最后呈现的效果也不错哦。
米色瓷砖将空间承托,驼色的墙纸,淡淡的奶咖香
换个角度看餐厅
在客厅里找了一块地做成储物间,非常实用
客厅一角
白色还是白色,整个白色浑然一体,橱柜下的灯光,让食物越发有食欲,为了增加厨房的空间感,吊柜做成白色,地柜为深色,地柜耐脏,吊柜也不显得压抑。
深色驼色的窗帘,隐约的白纱,透着春日慵懒的阳光
浅驼色的墙纸烘托出白色的墙软包,这个家很温馨
卫生间的柜体有很多收纳空间,镜面被打灯的处理方式,让空间增加了许多氛围
深红色为主题的主卧让人越发安静,窗台上,来我们对两子??
书房的色调比外边的稳重点,中国红却是不变的色彩
餐厅是一家人品尝美食和交流情感的地方,灯光照的餐厅暖暖的,心也暖暖的。内嵌入墙体的置物柜可放酒、主人各地收罗来的好物件,美观又实用。
客服
消息
收藏
下载
最近














