知末
知末
创作上传
VIP
收藏下载
登录 | 注册有礼
知末案例   /   餐饮空间   /   快餐店

学街秀兰麻辣烫室内设计

2021/01/08 00:00:00
查看完整案例
微信扫一扫
收藏
下载
学街秀兰麻辣烫室内设计-0
门头
学街秀兰麻辣烫室内设计-2
调料区
学街秀兰麻辣烫室内设计-4
散座区
学街秀兰麻辣烫室内设计-6
卡座区
学街秀兰麻辣烫室内设计-8
卡座区
学街秀兰麻辣烫室内设计-10
实景照片
学街秀兰麻辣烫室内设计-12
实景照片
学街秀兰麻辣烫室内设计-14
实景照片
学街秀兰麻辣烫室内设计-16
实景照片
学街秀兰麻辣烫室内设计-18
实景照片
学街秀兰麻辣烫室内设计-20
实景照片
学街秀兰麻辣烫室内设计-22
实景照片
学街秀兰麻辣烫室内设计-24
实景照片
学街秀兰麻辣烫室内设计-26
实景照片
学街秀兰麻辣烫室内设计-28
洪雅学街航拍
学街秀兰麻辣烫室内设计-30
街道概念分析
学街秀兰麻辣烫室内设计-32
街道概念分析
学街秀兰麻辣烫室内设计-34
原始建筑平面图
学街秀兰麻辣烫室内设计-36
平面布置分析
学街秀兰麻辣烫室内设计-38
平面布置分析
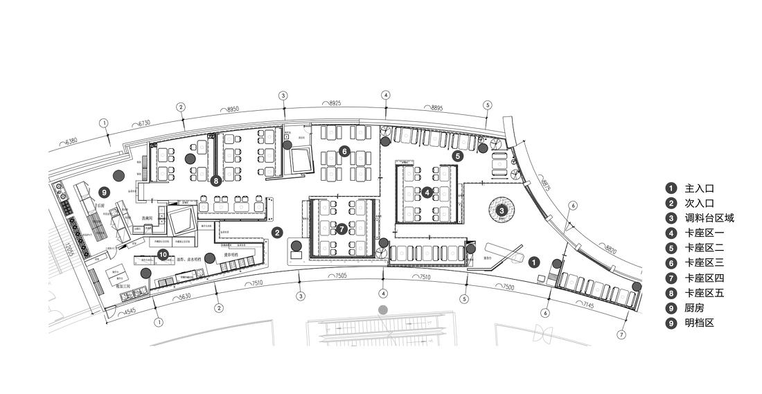
学街秀兰麻辣烫室内设计-40
平面布置图
南京喵熊网络科技有限公司 苏ICP备18050492号-4知末 © 2018—2020 . All photos and trademark graphics are copyrighted by their owners.增值电信业务经营许可证(ICP)苏B2-20201444苏公网安备 32011302321234号
客服
消息
收藏
下载
最近