知末
知末
创作上传
VIP
收藏下载
登录 | 注册有礼
知末案例   /   餐饮空间   /   快餐店

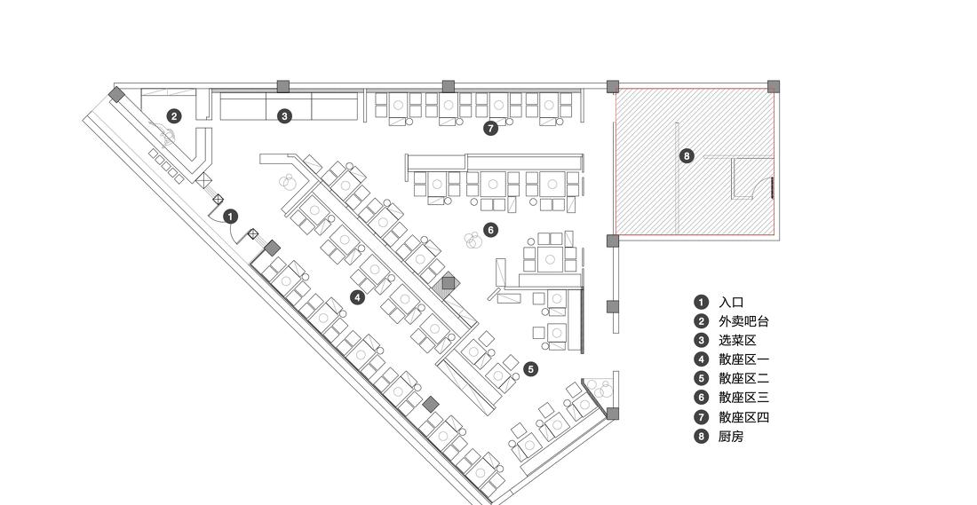
牛肉王牌串串 · 签王之王概念店

2021/01/06 00:00:00
查看完整案例
微信扫一扫
收藏
下载
牛肉王牌串串 · 签王之王概念店-0
门头
牛肉王牌串串 · 签王之王概念店-2
散座一区
牛肉王牌串串 · 签王之王概念店-4
散座二区
牛肉王牌串串 · 签王之王概念店-6
散座三区
牛肉王牌串串 · 签王之王概念店-8
牛肉王牌串串 · 签王之王概念店-9
南京喵熊网络科技有限公司 苏ICP备18050492号-4知末 © 2018—2020 . All photos and trademark graphics are copyrighted by their owners.增值电信业务经营许可证(ICP)苏B2-20201444苏公网安备 32011302321234号
客服
消息
收藏
下载
最近