查看完整案例


收藏

下载
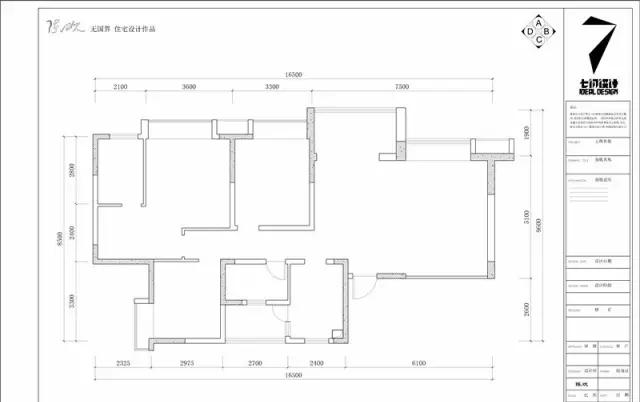
原始户型图
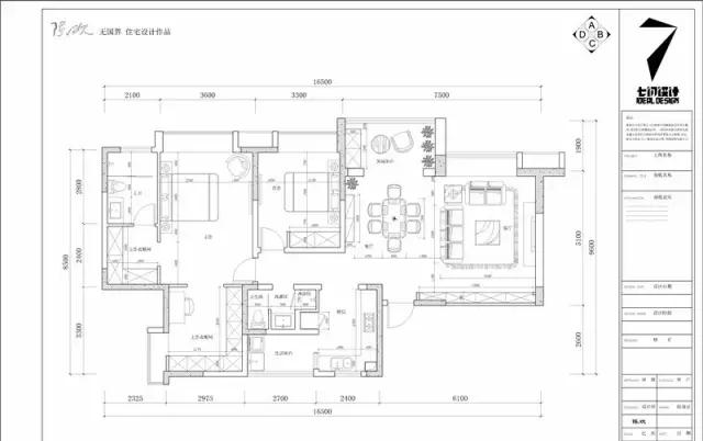
平面设计图
包括客厅、餐厅、厨房等在内的公共区域,被打造成了开放式空间。
客厅并不以沙发为中心,富有设计感的单椅错落摆放。
将飘窗布置成沙发的样子,营造出轻松自在的氛围。
实木餐桌搭配清新植物元素,营造自然美好的用餐环境。
餐厅外的阳台封进室内,让餐厨空间变得更实用。
深色系的橱柜低调中透露着质感,实用过程中也比较好清洁。
绝大多数装修希望房间越多越好,这套房子则反其道而行之。因为一个人住,所以将其中一个房间与主卧打通,形成一个带有书房、梳妆台、大小双衣帽间、卫浴间的超大卧室。
保留一个客卧,灰绿色搭配灰色,安静舒服的视觉效果。
客服
消息
收藏
下载
最近















