查看完整案例


收藏

下载
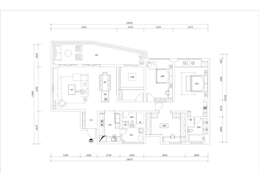
原始户型除厨房、生活阳台和卫生间,其他部分拆除的墙体,在我接手之前,客户他们就全部打拆掉了。根据房子框架结构和客户的需求进行全新的功能分区,独立的入户空间,宽敞的客厅,餐厅与西厨,休闲阳台,保留两个卧室区域,一个多功能房活动空间,衣帽间,所有空间物尽其用。
客厅——深色木墙板彰显自然格调,电视墙白色墙板与黑色形成对比,加上电视柜石材运用,在施以灯光烘托,无需繁复造型也有十足个性。
餐厅——材料、色调与客厅风格保持一致,岛台整合了收纳与清洗,满足西厨使用功能。餐桌上方是小巧的吊顶,拉开窗帘我们可以亲切的感受到大自然的晨光与暮色,一日三餐在这里会让你心情舒畅沉静其中。
主卧室——卧室进门正对的造型柜体设计,满足储物的同时,增添设计,床头背景的独特设计,巧妙运用材质、色彩,冷而不烈,彰显质感。
衣帽间——玻璃门与木质门的结合,玻璃门采用透明可以看清楚内部结构,灯光的设计巧妙与咖色相称,增添了视觉感。衣帽间为业主小姐姐考虑的梳妆台,既方便又节省空间。
多功能房——采用榻榻米功能,储物与休闲一体(ps:小姐姐喜爱打麻将,升降桌后期直接考虑成了升降麻将桌),装饰就比较中式化,所以柜子设计考虑黑色系,与其他空间呼应,不会让多功能房特别突兀。
客服
消息
收藏
下载
最近












