创作上传
VIP
收藏下载
登录 | 注册有礼
知末案例
/
班帝尼设计
疗愈系混搭风
2019/09/07 00:00:00
查看完整案例
微信扫一扫
收藏
下载
分享
你可能还喜欢
换一换
五影之家
Dietschiberg 山铁路谷站 · 室内设计之美
02 隐藏住宅
巴西 C 住宅 | 闹市中的绿洲
嘉御庭
光影空间
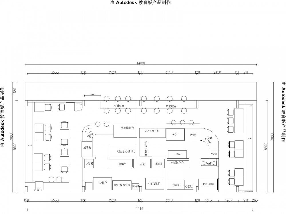
这次是两个店面的同时设计,因为在一个空间,一个是先生的烤肉吧,一个是杨小姐的自创日式甜品店,所以空间过渡,设计师也是很用心去处理这之间的关系;烤肉吧有一点美式乡村的感觉,材质上多用了复古的板材。
日式甜品加入了一些混搭的金属质感的顶面设计,随着客户群体的年轻化和审美的综合性,准确说我们把她定义为混搭风
BDN班帝尼设计| 主题色彩酒店
托比旗帜
班帝尼设计丨平层丨远程设计的开放式厨房
大女孩的潮流文艺空间
班帝尼设计
班帝尼设计丨平层丨家有繁花似锦 其乐融也
豆蔻时光 | 温馨简约的三口之家设计
北欧风家居,打造温馨生活空间
居家版生活 house | 木质与白墙的美学
莫丽卡的梵高星空
象牙塔·life house
《花间》平层设计
客服
消息
收藏
下载
最近