创作上传
VIP
收藏下载
登录 | 注册有礼
知末案例
/
YFYS空间设计
简约现代风住宅平面设计解析
2020/04/07 00:00:00
查看完整案例
微信扫一扫
收藏
下载
分享
你可能还喜欢
换一换
极简大宅 House in Sotogrande丨西班牙丨Fran Silvestre Arquitectos
湖泊亭阁丨加拿大丨Agence Spatiale
赖特 1911 年设计的 Taliesin 别墅 | 室内设计亮点与评价
柯布西耶的现代建筑杰作——普瓦西萨伏伊别墅
流水别墅
Gas Natural 巴塞罗那总部设计
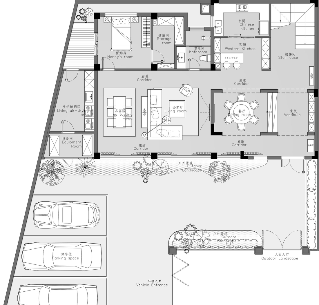
一层平面图
二层平面图
三层平面图
Bodywords 普拉提工作室——兼顾私密性与高品质的空间设计
简约宜居的“享家”空间设计
上●下
缪......
小颜的简约宜居空间
体验复古红色国度
小空间的大不同
谧静·之间
客服
消息
收藏
下载
最近