查看完整案例


收藏

下载
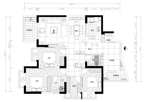
1、在入户门空间一分为二,设置了换鞋区与休闲区,既满足了三代人大量鞋物的放置需求,同时保留一个休闲区域,可供女儿练舞,老人又有锻炼的地方。
2、客厅阳台未与客厅连通,而是在阳台处定制了洗衣机柜,让洗手盆与洗衣机并存,即合理利用阳台空间,还增加了洗漱需求点。
3、由于房屋是多口之家,洗漱需求较大,将次卫向旁边过道延伸,做了“二分式”设计,将洗漱台同淋浴区、卫生间分割开来,方便一家人使用。
4、半封闭式厨房,考虑用餐需求,将靠玄关旁厨房墙体拆除,做吧台的设计,增加用餐区域。
5、由于入户门和次卧门相对,在入户过道处设置了玄关。
1、在入户门空间一分为二,设置了换鞋区与休闲区,既满足了三代人大量鞋物的放置需求,同时保留一个休闲区域,可供女儿练舞,老人又有锻炼的地方。
2、客厅阳台未与客厅连通,而是在阳台处定制了洗衣机柜,让洗手盆与洗衣机并存,即合理利用阳台空间,还增加了洗漱需求点。
3、由于房屋是多口之家,洗漱需求较大,将次卫向旁边过道延伸,做了“二分式”设计,将洗漱台同淋浴区、卫生间分割开来,方便一家人使用。
4、半封闭式厨房,考虑用餐需求,将靠玄关旁厨房墙体拆除,做吧台的设计,增加用餐区域。在玄学中有着门对门相冲产生煞气,所以在次卧和入户门之间设置了玄关,采用的玻璃屏风+玄关桌的组合,既能分隔出来的洗漱区域,又能增加玄关化解门对门的尴尬。在玄关桌上摆放鲜花与金属摆件,让空间又多了一处端景。
5、由于入户门和次卧门相对,在入户过道处设置了玄关。
客厅无需繁杂的摆设作为装饰,电视机、时钟、茶几、沙发、挂画,让空间看起来简洁明亮,米黄色加以点缀,搭配着硬装墙面石材与软装依循共生,保证了整体色彩与形体之间的和谐搭配,将简洁、时尚、饱和的气质渗入空间各个细节。
黑色皮质沙发自带质感,玻璃镜面木质茶几,为空间营造出明朗通透、柔和内敛。在满足舒适性的基础上,墙上的艺术挂画进行视觉平衡,勾勒出现代时尚空间不可或缺的艺术氛围。
电视墙则运用大理石与木质电视柜结合,在纵向轴线的引导下,延长进深放大空间视觉感。
6人座的餐桌完全能满足多口之家,深褐色的餐桌椅跟茶几颜色、镜面一致,让餐厅和客厅遥相呼应,白色的餐边柜满足了红酒储物功能,还利用颜色有效的区分客餐厅的区域,形成高效且流动的环形生活动线。
敲掉厨房一端墙面改做为吧台,自由划分空间功能,让餐厨设计一体化,扩大视觉空间,形成随意自在的家庭沟通方式。
半封闭式厨房有良好的通风采光条件,白色橱柜搭配米色墙砖简洁又大气,功能布置也一应俱全,储物柜尽可能全面的被分散到各分段区,以维持台面无物的整洁感。
卫生间做了“二分式”设计,将洗漱台同淋浴区、卫生间分割开来,可以同时使用。
主卧整体沿用米色系,明黄色用以局部点缀,使空间整体更加活泼、灵动。床头背景墙以古典花纹墙纸为主,再加入木饰边框床边搭配古色古香台灯,协调的色调里散发出高雅意味。
木纹柜面、木饰床边框、铁质灯具、棉麻、薄纱、绒面等材质在主卧被运用得淋漓尽致。一排到底的衣柜完全满足衣物储存需求。
每个女孩都是父母心中的小公主,少女粉保留了可爱和童真,毛茸茸的吊灯让整个空间更加的温馨。
可爱的玩具是女儿的最爱,必须放在属于自己的房间里。
客服
消息
收藏
下载
最近
















