查看完整案例


收藏

下载
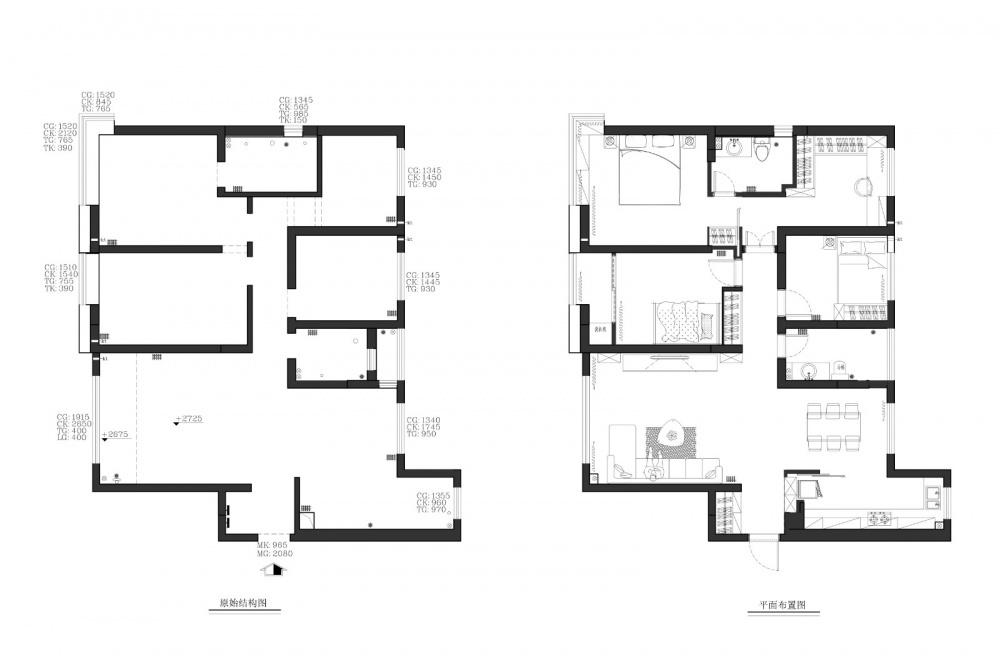
原始结构,布局改动
大厅一角
业主有很多照片希望能摆放,电视墙兼具收纳功能,电视机柜是旧家具。电视墙转折的地方,利用柜侧做了软木,也可以放不少照片。
走廊南侧的墙体拆除,用壁橱代替墙体,增加收纳空间。
地面用的是马可波罗55度的柔光砖,墙面用的进口蚕丝壁纸。墙面和地面颜色基本一致,视觉上拉伸空间感。
其实餐桌板是旧家具的,三把餐椅也是旧的,重新定做了餐桌腿和一条长凳,把原来的家具改成美式的调调,重新利用起来。
拆除厨房和入户门之间的墙,做了一面大鞋柜,满足一家人存放鞋子。黑板墙是新砌薄墙,给爱画画的女业主和宝宝一个有趣的地方,厨房的推拉门还可以一并推到墙后,成为开放式厨房。
客厅两组暖气,一组藏在窗帘后面,一组放在客厅沙发边。
夜晚的客厅,旧沙发换了浅米色沙发套,与墙面壁纸的颜色和肌理感相互衬托,无需装饰画的点缀。
推开走廊尽头的对开门,就到了主卧+主卫+书房(衣帽间)的套房空间,在主卫门口的对面,利用角落做了一组高柜,同时精确计算走廊墙体位置,做了一扇入墙式推拉门,将主卧和主卫单独隔离,增加空间乐趣。
主卧的家具是旧的,主卧色调采用灰色+紫色+黑色。
开放式书房+衣帽间
主卧卫生间
定制的浴室柜
开放式书房+衣帽间
小主人的房间
小主人的房间
将原结构客厅内的阳台,改到南次卧儿童房内,满足业主大客厅的要求,又保留了阳台。
小阳台,不仅放下了洗衣机,还藏着中央软式机哟。
北侧小卧室。
北侧小卧室做榻榻米,主色调采用蓝绿色
北侧小卧室。
客卫马桶的位置原来在现在马桶的对面,利用壁挂马桶,改了位置。
厨房采用咖啡色墙砖工字拼贴,橱柜台面选择和墙面较接近的颜色,视觉上更加整体。厨房的门可全部藏在墙后。
客服
消息
收藏
下载
最近




























