创作上传
VIP
收藏下载
登录 | 注册有礼
知末案例
/
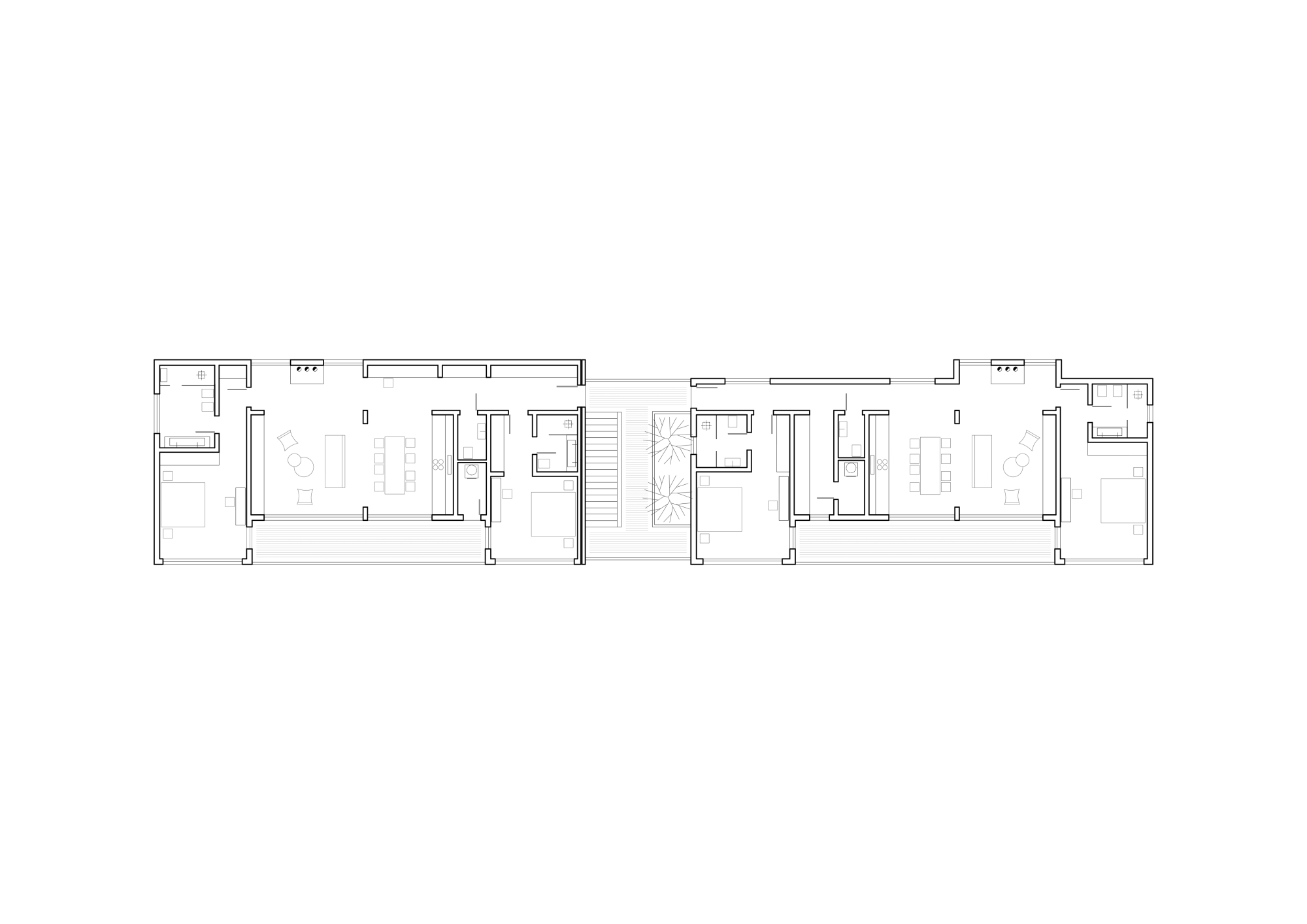
sobaplus architects
CLIFFTOP RESIDENCES sobaplus architects
2021/04/01 09:47:00
查看完整案例
微信扫一扫
收藏
下载
分享
你可能还喜欢
换一换
网红打卡地 Jackrabbit Wash | Aaron D'Innocenzo 的创意设计
贵州海龙囤遗址展厅
温尼伯无障碍雪橇滑道
巴西 Espaco 住宅 · 艺术家的绿色创意空间
Concetta D'Alessandro Foundation 公益康复中心
帕劳达里斯老年人之家
private house sobaplus architects
A RETURN TO BASICS sobaplus architects
HOUSE AMONG THE TREES sobaplus architects
HOTEL ALEKSANDAR sobaplus architects
客服
消息
收藏
下载
最近