查看完整案例


收藏

下载
定制电视组合柜,原木色与藏青蓝色的烤漆柜体搭配,暖色系原木风用冷色系去点缀,效果非常好。柜体厚度400mm,整个内前进墙体的感觉,电视内前进柜体,组合柜体的形式统一而整洁。柜门打开里面储物空间非常大,下面还预留了4组抽屉柜,增加储物。
玄关柜和电视组合柜整面墙一体化
电视组合柜收纳与美观兼具,客厅储物全靠它
站在客厅的角落望向电视墙的空间。长型窗洞可以直接一览餐厅景色。
望向窗户的角度看客厅
站在入户门门口看客厅
客餐厅之间的隔墙开了长型窗洞,使空间达到隔而未隔之势
客厅的SU设计图
为了整体营造日式风,定做了两扇实木格栅,作为沙发的背靠墙面。其实这种格栅也属于我国中式宋式风。格栅中间固定弧线型的一字板,上面摆放白色花瓶,从院子里折了一只嫩嫩的枝条直接插进去,禅意十足。
沙发茶几一角,原木色+棉麻布+藏青蓝,舒服安逸
这款网红壁挂指针时钟,在射灯的投影下,效果不错。
茶几一角,生活惬意美好
客厅的SU设计图
入户玄关柜和电视组合柜的详细尺寸如上图
餐厅挑空的不同角度,与客厅的隔墙,与一层走廊的层架隔断,以及二层走廊的玻璃扶手,三个不同空间通过相同的方形垭口框架从而达到整体的效果
由西厨望向餐厅
为餐厅制作巨幅画作,在午后阳光的照耀下,正在作画的我们
餐厅手绘效果图
餐厅小景,花瓶插了吊钟,给空间带来了绿意。
阳光从顶部照射下,餐厅的采光特别充足。同时在与客厅的隔墙处理上,也做了开长窗的设计,让光在不同空间能够反射穿梭,不同空间之间也可以产生互动。色彩上原木色系的餐厅,餐桌了铺了一条中式古朴扎染的蓝色布艺,暖色与冷色的互动,让空间视觉上产生平衡。
本案改造最大亮点,最点睛之笔,就是对原别墅中庭的天井的改造了。用玻璃阳光房封其天井顶部,三层的阳光房,玻璃顶玻璃地,让午后阳光从通过阳光房直达餐厅,也给二层的北侧卧室提供了阳光。光是家居生活中非常重要的部分,通过这个顶部玻璃房的天井空间,使阳光充满了这个200㎡的别墅房间。#阳光房 #餐厅
玻璃阳光房顶部加上树木吊灯的效果。
顶部阳光房施工过程中纪实照片,采用钢结构,铺装双层钢化夹胶玻璃。
挑空的一角
从二楼走廊望向二楼北侧卧室的房间。卧室原来的墙体打掉,做落地玻璃窗,阳光就可以照射到这个卧室了
从二楼的过道走廊看向一楼餐厅,墙面挂画是由设计团队手绘,山峰鼎立云雾缭绕下是几处烟火人间,刚好契合了这个阳光餐厅空间的寓意。吊灯定做了手工树根的吊灯,阳光,树木,光,是整个房间的设计主题。
玄关柜:进门的衣帽柜,下面留空150mm可以放拖鞋,一脚踢进去很方便。鞋柜高度800mm,中空400mm可以放包包钥匙,上面1300mm做储物格。详细可以看尺寸图
木作选用的是实木颗粒板,上图中有板材的名称。零度苹果木这个颜色特别还原原木色调,搭配百隆中灰效果刚刚好。
走廊与餐厅之间用通透的层架间隔,让空间产生分隔,视线也达到了通透的效果,两个空间产生互动的关系。层架的中间长条格与客餐厅隔墙的窗洞尺寸相同,产生了呼应。
室内走廊顶面斜坡屋檐的效果。
层架多宝格的尺寸图,设计形式与客厅沙发背靠的格栅相同
走廊的设计来源于日式屋檐,顶面用饰面板做了斜坡顶,仿佛走过一处街边屋角。
西厨的SU三维设计图
西厨房的橱柜拆分尺寸图
西厨房的橱柜立面尺寸图
将中庭的天井变为餐厅,那么原户型的餐厅空间就可以做西厨中岛了。
餐厅的SU三维设计图
从西厨望向餐厅空间,餐厅的阳光特别充足。
西厨与餐厅的对应关系。家里有个西厨,体现了中岛的重要性。
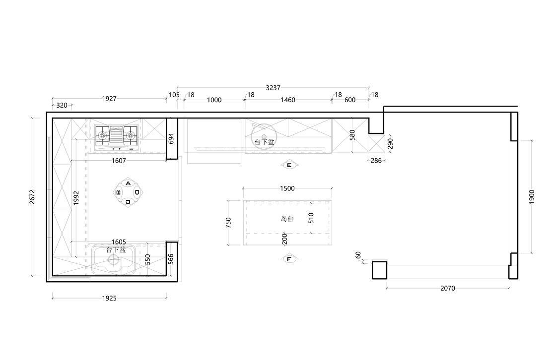
中西厨的平面布置尺寸图
中式厨房的柜体拆分尺寸图
中式厨房的立面尺寸图
中式U型橱柜。水槽都配了黑色的哑光材质。墙地灰色瓷砖,用来搭配原木色非常漂亮。
厨房的烟机灶具。
这是北侧的卧房,原南面是整面墙体,打通后做落地玻璃窗,阳光会从挑空天井倾泻而下,给这间卧房增加采光。北侧的原来露台,做了混凝土楼板搭建,变成了一个榻榻米室,两侧做了衣柜,一侧是400mm进深,做鞋柜,另一侧做了600mm的进深,做衣柜。地面做了地柜可以储物。门洞垭口8边形的设计,增加禅意。
卧房的落地玻璃窗,可以直接看到挑空的树根吊灯。也可以向下面望下去看到楼下餐厅空间。
打造的榻榻米室空间,地面储物柜,墙面衣柜鞋帽柜。窗台的石材台面做宽,又刚刚好可以当一个小的化妆台来使用。
对视觉效果如果不是要求特别高那么大白墙面就用来投影吧!一个投影仪,一个电影院般的氛围感。
阳台榻榻米的尺寸设计图
右侧的落地玻璃窗,阳光会从顶面穿透下来,挂了百叶帘,光影效果很有层次感
左侧的空间就是原露台打造的衣帽间,对面的柜子是鞋柜,下面的地台也做了储物柜可以储物。
左侧做床头柜,悬挂吊灯。墙面挂了扎染的布艺挂饰,也是从民间手艺人定制的。右侧做了一个书桌,带抽屉,可以看看电脑看看书。
床头西侧放置五斗抽屉柜。
东侧小书桌做小书房。
床头背景用原木条做了格栅并粘贴壁纸。
父母房间,原来阳台作为小书房,阳台左右各一个多宝格的隔断,同梁同宽,作为隔断也是书架。北侧的墙面做了壁龛加一字板的设计,可以放一些小艺术品摆件。
柜体尺寸设计图
给未来的孩子留一个儿童房。榻榻米的设计可以增加储物,又不需要再买床啦。夏天的时候睡着上面特别凉爽。
三层的小书房,也做了日式榻榻米的设计。左侧书柜层架的设计与一楼的隔栅等的设计元素相同。右侧的窗户也加了隔栅,让北侧露台的视线能够稍微遮挡一些。
二楼的次卫,做了干湿分区的设计。水盆在外,马桶与花洒淋浴在内。地漏做了加长地漏,跟砖的大小相同,效果很好。
衣帽间的柜体尺寸设计图
干湿分区的卫生间,洗手盆在外侧,用隔断墙分隔衣帽间。
马桶上面悬挂了壁挂小洗衣机,用来洗内衣类的衣服。花洒做预埋式暗装。无明管的设计,干净整洁。
高级灰的卫生间,墙地面同色的灰色,墙面是有凹凸线条纹理的瓷砖。卫浴独立式浴缸。墙面的花色均用暗藏式,在改水电的时候提前预埋好预埋件
楼梯制作过程记录:先用水磨石做好底座,留好凹槽,最后安装钢化玻璃围栏。
楼梯材质:水磨石石材粘贴+钢化玻璃围栏+实木扶手。水磨石是买的800*800的预制板,现场粘贴裁切打磨城无缝隙。后期壁灯也选择了水磨石的灯盘,与楼梯搭配成一体的效果。
从三楼顶面往下望去的回字形楼梯
竹编吊灯与水磨石壁灯点缀,与楼梯相得益彰。
房屋的设备都在这个空间了,中央软水净水以及电热水器洗衣机的水路改造如图。
洗衣房定制了洗衣柜,洗衣机与烘干机内前进柜体。
挑空顶面的玻璃阳光房。
顶楼花园的花台与卡座。
顶楼花园的水泥花台,均用红砖砌成后表面喷的灰色真石漆。
顶楼花园施工过程记录,内部是用红砖砌成的,表面水泥砂浆找平后喷真石漆。
花台的花花草草已经生长出来了,花台上面也种上了大葱和茄子。花台的底部预留了排水孔,防止花台内有积水。
顶楼花园
顶楼花园春天开花啦
院子手绘效果图
做这套设计的时候,由一首诗引入了人设计主题的情境:槛逗几番花信,门湾带溪流竹里通幽,松寮隐僻,奇亭巧榭,构分红紫之丛,层阁重楼,出云霄上。做一个造园的人,从房屋的入门前院,通过客厅廊阁,至后院通幽。二楼卧室休憩,餐厅挑空从一楼与二楼空间相通,至三楼玻璃楼板,仿若出云霄上。顶楼书房+顶楼花园,室内陈设园景化,固有,“心园”由来。
小院的灰色铁艺烤漆门
院子的小亭子
院子的设计,地面整体硬化后,表面铺鹅软石和青石板踏步。防腐木亭架+水泥灰圆形窗洞的结合,满满的禅意庭院风就营造出来啦。
原始户型的不足之处:1.三层别墅但是实际室内使用面积只有160㎡,单层面积很小。2.原来别墅的建筑中庭设计了天井,但是对于北方的沙尘土这样的气候,天井的利用非常低。3.顶层有南北两面露台,利用率很低,因为已经有前后小院了。总之:因为是别墅空间,前后院+顶楼露台的面积就有130㎡了,而室内空间只有160㎡,室内空间严重不足,所以希望能够有效利用室外空间,提高使用面积。
平面空间重新规划:1.一层将室内中庭的天井打通作为餐厅,原来的餐厅空间规划为西厨岛台,这样中西分厨的形式就有了。2.二层的天井作为一层的挑空,顶面用玻璃顶来做,作为三层的玻璃地面,采用钢化玻璃+钢结构的形式。这样也给二层北侧卧室带来了采光。3.三层的天井做玻璃阳光房花房,玻璃顶面+玻璃地面。露台的部分划分成了三个部分,其一与玻璃房连接作为洗衣房设备房来使用;其二在北侧作为晾晒区;其三南侧做顶楼花园,防腐木卡座休闲区以及水泥花台,可以种花种草种菜。
客服
消息
收藏
下载
最近






















































































