知末
知末
创作上传
VIP
收藏下载
登录 | 注册有礼

天津 2013 巴登拉姆会馆触觉设计

2017/06/28 00:00:00
查看完整案例
微信扫一扫
收藏
下载
天津 2013 巴登拉姆会馆触觉设计-0
改造 | 空间 | 商业 | 店铺 | 零售
Tianjing , 2013
TOUCH INTERIOR DESIGN
天津 2013 巴登拉姆会馆触觉设计-4
| 产品展示区 |
天津 2013 巴登拉姆会馆触觉设计-6
| 产品展示区 |
天津 2013 巴登拉姆会馆触觉设计-8
| 洽谈区/工作区 |
天津 2013 巴登拉姆会馆触觉设计-10
| 茶歇区 |
天津 2013 巴登拉姆会馆触觉设计-12
| 洽谈区/工作区 |
天津 2013 巴登拉姆会馆触觉设计-14
| VIP休息区/洽谈区 |
天津 2013 巴登拉姆会馆触觉设计-16
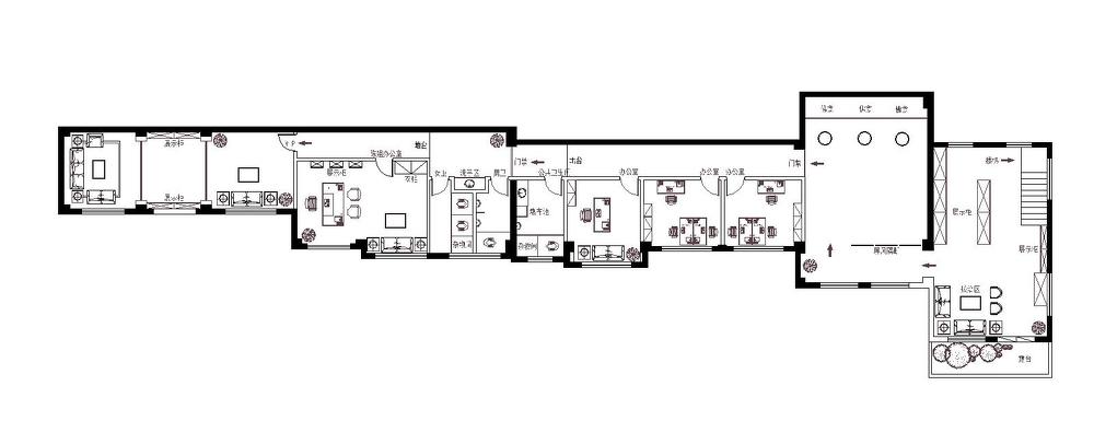
| 平面布置图-Layout Plan |
南京喵熊网络科技有限公司 苏ICP备18050492号-4知末 © 2018—2020 . All photos and trademark graphics are copyrighted by their owners.增值电信业务经营许可证(ICP)苏B2-20201444苏公网安备 32011302321234号
客服
消息
收藏
下载
最近