查看完整案例


收藏

下载
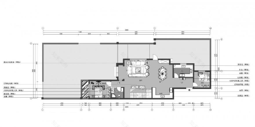
接待、公共活动区规划
一、门厅空间做大,
二、中西厨分开,
三、客厅背景的设计、采光及通透感的考虑。
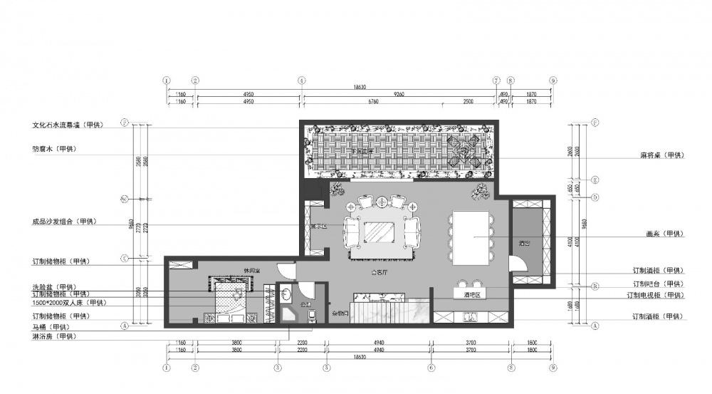
私享空间的规划:
一、下沉式庭院,
二、酒吧区、酒窖(藏酒),
三、会客接待,
四、私享大画案。
居住空间套间的规划:
一、女儿房的套间设计,
二、主卧室套间设计:卧室+书房+露台+大衣帽间+豪华卫生间。
客厅餐厅一体,石材立柱与半高电视背景墙设计,解决楼梯间采光问题,同时把别墅的楼梯展露出来,空间感更显通透、大气。
客厅
门厅:顶面、地面的呼应,配合功能鞋柜,满足优雅、低奢、大气的同时,解决进门见端景、换鞋换帽、照镜的功能。
女儿房
主卧,延续欧式风格,配以顶面金箔及花线,更显空间优雅。
茶室
客服
消息
收藏
下载
最近











