查看完整案例


收藏

下载
宽阔自如,阳光充足,让光线得以充分挥洒,大面留白空间可以为孩子留下充足的活动空间。半高的书柜既解决书籍收纳,也为陈列艺术品提供机会,增加的书桌书椅解决了写作和网课的要求。经典的沙发搭配,最新潮玩和透明陈设柜,这三者关系也相映成趣。
楼梯护栏采用了8毫米钢板,激光切割镂空,尽量让光线自由穿梭,楼梯踏步别具一格,地毯的使用安全防滑且无噪音,也更显亲切。偶然坐上去,也是一种不同的感觉,扶手内嵌灯带配合楼梯感应灯,增加照明功能。
设计师在原基础上做了很大调整,拆除卫生间、餐厅、厨房的所有墙体,取消卫生间功能,厨房与餐厅融合一体。橱柜呈现一个“P”字状的大纵深、大平台操作面。结合所有家电、拉篮、高柜、储物空间,形成完美综合就餐空间。
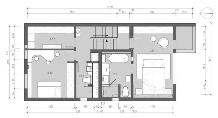
二层主卧去掉原有隔墙,打通为一间采光明亮的卧室。回家,即放假,卧室是一个让身心获得释放的惬意空间,宽阔尺度的就寝区搭配独立封闭阳台,整面半落地窗彰显最佳视野。墙面装饰墙板与壁柜同造型,隐藏储物收纳空间。
主卫,门为隐藏式推理设计,也和墙面有机结合起来,南向增加小细条窗,让空间拥有更好的采光,也赋予一定的建筑感,墙地统一材质,整体划一,浴室柜结合镜柜,最大程度收纳零碎物品。
儿童房,以自然轻松之风,营造出一个高品质的儿童空间,去掉一切幼稚,回归到广阔天地间。
儿童房卫生间, 返璞归真,消灭所有花花绿绿,呈现典雅、简洁、整齐、有序的卫生空间,从小培养孩子整洁干净、大方、质朴的生活习惯。
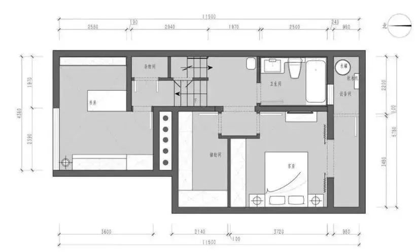
书房是本案的情怀与灵魂寄托之所,在尽可能的利用墙面空间陈列物品的同时,也体现出一定的特有氛围。
客服
消息
收藏
下载
最近





























