创作上传
VIP
收藏下载
登录 | 注册有礼
知末案例
/
公共空间
/
文化馆
/
成都壹阁设计钟莉
红景茶桌文化馆 | 现代简约风格演绎传统茶文化
2019/07/09 00:00:00
查看完整案例
微信扫一扫
收藏
下载
分享
你可能还喜欢
换一换
文化馆丨比利时文化展厅
赋权社区 | 1199SEIU 总部公共会员空间设计
比利时 Veurne ACASUS 知识与灵感中心丨denc!studio
Lo Barnechea 文化中心
江西中医药文化馆——室内设计展现中医文化魅力
祖名豆文化馆
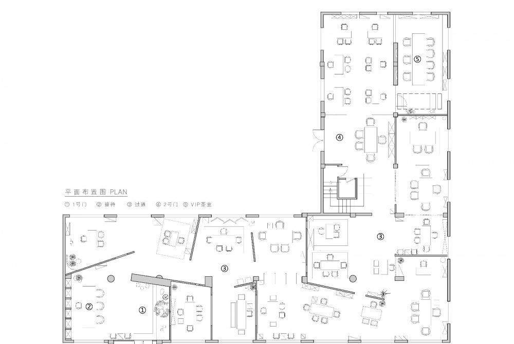
展厅平面图
展厅轴侧图
展厅局部立体图
展厅局部立面图
艺术与科学的完美融合—— 'Seven' 案例解读
平衡艺术与科学丨中国成都丨成都壹阁设计
104㎡木系之家的精致艺术美感丨中国四川丨壹阁设计
债券;结合;黏合;键丨成都壹阁设计
原则
《喜欢你》
一房变七房,26㎡蜗居变身“最美单身公寓”
壹阁设计打造梦幻婚房 'Flipped'
壹阁设计·Flipped
壹阁设计 × 作 『 兮兮 』
ELK 咖啡 · 灵动空间氛围的营造丨中国成都
E·plore易思伯乐国际教育
客服
消息
收藏
下载
最近