知末
知末
创作上传
VIP
收藏下载
登录 | 注册有礼

浙江新能达智能家居馆 现代科技与生活的完美融合

2016/04/24 00:00:00
查看完整案例
微信扫一扫
收藏
下载
浙江新能达智能家居馆 现代科技与生活的完美融合-0
一层平面功能图
浙江新能达智能家居馆 现代科技与生活的完美融合-2
一层地面铺装图
浙江新能达智能家居馆 现代科技与生活的完美融合-4
一层顶棚造型图
浙江新能达智能家居馆 现代科技与生活的完美融合-6
二层平面功能图
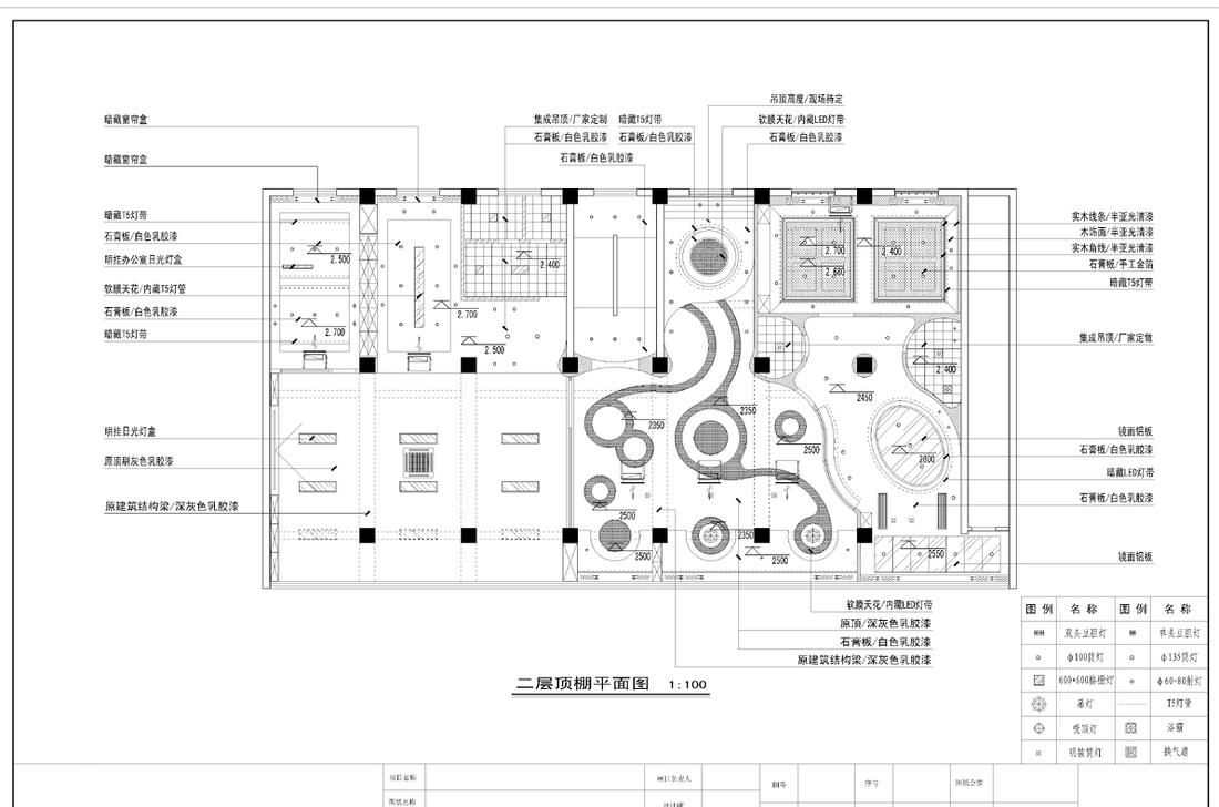
浙江新能达智能家居馆 现代科技与生活的完美融合-8
二层顶棚造型图
浙江新能达智能家居馆 现代科技与生活的完美融合-10
外观里面图
浙江新能达智能家居馆 现代科技与生活的完美融合-12
外观效果图
浙江新能达智能家居馆 现代科技与生活的完美融合-14
一层大厅效果图
浙江新能达智能家居馆 现代科技与生活的完美融合-16
二层大厅效果图
浙江新能达智能家居馆 现代科技与生活的完美融合-18
二层客厅体验效果图
浙江新能达智能家居馆 现代科技与生活的完美融合-20
二层家庭影院体验效果图
南京喵熊网络科技有限公司 苏ICP备18050492号-4知末 © 2018—2020 . All photos and trademark graphics are copyrighted by their owners.增值电信业务经营许可证(ICP)苏B2-20201444苏公网安备 32011302321234号
客服
消息
收藏
下载
最近