知末
知末
创作上传
VIP
收藏下载
登录 | 注册有礼
知末案例   /   商业空间   /   服装店

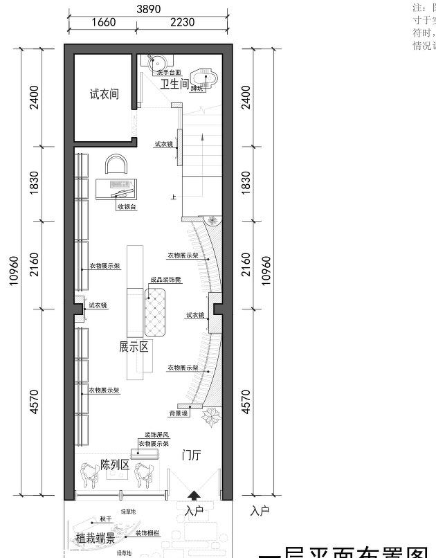
现代时尚——淑女服装店

2017/09/14 00:00:00
查看完整案例
微信扫一扫
收藏
下载

现代时尚——淑女服装店 -0

现代时尚——淑女服装店 -1

现代时尚——淑女服装店 -2

现代时尚——淑女服装店 -3

现代时尚——淑女服装店 -4

现代时尚——淑女服装店 -5

现代时尚——淑女服装店 -6
南京喵熊网络科技有限公司 苏ICP备18050492号-4知末 © 2018—2020 . All photos and trademark graphics are copyrighted by their owners.增值电信业务经营许可证(ICP)苏B2-20201444苏公网安备 32011302321234号
客服
消息
收藏
下载
最近