查看完整案例

收藏

下载
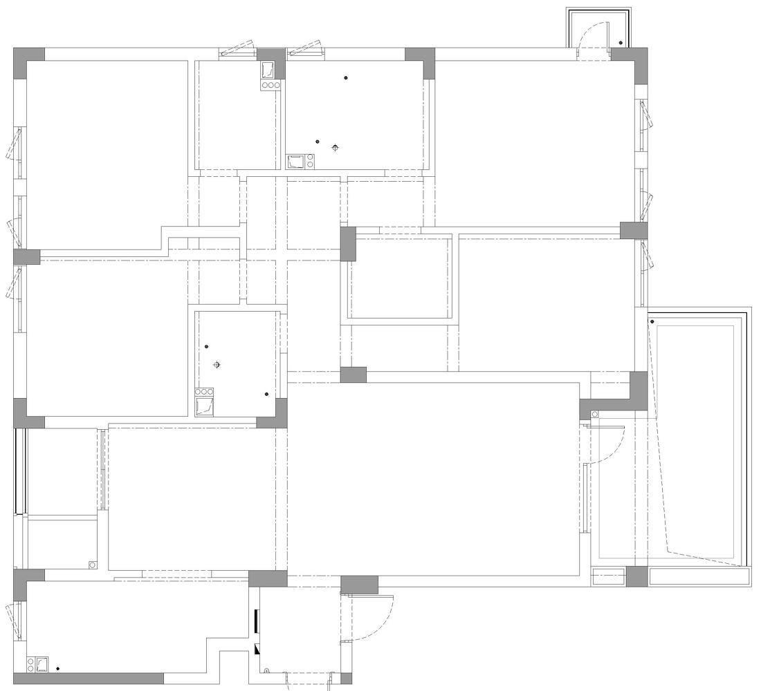
房子面积是187方,对于两个人来讲是很舒服的。原户型是四室对于他们来说过多,而且空间被划分的很细碎,整个大空间不够开阔,很果断地改四室变三室,主卧变成双开门,厨房也变得更为通透,同时增加了西厨的功能,阳台与室内的空间也得到改善,另外增加了家庭室,让房间的功能更多元,满足居住空间的多种仪式感。
极简空间的色调我们是以白色、灰色、木色为主。不需要太多夺目的色彩,以最为简单纯粹的颜色打磨空间,不仅是有较长的时间观赏性,在后续的漫漫生活中,也更方便他们搭配软装的变化。不在颜色上做过多限制。#极简
原来的客厅阳台空间是从最左侧承重墙 靠近客厅的这头开始的,本身外部阳台面积也不算小,所以便将这部分空间收入客厅,显得整个公共空间更清透、敞亮。在空间进深上也与家庭室保持一致,视觉上也更有秩序的美感。#阳台
洞石是业主一直以来喜欢的材质,所以希望在这个家里面能用到它。在客厅并没有放常见的电视柜,设计师以洞石层板的形式替代电视柜的功能,也更有极简的味道。除了客厅,卧室床身一侧也可见它的身影。因为热爱所以心心念念,业主自己专门去批发市场淘的,这款米白色的洞石找了好久,然后拉到大理石卖家的加工厂再加工,不经一番寒彻骨,哪得梅花扑鼻香;自己花时间与心思呈现出来的东西,自然是最令人回味的。业主说虽然过程很艰辛,但是看到现在的家,很庆幸曾经的坚持。#洞石 #茶几
全屋通铺木质地板、空间全部做内嵌踢脚线处理、大平顶、橱柜无挡水条等等极简风格的细节都随处可见,业主在找我们装修之前就做了很多功课,对极简的一些做法以及与日常生活的习惯也做了详聊,他们很明确自己想要的是什么,和我们设计师的想法一拍即合,整个设计过程沟通的很顺畅~ #洞石 #电视柜
客厅沙发背景墙是承重墙,一部分墙体,一部分固定的置物架,就这样成为了沙发的背景墙;其实在我们的作品中,将这些不可动的承重墙巧化成空间特色的案例不在少数。本案的沙发背景我们为了保持空间的通透感,把原来的承重墙墙体只延伸到2倍宽左右,形成沙发的一部分背景,另一部分是做的一组具有储物展览功能的置物架,仔细看可以发现在离地约30cm的高度有一组收纳柜,恰当的高度让沙发靠背有了一定的安全可靠感,这面背景墙既有着空间的清爽通透,又兼具着传统沙发背景墙给予的安全感。#客厅 #沙发 #木地板 #极简 #微水泥
在客厅沙发背后到主卧的这段距离,有一个蛮宽绰的空间,我们便在靠窗的位置设立了一个开放的家庭室小区域,一盏吊灯、几把单椅、一张长桌,可以是做手工的空间、办公的空间、几人面对面聊天喝茶的空间,它的功能是多元的,就看他们二人慢慢地与这些功能区如何相处出独有的味道吧。#家庭室
这个位置欣赏窗外的景色也是很舒服的,坐在这个地方读读书、吹吹窗外的风,喝杯咖啡,日子在这样安静惬意的小调中徐徐前行。
这个区域可以感受到更为浓郁的中古味道,软装的一些物件、饰品都融入了女业主喜欢的家具风格。虽然中古和极简看似两个不相关的风格,但是用心的话可以有很好的融合。这个家有着它的纯粹、简单,也有着温暖、故事与韵味。只有不对自己设限,周遭的事物才有更多可能,也是这个家可以呈现出如今状态的重要因素。没有固定的搭配模式,这中间的迂回正是生活中慢慢推敲的小趣味。#中古 #中古家具 #实木家具 #胡桃色家具
客厅背后到卧室之间的空间蛮大的,除了在靠窗的位置放了张长桌,其他的我们没有过多处理,一是为了动线更顺畅一些,空间也显得干脆利索,二来也是为以后生活的变化预留空间,沙发背后的这块空间怎么发挥,就看他们日后生活的小想法了。
这个位置是从玄关朝向内部空间会看到的第一视角,我们精简地做了一个端景,一幅“简单”的挂画、一把长椅、一张地毯、一株生机盎然的绿植,意境的营造有时候就是这么的纯粹。 #端景
在走廊朝向次卧的转角空间(图中左侧位置),我们做了一些收纳柜增加家里的收纳功能。因为客厅几乎没有储物收纳的功能,我们自然是给它的收纳安排好一个地方,极简的空间很注重洁净感,自然是不能乱乱的,把该“藏”的东西都给它归置好去处。#微水泥 #壁炉 #走廊
收纳柜的这个地方,设计师又专门设立了一个隔断墙,中间的镂空部分留的很巧妙,增加设计感的同时显得通透,下方还有一个电子壁炉,整个的视觉效果很巧妙。这面墙以及沙发背景墙都是用的微水泥,业主对当下流行的新材料挺感兴趣,觉得微水泥很好看,希望家里可以尝试一些。一开始是业主自己找的微水泥商家,由于微水泥不是他们的主营业务,施工人员经验不足,导致两周的工期花费了四个月仍然没有做好(秒变毛坯房),最后由我们介绍了一家杭州本地专业做微水泥的品牌,得以将微水泥这块完美收工;所以建议各位友友在选择材料品牌的时候要注意,不仅要看东西的品质,还有后续的施工安装,了解一下他们成功的案例,这是很需要重视的一点。#壁炉 #微水泥
餐桌选择的是透明材质的圆形状,搭配几把理性的单椅,极简的味道呼之欲出。之前业主一度计划要购入厚重的实木圆桌和椅子,装修下来之后我们的业主自己说道:买家具不要着急,除了考虑风格间的匹配度之外,还有空间的预留尺寸、动线等问题都需要考量。家里置办的一切都要徐徐图之,不用操之过急。
#实木边几
我们在餐厅一侧还做了一个具备西厨功能的小区域,满足他们生活方式的多元需求。墙壁做嵌入钢板增加置物功能,在下方还做了隐藏式灯带,氛围灯的魅力无需多言。 #餐厅
#餐桌 #餐椅
#西厨 #灯具 #吊灯 #氛围灯
包括厨房也是通铺的木质地板,其实大多数家庭都会特意避开厨房的位置,改用瓷砖或者仿木质瓷砖,选择木地板也是业主经过深思熟虑的,平常有重油污的时候就会铺上地毯,不用的时候收起来,他们自己这并不觉得这是什么问题;业主两人在装修这块很有自我意识,“只要是符合自己的,便是最合适的。”#厨房 #白色厨房 #极简厨房
#asko冰箱他们两个人喜欢明亮纯白的空间,所以厨房选择了极致的白,墙面是用的男业主喜欢的洞石风格的瓷砖;入住一段时间的他们说,白色厨房比想象中好打理,喜欢的朋友可以一试,不要被颜色劝退~ #厨房 #极简厨房
他们两个人喜欢明亮纯白的空间,所以厨房选择了极致的白,墙面是用的男业主喜欢的洞石风格的瓷砖;入住一段时间的他们说,白色厨房比想象中好打理,喜欢的朋友可以一试,不要被颜色劝退~ #厨房 #极简厨房
原主卧的门是在靠近次卧的那边,空间优化后我们把门调整到了朝向家庭室的位置,因为空间面积允许,就做了一个双开门的样式,相比单扇门,双开门更有仪式感,除此之外,双开门对于光、空气的流动性来说更佳一些。 #双开门
可以看到床头柜一旁有一个可以开门出去的小阳台,我们改变了门轴的位置,从外右变成外左,因为小阳台的空间有限,之前的门向外打开之后,门后的阳台空间(对于阳台来说 不小的面积)不方便直接过去,改变了门轴位置,将这块小小的空间面积给它释放,生活的便利就在于这些小小的细节之中。
小阳台的门我们特意选的一款透明玻璃的,也是考虑到把它当做一扇窗的功能,给空间更多的光感、呼吸感,与室外景色有更多的交流。同时在顶部做了一组遮光卷帘,保证卧室有一个良好的隐私效果和睡眠氛围。这侧的床头将业主挑选的米白洞石材质应用起来充当床头柜的功能,做成了一个L形状的层板置物台,他们两个人的书现在已经摆的满满的,被书香气包围的睡眠空间,很有幸福感呐。#吊灯 #床头柜
这侧的床头将业主挑选的米白洞石材质应用起来充当床头柜的功能,做成了一个L形状的层板置物台,他们两个人的书现在已经摆的满满的,被书香气包围的睡眠空间,很有幸福感呐。#吊灯 #床头柜
#主卧
靠窗的位置放了一个比较低矮的沙发,躺在这里乘着窗外的自然风景读着书,自是最惬意不过。卧室里的床头吊灯、胡桃色实木茶几、墨绿色布艺沙发,以及其他空间的一些摆件、饰品都可以见到女业主喜爱的元素。往后的日子,便是他们将自己生活中喜爱的物件慢慢添置,慢慢更新。#沙发 #边几 #台灯
#主卧卫生间 空间面积足够,我们就做了双台盆设计,两个人可以一起洗漱不用等待排队。主卫我们依然是将极简践行到底,柜体是做的无把手反弹器款式更显利落,整个空间也都是干净的线条、纯粹的着色。#极简
#主卧卫生间 微水泥也应用到了卫生间,性质使然 墙壁和地表都是用的它,看着整个空间很高级纯粹。这也是为什么那么多人喜欢微水泥的原因。#微水泥 #极简 #卫生间
#客卫 客卫我们做了干湿分离,将盥洗池从卫生间拎了出来,一是解决原卫生间的面积局促问题,二来也是为了优化空间动线做的调整。
客服
消息
收藏
下载
最近








































