查看完整案例


收藏

下载
负一层功能空间:台球水吧区、健身房、保姆间、酒窖、影音室、公共卫生间、储物间
其实这一层并不算负一层,因为房子建在坡地上面的,这一层的台球室和健身空间是和外面的花园在同一个地平面的,采光和景观都非常好,又开挖了地下架空空间,安排进去了业主需要的视听、酒窖及储物空间。
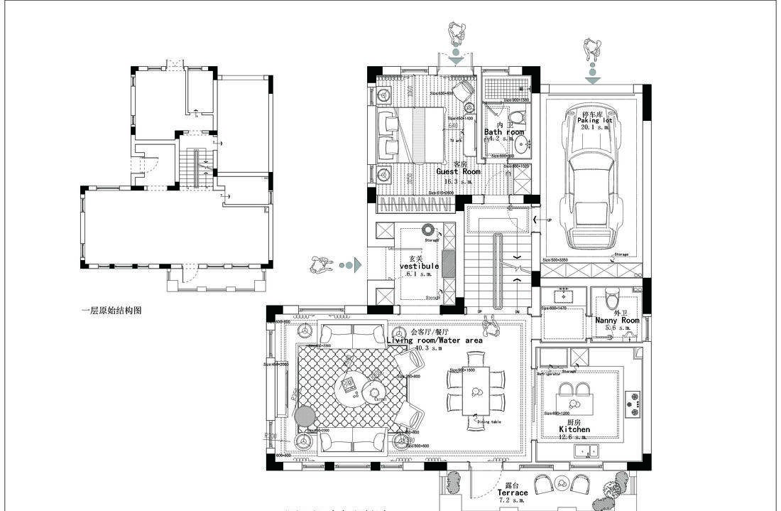
一层功能空间:玄关、客餐厅、厨房、公共卫生间、父母间套房、车库
一层空间改动不大,原来的结构也比较合理,我们在原有空间比例上相对优化了一些,扩大了厨房功能空间,增加了厨房的中岛。
当时尚的摩登与轻美式相遇,细细品味,哪儿都透露着轻奢的感觉。客厅空间采用沙发对放的摆放方式,更是为了提高家庭和谐愉悦的沟通氛围所做的精心布置。灰色打底,复古的几何地毯,辅以蓝色的家具做点缀,不远处玄关的九宫格抽象画更是为整个空间增添了一抹神秘的色彩。
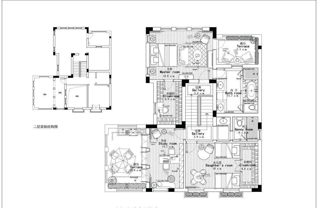
二层功能空间:主卧室、主卫、主卧衣帽间、女儿房、书房、公共休闲露台
二层原有女儿房空间仅有现在的一半大,另外一半是挑空空间,我们现浇掉了挑空空间,增大了女儿房的空间,并且把二层的阳台空间包进来,做成了现在的书房空间。
摩登优雅在主卧室更得到了新的表现,复古的蓝绿色壁纸与优雅的紫色窗帘,使得整体色彩神秘而复古,布艺的家具效果温馨舒适。清晨的阳光透过白色的纱帘,看到爱人在身边,该是幸福的完美定义……
儿童房的的设计打破了传统的布局,为了打造两位小公主的梦幻空间,设计师在这方面花了不少心思。房间的整体色彩以温馨色系为主,粉色和淡蓝色相映成趣,简洁大方同时也满足了小女孩对私人房间的憧憬。带有童年色彩的儿童木马,可爱的玩偶公仔,给整个空间又添了几分童稚的色彩……
客服
消息
收藏
下载
最近
































