查看完整案例


收藏

下载
点击观看项目视频
Click to watch the project video
空间划分 Space division
空间功能划分上,在负一楼把原本需要室内上台阶的部分移到车库,把一楼的部分花园挖下去一部分做采光,让休闲厅、茶室也能享受到花园的景观。
In terms of space function division, on the negative first floor, the part that originally needed indoor steps was moved to the garage, and part of the garden on the first floor was dug down and part of it was used for lighting, so that the leisure hall and tea room can also enjoy the garden landscape.
一楼主要设立客厅、餐厅和厨房,厨房设立了一个小餐桌,方便夫妻两人吃饭时用餐。同时,将餐厅挑空,书房衔接餐厅的地方开一扇上推窗,增加互动性。
The first floor is mainly composed of living room, dining room and kitchen. The kitchen has a small dining table, which is convenient for couples to have meals. At the same time, the dining room is empty, and a push-up window is opened where the study connects to the dining room to increase interactivity.
二楼为书房和小孩房,每个房间都设立了景观露台。
The second floor is a study room and a children’s room, and each room has a landscape terrace.
考虑到男业主平时工作回家较晚,为不打扰女业主休息,三楼采用双主卧设计,这不是疏远而是对对方的尊重。为了保持分开之后的衔接,发现女业主有做早餐的习惯,则临窗设,为夫妻俩开辟专属独有的交流空间。
Considering that the male owner usually works late and comes home late, in order not to disturb the female owner’s rest, the third floor adopts a double master bedroom design, which is not alienation but respect for each other. In order to maintain the connection after separation, and found that the female owner has the habit of making breakfast, a breakfast bar was designed by the window to open up an exclusive communication space for the couple.
家里常年就业主夫妻二人,不与长辈同住,在上海读大学的女儿寒暑假回家。在知命之年,他们过上了二人世界,格外恬静安适。
The family is the owner and his wife all the year round. They do not live with their elders. The daughter who is studying in Shanghai University comes home during the winter and summer vacations. In the year of their fate, they lived a two-person world, which was extraordinarily quiet and comfortable.
了解一个人的生活,从推门进入他的家开始。
Understanding a persons life starts with pushing the door into his home.
充满残缺的自然本身,将岁月的痕迹表露无遗,搭配人文图腾地毯,玄关的整体设计给进出人展现了整体空间的缩影,居于俗世生活的自在与洒脱,与之能够快速的融入到空间里。
The old wooden shoe-changing stool is full of incomplete nature itself, revealing the traces of the years. With the humanistic totem carpet, the overall design of the entrance shows the microcosm of the overall space for people entering and leaving into the space quickly.
进出大门的玄关景以端正稳定的结构搭配为主,粗陶花瓶、斑驳感抽象画、中古韵味储物柜等,变换着不同的元素。这就像是我们的生活,时间的变化,看似不变而变,唯一不变的是本真美。
The porch scene entering and leaving the gate is mainly based on a correct and stable structure, with different elements, such as stoneware vases, mottled abstract paintings, and medieval charm lockers. It’s like our life, the change of time, seemingly constant and changing, the only constant is the true beauty.
为了让空间在拓展性上既独立又相互联系,在通往茶室的路上,产生了一些艺术的小情景,它们安静沉默,如同画框,营造丰富细腻的感受。
In order to make the space both independent and interconnected in terms of expansion, on the way to the tea room, there are some small artistic scenes, which are quiet and silent, like a picture frame, creating a rich and delicate feeling.
夫妻俩都是比较宅的人,不喜应酬。工作之余,他鼓捣音响听音乐喝茶,她看书喝咖啡练瑜伽,互不打扰,各得其所。
Both husband and wife are relatively homely people and do not like to socialize. In his spare time, he tinkers with the audio, listens to music and drinks tea, and she reads books, drinks coffee and practices yoga, without disturbing each other, and each gets his own way.
茶室便为方便男主人接待客人和听音乐所用,选用老木料的茶桌和原生木料壁柜体增加空间的质感。一起聆听曲目,焚香饮茶,吾心悠然。
The tea room is convenient for the male host to receive guests and listen to music. The old wood tea table and native wood wall cabinet are used to increase the texture of the space. In the dead of night, the two of them listened to songs together, burned incense and drank tea, and my heart was at ease.
茶室一侧的休闲厅,整体的设计以浅调弱化花园绿意引景入室,卷帘和略带禅意以竹为主的肌理画,呼应空间所用的竹木藤艺材质。在此与三五好友谈笑风生,家庭聚会嬉戏,消磨放松而不失乐趣的时光。
The leisure hall on the side of the tea room is designed in a light tone to weaken the greenery of the garden to introduce the scenery into the room. The rolling shutters and the texture paintings with a slightly Zen-like bamboo-based texture echo the bamboo, wood and rattan materials used in the space. Here you can chat and laugh with three or five friends, have family gatherings and play, and pass the time of relaxation and fun.
在这里,建筑空间构建朴实、宁静、且易于生活的空间状态。而室内空间又与室外绿植、阳光、风雨产生着自然而然的共生关系,它们因时间、季节、气候而流转变化,以此作为新的生命启示。
Here, the architectural space constructs a simple, quiet, and easy-to-live spatial state. The indoor space has a natural symbiotic relationship with outdoor green plants, sunlight, wind, and rain. They change due to time, season, and climate, and use this as a new inspiration for life.
一楼的餐厨空间的材质以柚木为主,配以洞石岩板,所选材料质地和色调温润。
The material of the dining and kitchen space on the first floor is mainly teak, with the texture and tone of the selected travertine slate.
厨房画艺布帘配色以抽象浅淡色调让空间免去沉闷感,以柚木偏胡桃色为重色,通过洞石色的暖灰与软装配饰的色调对比、中古造型家具繁复与简约的对比、细腻质地与斑驳材质的对比,来形成空间丰富的层次质感。
The color matching of kitchen painting curtains uses abstract light tones to avoid the dull feeling of the space. Teak and walnut are used as the heavy color. Through the contrast between the warm gray of travertine and the tone of soft accessories, the contrast between the complexity and simplicity of medieval furniture, and the contrast of delicate texture and mottled material to form a rich layered texture of the space.
生活与艺术进行合理搭配,柴米油盐酱醋茶在这里遇见窗景、绿植、音乐、收藏画,屋主对于生活的热爱在此杂糅。
Life and art are reasonably matched. Chai, rice, oil, salt, sauce, vinegar and tea meet window views, green plants, music, and collected paintings here. The owners love for life is mixed here.
DINING ROOM
餐厅考虑到整个空间的结构比例,选择自然木板的超长餐桌,搭配藤编中古餐椅增加氛围感,营造出安宁温暖的用餐环境。
Taking into account the structural proportions of the entire space, the restaurant chooses an extra-long dining table with natural wood planks, and is matched with rattan antique dining chairs to increase the atmosphere and create a peaceful and warm dining environment.
LIVING ROOM
客厅为家人、朋友间增进感情的娱乐空间,布局采用主沙发、单沙发、皮墩、边柜的组合形式,设计考虑到功能和美观,体现在常用的家具使用频率高的地方,选择宽大的牛皮沙发增加空间舒适度,茶几选用深色大理石台面带年轮雕刻。
The living room is an entertainment space for family members and friends to enhance their feelings. The layout adopts the combination form of main sofa, single sofa, leather pier, and side cabinet. The design takes into account the function and beauty, and it is reflected in the places where the commonly used furniture is frequently used. The cowhide sofa increases the comfort of the space, and the coffee table is made of dark marble with an annual ring carving.
使用频率略小且考虑装饰性上的白色单人沙发,让整个空间不沉闷且调性融合,独特的弧形扶手给直棱角的盒子空间带来形体的柔和美,同时,牛皮墩的装饰符号元素与抱枕元素遥相呼应。
The white single-seat sofa, which is used less frequently and considered decorative, makes the whole space not dull and harmonious. The unique curved armrest brings softness and beauty to the box space with straight edges. At the same time, the decorative symbol of cowhide pier The element echoes the pillow element.
沙发背后的画艺和装饰椅柜形成形体互补的组合,致敬 KellyHoppen 的设计,追求色调和谐不张扬,元素质感丰富,造型有序的多变。
The painting art behind the sofa and the decorative chair cabinet form a combination of complementary shapes, paying tribute to Kelly Hoppens design, pursuing harmonious and unobtrusive colors, rich texture of elements, and orderly and changeable shapes.
静止的中古边柜选用老船木再造,柜身的孔眼细节仿佛述说了它与风浪的故事。
The static middle-aged sideboard is rebuilt with old ship wood, and the details of the eyelets on the cabinet seem to tell the story of it and the wind and waves.
二楼书房为男主人工作和阅读所用,书吧区域用以喜欢搜集的画作筛选安放,为适合整体空间重新组合搭配利用,单人沙发靠窗而放,便于与楼下家人间的互动交流。
The study room on the second floor is used by the male owner for work and reading. The book bar area is used to screen and place paintings that he likes to collect. In order to be suitable for the overall space recombination and utilization, the single sofa is placed by the window, which is convenient for interaction with the family downstairs.
业主说,女儿现在是“客人”,只有寒暑,再无春秋,常带着她旅行,广博的见识对她的成长注入了丰沛的养料,作为二十岁的年轻人,需保持独立并尊重她的喜好。
The owner said that her daughter is now a guest. She has only winter and summer, no spring and autumn. She often travels with her. Her extensive knowledge has injected abundant nutrients into her growth. As a 20-year-old young man, she needs to maintain independence and respect her preferences.
不同于整体沉稳木色调,女儿房使用了相对明亮轻快的橡木色,浅色的松果灯和米色窗帘增加空间柔和轻快感。
Different from the overall calm wood tone, the daughters room uses a relatively bright and lively oak color, light-colored pine cone lamps and beige curtains increase the softness and lightness of the space.
空间与空间之间跌宕起伏,做到了互相连接融合又互不干扰,漫漫而走,生活随着层层楼梯不断地更换场景。
The ups and downs between space and space achieve interconnection and integration without interfering with each other. Walking in a long way, life constantly changes scenes with the stairs.
MASTER BEDROOM
三楼的主卧设计采用大主卧、小主卧和早餐吧的形式。大主卧进门以若隐若现的隔断进入,整体空间挑高且宽敞明亮,顶部造型为仿中式形的斜屋顶。
The master bedroom design on the third floor takes the form of a large master bedroom, a small master bedroom and a breakfast bar. The entrance of the large master bedroom is entered through a looming partition. The overall space is high and spacious and bright, and the top shape is a sloping roof imitating Chinese style.
家具色调以简洁沉稳色调为主,材质延续一楼所用,在平调的基础上装饰吊灯呼应若隐若现的隔断,形体以薄纱形式的中式吊灯,配以舒适感的皮质软包床,床头以边几加储物柜的不对称形式多样化搭配。
The color of the furniture is mainly simple and calm, and the materials continue to be used on the first floor. On the basis of the flat tone, the decorative chandeliers echo the looming partitions. The Chinese-style chandeliers in the form of tulle are equipped with a comfortable leather soft-covered bed. The asymmetrical forms of the side table and the locker can be combined in a variety of ways.
小卧室为男主人休息用,空间方正开阔,软装造型收边利落为主,体现男主理工科的简洁实用派。
The small bedroom is for the male master to rest. The space is square and open, and the soft decoration is mainly designed with neat edges, reflecting the simple and practical style of the male masters science and engineering.
衣帽间是空间的承让,编织的衣柜增加空间温润质感。光线斜入此间,在纵横细密的纹理上产生漫反射,由暗到亮,再由光至影,空间氤氲且拙朴。
The cloakroom is the promise of space, and the woven wardrobe adds warmth and texture to the space. The light enters here obliquely, producing diffuse reflection on the fine vertical and horizontal textures, from dark to bright, and then from light to shadow, the space is dense and simple.
BREAKFAST BAR
在窗前留有一桌、两椅,为夫妇俩提供简单餐食的早餐吧,以简练框架造型和干净的布帘装饰,用带浮雕花纹的吊灯增加温馨的氛围情绪。日有阳光作伴,夜有灯光可亲,为夫妻俩开辟专属于他们独有的空间。
There is a table and two chairs in front of the window. The breakfast bar provides simple meals for the couple. It is decorated with concise frame shapes and clean curtains, and chandeliers with embossed patterns are used to increase the warm atmosphere. There is sunshine in the day and light in the night, creating a space that is unique to them.
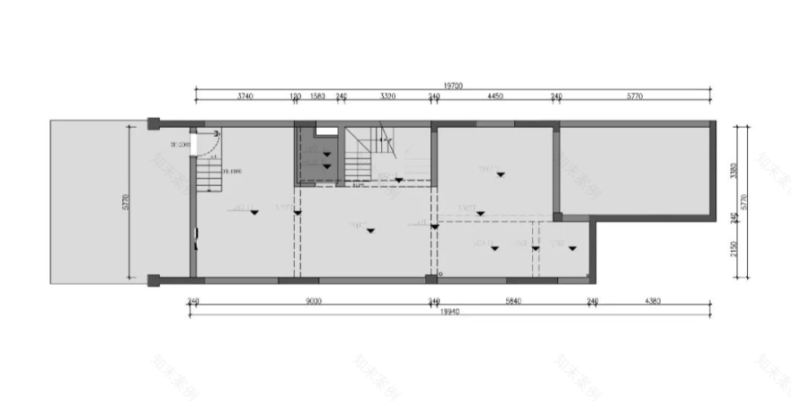
▲ 左右滑动查看,负一层-一层-二层-三层原始结构图
Original structure diagram
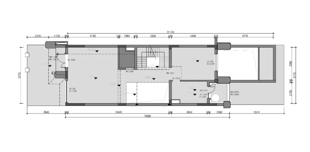
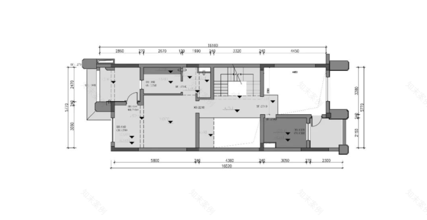
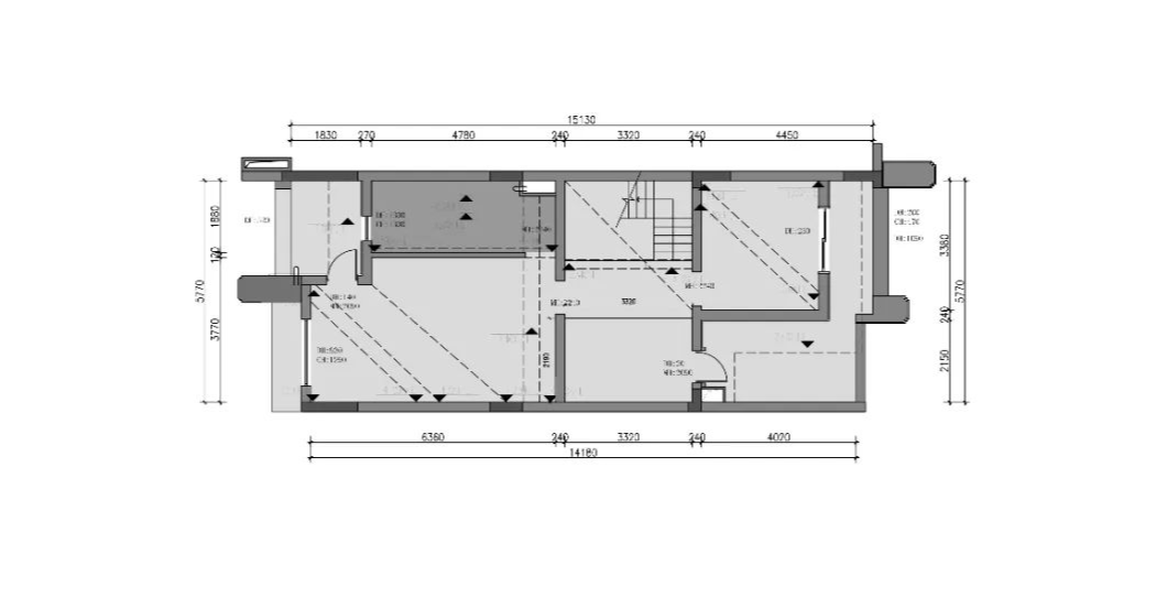
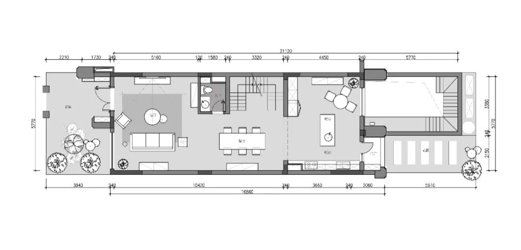
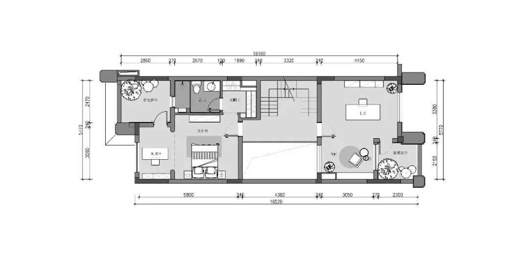
▲ 左右滑动查看,负一层-一层-二层-三层平面布置图 Layout plan
设计机构 | 岭众联合-田艾灵设计
Design Company:Elin Imperial Institute of Design
全案空间主理设计师 | 彭洋洋
Chief design | Peng Yangyang
Soft Chen Designer | Yang Xi
项目地址 | 重庆 龙湖·紫云台
Project Address | Chongqing Longhu·Ziyuntai
项目面积 | 400㎡
Project area | 400㎡
项目风格 | 自然风格
Project Style | Natural Style
施工单位 | 十二分装饰
Construction unit:Perfect decorate
软陈产品 | 桓墅空间艺术设计机构
Soft accessories:Hertrue art design
项目模式 | 全案高定
Project Mode | Full Case High Definition
客服
消息
收藏
下载
最近
































































