查看完整案例


收藏

下载
实景
实景
实景
实景
实景
实景
实景
实景
实景
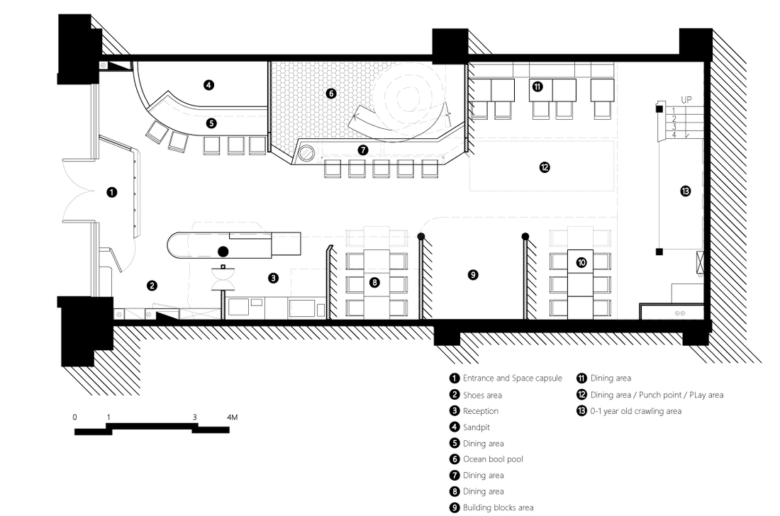
海洋球池旁还设置了10人位的用餐区,镜面不锈钢隔墙为屏障,家长在用餐的同时可通过墙上直径80公分的超白玻璃,观察海洋球池里小朋友的状况。
海洋球池和木粒沙坑上方有一面“月全食背景墙”,通过开关可与背景墙互动,见到月的圆缺阴晴。而开关需要小朋友和家长们自行探索,体验发现机关的乐趣。
△入口效果图
1 Floor - 一层
玩乐与用餐结合区
◾木粒沙坑&海洋球池(滑梯)&用餐区
木粒沙坑和海洋球池区的围挡护栏与用餐区结合。爸妈可以放飞双手在用餐台上吃饭和友人聊天,偶尔一瞥,则看到小朋友肆意撒欢儿的可爱情景。
与玩伴欢闹时,小朋友也可以通过矮隔墙上的透明半球亚克力罩,躲猫观察对方的动作,还可以通过它吸引爸爸妈妈的目光,形成有趣的亲子互动。
◾建筑积木搭建区&用餐区
建筑积木搭建区设置在海洋球池对面,两边为用餐区。无论调皮,可爱,还是遇到问题时的呆萌模样,小朋友玩乐时的一举一动都可尽收家长眼底。闲聊用餐中,家长也没有错过小朋友的成长。
△门头效果图
并不迎合儿童空间五颜六色的传统设计模式,而是以独特的空间造型及布局表现空间故事。白色、灰色、黑色、银色为主色调,局部彩色点缀的Katopia空间,将外星意象破解为更为多元的设计语言,奇异与科幻感并存。
◾关卡二 - 蹦床&宝石光环通道&黑暗映画室
另条路线的最内部藏着Katopia最神秘的黑暗映画室。蹦床-勇敢网-宝石光环通道-黑暗映画室,蹦跳、匍匐、穿行、探索,拥有勇敢者的心才能见到黑暗映画室的光影奇境。
STEAM小教室STEAM小教室专用于教授小朋友STEAM课程,空闲时也可作为用餐区。课程通过老师的情境营造,设定不同的主题及相应的动手任务,开发孩子的创造力和协作力。教室墙面切出宝石造型增加空间的通透感,家长们可透过玻璃观察小朋友们的听课状态。
△角色扮演区 过道设置黄色风管
生日聚会空间&用餐区
生日聚会空间和用餐区以宝石开洞造型的白色渐变玻璃隔断,空间在开放与半开放间游走,视线游移中,呈现有趣的空间面貌。
△虚实掩映的二楼用餐区
△从厨房玻璃窗口反射的二楼空间
用餐区的天花吊顶采用捶打纹镜面不锈钢,抬眼间,便闪入朦胧梦幻的时空错觉,带你穿越几万光年,去到真正的Katopia。
轴测图 1F
轴测图 2F
Katopia外立面&太空舱式玄关入口
飞碟、星环构成带有未来感的白色外立面,记录Kaka从母星旅行至地球的航程,引发孩子们航行宇宙的奇思妙想。
白色太空舱式玄关入口,嵌入超白玻璃和竖条灯带,通过玻璃可窥视Katopia的局部面貌。厚重的太空舱门,营造Katopia的神秘感与进入空间的仪式感,也抵御唐山冬日的寒冷。推开门,即可进入迷你版的Katopia星。
1.5 Floor
玩乐区
1.5层是小朋友的专属玩乐天堂,也是挑战自我的勇气通道。两条不同路线,遇见不同关卡。
◾关卡一 - 攀爬墙&滑梯
攀爬墙是Katopia一处白色荒原上的疙瘩山,翻过它后则可进入曲折的滑梯虫洞,滑进一楼的海洋球池。
[故事文本]小朋友是探索Katopia的宇航员,Kaka希望他们能一点点地发现Katopia的奇妙。
Kaka喜欢看他们在Katopia的星环上奔跑、大叫,在飞碟里瞎逛太空,在颜色变换的陨石坑中游泳,在奇怪的地形里钻来钻去,追逐星带样子的原力……
设计概念
Kaka,Katopia亲子餐厅的吉祥物,一个来自Katopia星的大吃货,也是地球版Katopia的建造者。
在设计概念中,itD完善了Kaka来到地球的故事背景。“一个几万光年外的星球翻版,一个集合快乐和想念的地方”,Katopia不仅因Kaka对母星的想念而建,也为了与地球小朋友快乐玩耍。
△宝石光环通道
◾0-1岁小朋友爬行区
楼梯下方还藏着一个给0-1岁小宝宝爬行的小基地,0-1岁的小宝宝和年龄大一些的小朋友分开玩耍,避免小朋友不小心碰撞到较小的小宝宝。
Katopia,一个承载着外星幻想的亲子互动空间,一个有趣的童心畅想之地。愿卡托邦空间的小惊喜成为孩子们白日梦中畅游星际的灵感蓝本,无尽想象在这里驰骋。
△平面图1F
△平面图1.5F
△平面图2F
△Katopia亲子餐厅小览
[空间布局 ]Katopia的空间特色,即在于将玩乐区和用餐区结合,创造安心温馨的亲子互动环境。孩子们在快乐游戏、探索外星时,家长们能够时刻关注到孩子们的玩耍过程,增加亲子互动的时间与空间。
[空间主题] :Katopia星球探险
星球 —— 未来感
整个空间即微缩的Katopia星球,采用灰白色调及金属质地材料,切合外星人Kaka来到地球建造母星Katopia的故事背景。
宝石 —— 异形切面
空间采用大量的菱形造型切面,丰富Katopia星球的设定。
客服
消息
收藏
下载
最近



































