查看完整案例

收藏

下载
八月我们如期而至,当探索的目光投向充满幻想的场景,它正式拉开帷幕。饱含深挚的感情,据说只有心灵清晰感受到的事物才是真实的。欢迎来到这个丰富多彩的动态世界。
喜欢法式艺术风格,想要明亮温馨的家,这次遇到的是精美的业主,在方案上做了非常多的沟通,享受居家+亲子的乐趣,希望家能给他们带来舒畅的感觉,缓解疲倦感和无形的压力风格上营造包裹着少女心的奶油质感,高颜值即正。
混搭风格的客厅,通过弧形造型壁炉、石膏花线、简洁的造型形式和特殊样式的抽屉柜来表现影视墙部分,以及石膏台缘线布局来划分整个客餐厅过于长的墙。
屋主想要一种纯净整洁,不繁琐复杂的生活空间,没有刻意去凹造型,所以空间更在意于氛围感的烘托,餐厅意于此,蚕丝灯烘托了此空间的环境氛围。
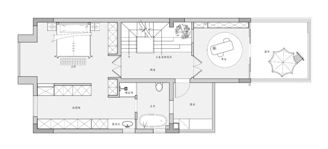
主卧在三楼,走廊尺寸的改变给主卧的法式对开门足够的空间,将主卧升级为功能性套房空间,在整个的色调搭配以及灯光调试上都以暖色调为主,软装搭配柔软度较高的米白色作为软装主色调,通过石膏花线实现硬装造型感。
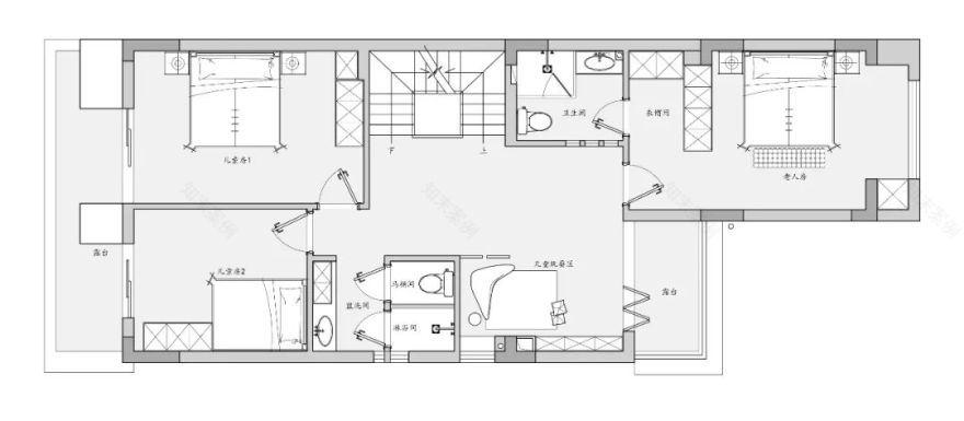
次卧以舒适性为主,因为是老人房,色调也很温和,床头的挂画体现创意感。
儿童房在二楼,设计很有童趣,分为女宝宝和男宝宝,用一些椭圆形的软装来衬托,软糯感十足。
楼梯间的设计也很巧妙,纯白色的台阶,无边框玻璃,时尚感突出,同时在四楼的楼梯上还设置了一个休息区,是留给屋主休憩的好地方。
楼盘名称:湖山壹号
户型面积:360㎡
设计风格:法式混搭
作品名字:雾里
格局分布:五室三厅
硬装设计:侯卓莉 软装设计:彭沥黎
整体费用:160W
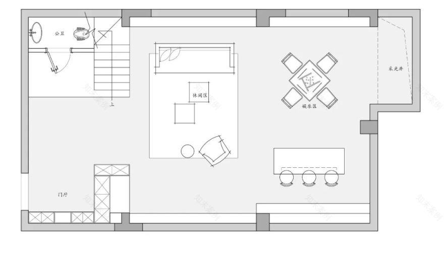
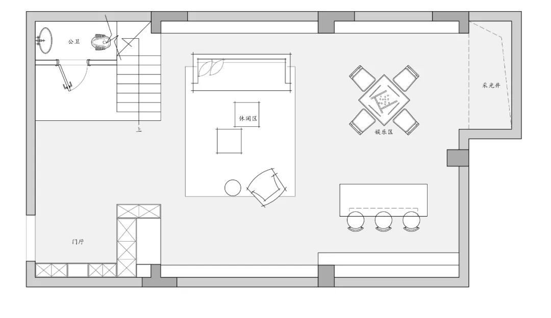
负一楼
一楼
二楼
三楼
我们的强项不止施工,设计也让您眼前一亮
经 | 典 | 案 | 例 | 分 | 享
硬装设计/软装搭配/施工服务/全案设计
琢信装饰,2011年成立于重庆,是一家集硬装设计、软装设计、施工服务、全案整装为一体的专业装修设计公司,公司现有重庆总公司和广安分公司两家直营公司,在重庆巴南、沙坪坝、万州、合川以及四川巴中、分别成立了五家直营店面。
公司成立多年以来,一直把口碑和诚信放在第一位,坚持以“做重庆装饰行业良心企业”为品牌理念,让我们的服务更优质、更真实,为重庆装饰行业留下一方净土,有别于装饰行业中的其他传统装饰行业,琢信装饰用近十年时间走出了自己的新道路!
重庆市渝北区余松一支路龙湖紫都天街百安居旁
Next to Baianju, Zidu Street, Longhu, Yusong first branch, Yubei district, Chongqing
商务Marketing座机:023—81695690
业务联系
Business Connection15086950412品牌Brand Development15723494361BRANCHSTORE
大学城分店:重庆市沙坪坝区永祥路81号附25号龙湖拉特芳斯sp3-s4-0205咨询热线:18580228722
巴南分店:巴南区万达金街2楼97号咨询热线:15123212893
大渡口分店:大渡口居然之家三楼咨询热线:18680732521
广安分公司:朝阳大道二段东城国际3号楼3楼咨询热线:18608266055
万州分公司:友豪万商城21栋501(红星美凯龙旁)咨询热线:18883616205
合川分公司:合川花滩家悦荟嘉滨路517号4-1咨询热线:023-42891339
江津分公司:滨江新城南北大道汇金中心(居然之家)咨询热线:15023281048
琢信工装——贰方设计:渝北区余松一支路龙湖紫都天街百安居旁咨询热线:18623531011
客服
消息
收藏
下载
最近


















































































