查看完整案例

收藏

下载
重庆购物狂是重庆本地知名生活和交流平台,致力于为本地用户提供便捷的生活交流空间和体贴的本地生活服务,辐射重庆400多万用户。作为重庆本土最大的生活类网站,购物狂用起专业的论坛形式,在装修、时尚、教育、旅游、相亲吸引用户分享经验、热烈讨论、贡献知识。重庆购物狂已经成为用户生活中不可或缺的一部分。
琢信工装品牌贰方设计受邀为重庆购物狂网络技术有限公司打造一个实用、便捷、温馨的办公环境,设计师从年初开始与甲方接触沟通,初期甲方希望在他们现有的布局下增加一个演播室,多次沟通下决定将整个办公环境做一个重装,改善环境。
BASIC INFORMATION
项目名称 | 重庆购物狂路演、演播室、办公空间设计
设计主案 | 桂晓庆
户型面积 | 1000㎡
项目地址 | 渝中区·上清寺环球广场
施工团队 | 贰方建造
改造前
改造后该项目以现代的设计手法,以人为本的思想,旨在更便捷沟通的同时亦能划分出不同的功能区域,改善老旧的办公环境。
卡座移动后可变身为一个超大空间作为路演、大型会议、培训空间。使用卡座时可保证每个卡座的独立性和私密性。在窗户设置了私密眺望卡座。
演播厅改造前
演播厅改造后,路演空间主要利用可变的思路进行设计,在大空间内设置了7组滑动卡座以及眺望吧台,满足不同使用场景。新增演播室用于直播。
会议室墙体以现有柱子为基础加厚、墙面非垂直处理延伸一段弧形至顶面,把空间视觉高度拉伸,让使用者感受不那么压抑。
顶面采用白色金属铝方板,层次感加强且不压抑
入户休息区
原始户型图
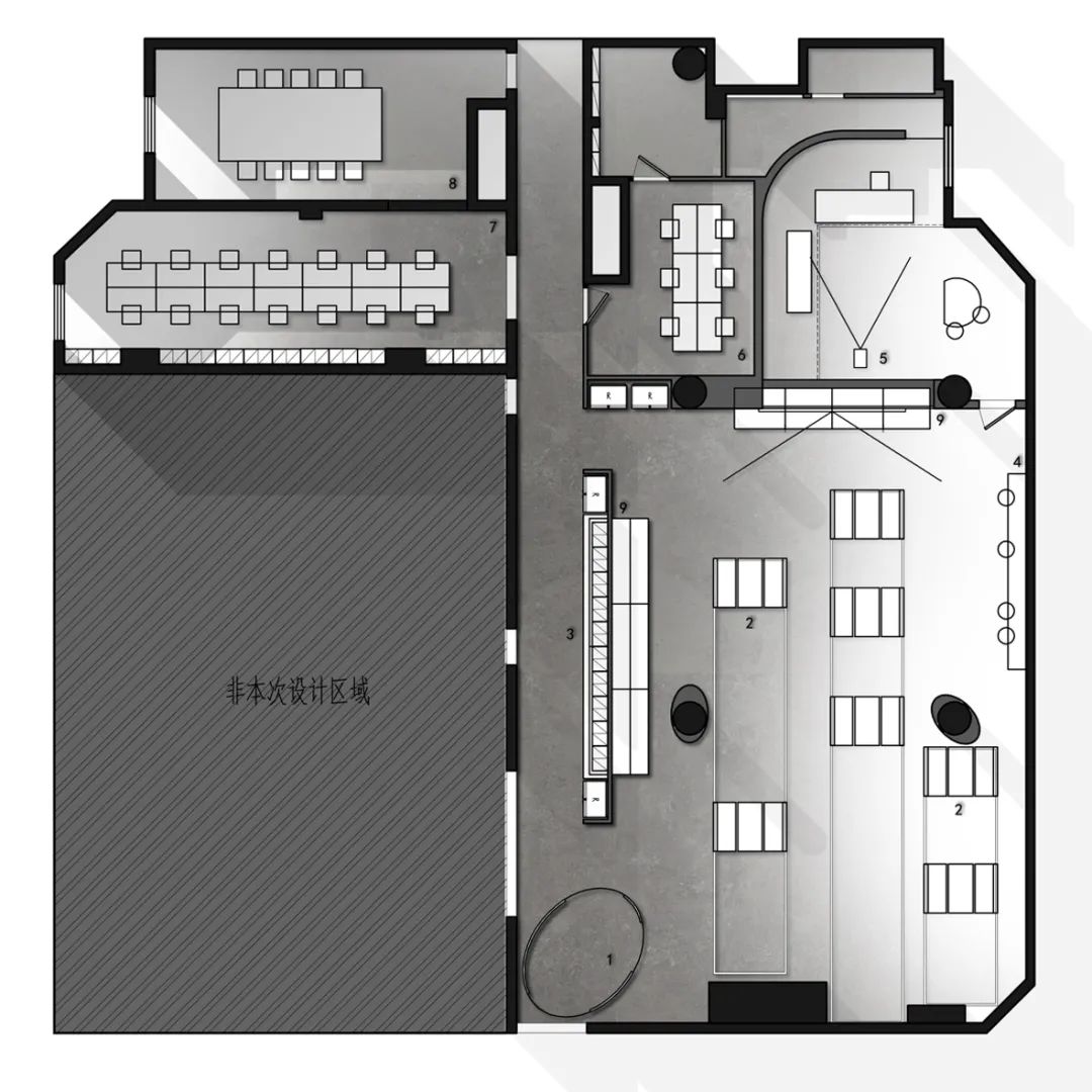
平面户型图利用空间功能的重组,以及重组动线的规划,使得动线更加清晰。利用空间划分的方式阻隔视线,提高视觉层高,不显压抑。入户分左右两条动线,将原本一个大空间的敞开式办公区、通道以及会议室将其分割为3个区域,不同的区域可以做一个公司内部部门的划分。
原始户型图
平面户型图在路演大厅入户位置设计一个椭圆形门厅(图内1),因为入户的位置一眼望去,是长廊通道,所以设计师利用长虹玻璃,让入户的位置看不透。在现有办公室(非本次设计区域)不做调整的区域外增加茶水区(图内3),茶水区设置有微波炉、冰箱、零食售卖机等方便员工的设备。起到分割空间,又可以用厚度做出可以隐藏的卡座(图内9)。琢信工装品牌——贰方设计地址:渝北区余松一支路龙湖紫都天街百安居旁咨询热线:18623531011
-THE END -
我们的强项不止施工,设计也让您眼前一亮
硬装设计/软装搭配/施工服务/全案设计
琢信装饰,2011年成立于重庆,是一家集硬装设计、软装设计、施工服务、全案整装为一体的专业装修设计公司,公司现有重庆总公司和广安分公司两家直营公司,在重庆巴南、沙坪坝、万州、合川以及四川巴中、分别成立了五家直营店面。
公司成立多年以来,一直把口碑和诚信放在第一位,坚持以“做重庆装饰行业良心企业”为品牌理念,让我们的服务更优质、更真实,为重庆装饰行业留下一方净土,有别于装饰行业中的其他传统装饰行业,琢信装饰用近十年时间走出了自己的新道路!
琢信装饰门店
总部地址:渝北区余松一支路龙湖紫都天街百安居旁
咨询热线:023—81695690
大学城分店:重庆市沙坪坝区永祥路81号附25号龙湖拉特芳斯sp3-s4-0205
咨询热线:18580228722
巴南分店:巴南区万达金街2楼97号
咨询热线:15086821218
广安分公司:承平盛世二期(宏志大道676号)咨询热线:0826-2990123
巴中分公司:巴州区回风大道都市春天二楼
咨询热线:0827-2111982
万州分公司:友豪万商城21栋501(红星美凯龙旁)咨询热线:18883616205
合川分公司:花滩国际新城九华路89号
咨询热线:023-42891339
琢信工装——贰方设计:渝北区余松一支路龙湖紫都天街百安居旁
咨询热线:18623531011
客服
消息
收藏
下载
最近





















