查看完整案例

收藏

下载
- ZHUOXIN DECORATION
「琢信x 做重庆装饰良心企业」
Location:重庆
绿地翠谷
Area:148.2
Style:美式轻奢
Apartment layout
四室两厅一厨两卫
Cost:50万
Cooperative business:佐敦漆
王阳洋全案设计师设计理念:设计应是以人为本
贾云德
项目经理
全神贯注、聚精会神的做好每一个项目
城市的风很大,但始终有人在等你回家。
- 业主小故事 -温柔可人的女主和衣着讲究的男主,作为婚房,他们希望是完美、舒适、实用的。女生有很多的想法想要用在这个房子里面,男生表面有时会反驳,但是背地里却又悄悄的想办法实现,对于“我在闹,你在笑”最好的诠释我觉得就是他们了,女生喜欢鲜艳的颜色,因为她觉得看着让人觉得欢喜,少女心的她非常的小女人,喜欢特别的东西。男生觉得好看的同时也要实用,因为是要过日子,不能只是好看,审美主义和务实主义,看着像永远不相交的平行线,但是却意外和谐的在一起了。-设计师眼中的业主-第一次接触业主的时候,女生说一定要漂亮,颜值一定要高,其它的可以做退让,我只管软装的好不好看,哈哈哈,我当时就觉得很有意思,因为大多数客户首先想到是要实用,所以当时我就很多想法,想要在他们的房子里体现,然后见到男生,男生说我们在美观的同时能不能再多考虑一点实用性,那当然是可以,设计师不就是平衡这些的嘛,那就大刀阔斧开始吧。
CASE ANALYSIS
案例分析
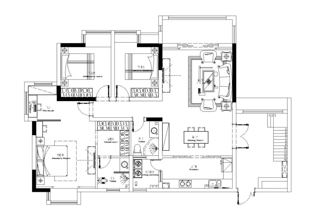
/我们从客户的需求出发,业主喜欢美式轻奢,颜值和实用性是重点,这个风格如果驾驭不好就会显得老气,所有设计师在造型上尽量简化,不用过于繁复的线条和修饰,重点用在家具的选择和色彩的搭配,装饰画和配饰,包括乳胶漆颜色的选择,来丰富整个空间层次。我们保留三个房间,一个衣帽间,入户挑高的位置要现浇,楼上做一个备用房间。
入户设计玻璃扶手,双开门进入客厅,非常具有仪式感。
入户楼梯的位置,原本客户是想在进门就做楼梯,但是这样会显得整个入户非常拥挤,所以改变了楼梯的位置,让入户开阔起来,也可以更好的利用空间。
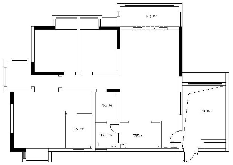
原始户型图
平面户型图
客厅和公区部分用了大面积的浅灰色,主卧顶面用了淡粉色的漆面,和墙面的茱萸粉相互呼应,但是因为纯度和明度的不同又相互对比,老人房用深枚红色系,增加美式特有的一些味道。
入户Vestibule
入户是一个独立的区域,一个挑空的空间,后期进行了现浇隔了一层出来做备用房间,这样的独立空间让整个户型非常具有仪式感。客厅 Living room
客厅空间区域宽阔,满足家庭成员的活动需求。主沙发选用黑色皮质,搭配深蓝色单人位和黑白格子单人位,让空间在沉稳的同时富有一些色彩的变化,不会因为黑色让空间显得压抑。
茶几选择白色大理石和金色的搭配,增加空间的精致感和带一点点的奢华感。
餐厨 Kitchen&Dining
餐桌选用白色岩板材质和金属的搭配,简单的款式却多了一点设计的小细节,餐椅选用脏粉色系的丝绒质感,烘托美式的质感,也让白色岩板不过于强硬。
设计师特意挑选了一副特别的挂画与整个房间设计基调不谋而合沉静久远干净利落。一束满天星,点缀于餐桌上瞬增生机勃勃之感。
那些我为你烹饪的食物,是写给你最美的情书。
主卧Bedroom
美式轻奢都是秉承年轻化的奢华特点而存在着的,也是青春与活力的代名词,薄荷绿为主色的睡床,和粉色墙面形成对比,这种明度和纯度的对比不会让人觉得强烈。
主卧占据了除开客餐厅整个房屋的最大面积,书房,衣帽间,卫生间,按照总统套房的标准给业主设计。在漆的选择上,也做了大胆的设计,顶面未用传统白色,而是更浅一些的粉色,和整个墙面做一个碰撞。
加上与众不同的壁灯,还有属于女主人的梳妆台,一切都是淡淡的,平和的,温暖人心的。
次卧 Bedroom
打破传统老人房的样子
运用复古色深枚红做了床头背景色,黑色丝绒床头来做搭配,别有一番风味,倒成为了女主人最喜欢的房间之一。
儿童房 Children’sRoom
儿童房不像大多数做得比较童趣,而是按照成年人的标准来打造。灰色的墙漆和千鸟格的床架,多了一些时尚。
卫生间Toilet
卫生间选用了墨绿色的砖,增加一些复古的韵味。
-END-
撰文✎王阳洋
袁琪
平面/编辑✎袁琪
「所有一切能让我长久喜欢的事物和人都拥有改变我的力量」
Flower is red, leaf is green, candy is sweet, and so you.
喜欢我们可以转发到朋友圈哦
我们的强项不止施工,设计也让你眼前一亮
你们世界的美好与我们环环相扣
给生活一个新的定义
家是最美的风景
化繁为简
嵐
"学霸&喵星人"の蓝色小屋
美式轻奢精致优雅的生活
一切都是最好的安排
佛系girl的惬意生活
客服
消息
收藏
下载
最近














































