查看完整案例

收藏

下载
DECORATI
······一宅一生 琢信打造
【12.26】
艅艎何泛泛,空水共悠悠。阴霞生远岫,阳景逐回流。蝉噪林逾静,鸟鸣山更幽。此地动归念,长年悲倦游。《入若耶溪》王籍(南朝·梁)//人闲桂花落,夜静春山空
月出惊山鸟,时鸣春涧中
案 · 例 · 概 · 述
CASE SUMMARY
设计团队:重庆琢信装饰有限公司
楼盘名称:国博城·莱蒙香榭
户型面积:117㎡
格局分布:三室二厅一厨二卫
硬/软装设计:杜艺王阳洋
项目经理:刘东
整体费用:55w
空间摄影:蒋川、平面/编辑:袁琪
合作商家:积成世家、杰西佳、阿尔贝娜、良木道、日门、远信舒适家日立空调
业主
出身书香门第,为往圣继绝学,为万世开太平,耕读传家,从小耳濡目染的他毕业以后作为一名老师独自定居重庆。
在三尺讲台以外,烹饪、音乐、阅读、电影、品茗、收集小物件都是他闲暇生活的调剂,每一次见到他时,仿佛他身上都散发着温润的木质清香。
设·计·理·念
DESIGNCONCEPT
设计师拆除与客厅相邻卧室,一部分作为衣柜以扩大主卧室收纳功能,一部分并入客厅作为开放式书房,同时将观景阳台纳入客厅区域,尽可能引入自然光线,也让公共区域的空气流通更加流畅。
硬装设计
杜艺
软装设计
王阳洋
项目经理刘东
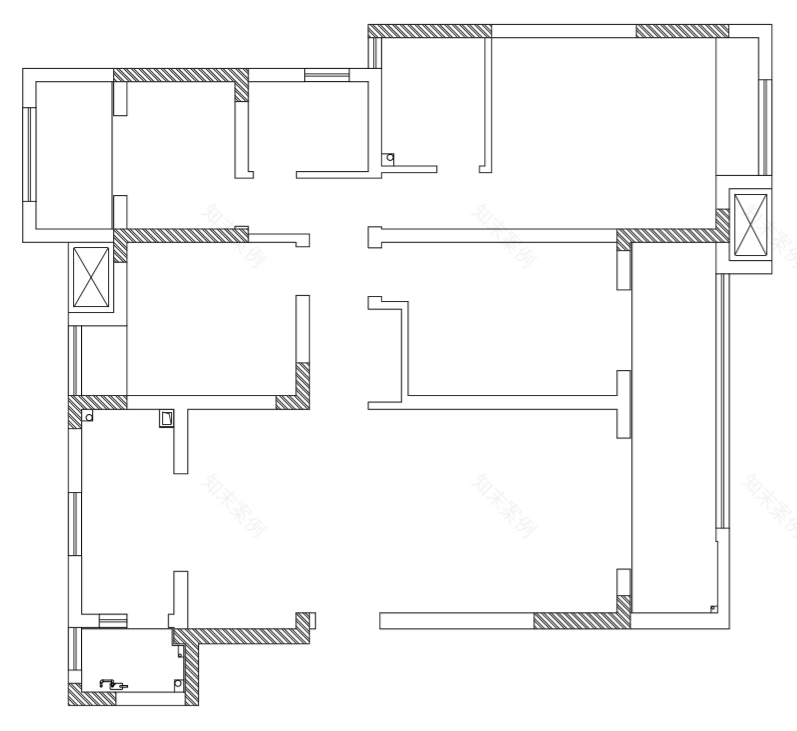
原始户型图
平面户型图
该案原始户型为刚需四室两厅,使用面积却只有117㎡,故每个房间都难以有充裕的收纳空间,且因楼层较低,窗外绿化树木遮挡采光,导致整体光线和空气流通不太理想。
怎样合理规划功能分区,在满足日常需求的同时,放大自己的使用空间,解决初始结构的若干问题,是设计师首先要考虑的。
软·装·搭·配
SOFT OUTFIT COLLOCATION
按客户要求,质感偏爱略好一些,所以家具上,我们选择了樱桃木,比白橡木偏红一点,整体干净而纯粹,暖光色的墙面,灯具上选了一些胡桃木质感的木质灯具,让整个空间稳下来,和樱桃木形成对比,同是木质,并不会觉得突兀。
吾庭浅草复萌发,无限天地行将绿。—小林一茶
厨房里的欢乐时光
HAPPY TIME IN THE KITCHEN
踏进家门,引入眼帘的是素雅又有生活气息的鞋帽区和餐厨区。柔和的樱桃木和温润的水磨石让人倍生亲切之感,拂去一天忙碌生活带来的铅尘,让心也平静下来。
ORDER
入户区设计师对原有的布局进行了调整,封闭的厨房区域与逼仄的餐厅区域都得到了释放,改造后的厨房除了拥有更好的采光和动线以外,还增加了岛台区域,空间的灵活性和延伸感都得到了增强,实现了功能最大化。
在色调和材质的选择上,餐厨区域选用了客厅区域樱桃木的色调作为呼应,保持了空间的连贯性,还采用了易于打理的灰色大理石和水磨石,让区域更加清爽和洁净。通往生活阳台的滑门选择的是极窄边框的瓦楞玻璃,既引入了光线又保证了隐私,同时也让光影变得更加富有趣味。
春雨芳草径,飞蓬正茂时。—松尾芭蕉
客厅与书房的碰撞
lIVING ROOM&STUDY
规划后的客厅区域以沙发和书桌作为核心形成环绕动线,影音区与书房相对独立又互相关联,家人闲坐,灯火可亲,不管是好友交流畅谈还是独自伏案工作,都会让人感觉自由舒适。
书桌后面为业主预留了近4.5米的大书柜,半开放式的柜子里安放着那些缓缓流逝的岁月时光,世界再大,读过的书会慢慢地变成你的一部分,变成平淡日子里的星星。
(傍晚视觉)
并入客厅的观景阳台,一部分妥帖的收纳了洗衣机和烘干机,解决了日常的晾晒问题后,剩余的部分变成了舒服的休闲区域。一整面的落地窗带来优越的采光和景致,在冬日的暖阳里,光线穿过麻纱的窗帘,时光变得缓慢而悠长。
私のすべてはいいですが、それ以外は、あなたを想っています。
独坐幽篁里,弹琴复长啸。深林人不知,明月来相照。—《竹里馆》王维(唐)卧室
BEDROOM
卧室是每个人一天中停留时间最长的地方,设计师拆除了飘窗和原本的空调机位,让主卧室空间更加宽敞,原本与隔壁房间的共墙也退了60公分,巧妙的增加了一面超大的暗藏衣柜。而光线最好的窗边,则安放了一个小小的梳妆台,这是细心的业主主动提出为未来的女主人准备的。
主卧仍然选用了温暖的樱桃木家具,床后用暖木棕墙漆作为背景,搭配棉纱窗帘和灰色床品,宁静又柔和。
一点点皮质质感的床,和水泥灰的衣柜有衔接,也能用木质来消弱冷硬感,材质的高度统一,即有秩序,也有雅致。
老人房拆除了院馆隔墙,扩大了使用面积,在硬装上没有过多的雕琢,用暖白色搭配木质床,自然清新,窗外郁郁葱葱的草木就是最好的装饰。
終わりにするEND
我们的强项不止施工,设计也让你眼前一亮
云
云落·归
人在北京、房在重庆,看90后宝藏男孩...
打造属于90后极具个性的休憩之所
云端之上—80后的自由与随性
90后的新婚生活:她在闹/他在笑
宝嘉花与山越简单越美好
留着时间、留住岁月
狂野之息Wildness|混泥土丛林中的自由灵魂
客服
消息
收藏
下载
最近























































