查看完整案例

收藏

下载
DECORATIO
······一宅一生 琢信打造
天气不似预期
但要走 总要飞
道别不可再等你
不管有没有机
岁月如歌(《冲上云霄》)
#标签:80后,男,职业:空中旅游线路开发!#一刚开始,知道业主是在机场工作,给我的第一反应就是“你是机长吗”“开飞机的吗?”……后面才了解,他是空中旅游线路开发的大神!大神一般都很繁忙,每次和设计师选材料的时候,都是背着电脑;大神几乎每周都在不同的城市,一会儿在日本,一会在美国,一会在云南。因为工作的关系,让他也感受到国内外很多地方的不同风情文化,对于家的风格,他有很明确的目标,爱自由随性的工业风,不用过于粗狂。真正的居住,是不被“风格”所束缚的,是空间和居住者的关系,动线、节奏和逻辑,都应从这里出发。我们这次的设计,以【居住者】为线索,呈现生活的精致和美好,所以有了这次工业风格的混搭。户 型 改 造
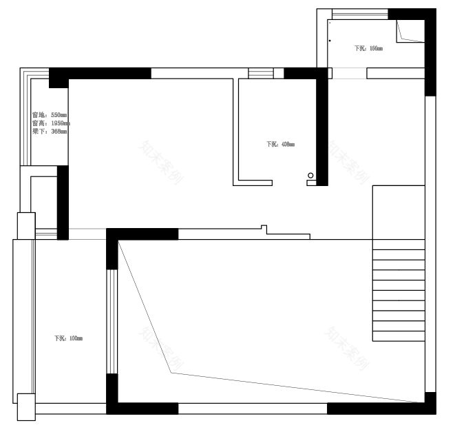
一楼原始户型图
一楼平面户型图
二楼原始户型图
二楼平面户型图
【把不合理变为合理】原始户型是跃层,功能俱全。但是楼梯位置不佳;无法放置餐桌;设计师把楼梯换了位置,让一切变得更合理……
设计师最开始目测现场,发现原始楼梯的位置不合理,家肯定是要有餐厅,享受美食,打开味蕾,才是完美的生活。必须要让业主能够每天补充充足的营养。
调换位置后,有了更大的区域空间,既是书房也是休闲室,整个空间相对宽敞,配上现代化的书架,有业主的专业信息书籍,还有他收藏的摆件。
色彩分析
整个空间以大面积白色为主色,电视墙增加一个灰色漆,让空间有一个层次感,加入一些金色的元素来增加空间的精致感。
设计团队:重庆琢信装饰有限公司
楼盘名称:融创紫枫郡 面积:120㎡
格局分布:三室两厅一厨一卫
硬/软装设计:曹 琦王阳洋
整体费用:40万
空间摄影:代忠海平面/编辑:袁 琪
客厅 living room
打开门的一瞬间,干净利落的空间,家里的主色调映入眼帘。皮质沙发、灰色电视墙、棕色电视柜,黑色钢架楼梯为空间带来了一份特有的力量感。
◆ 黑色钢架楼梯,工业风专属
空间的舒适度以及安全起见,把客厅阳台纳入客厅使用,阳光从落地窗洒入房间,让整个房间看起来明亮了许多。
喜欢冬季的阳光穿透木百叶的缝隙撒入客厅,阳光给整个房间增添一丝温暖,站在落地窗前看着远处轻轨开过,抬头看着飞机飞过,感受着城市快速的节奏。
客厅没有用传统布帘,而是用质感有硬度的黑色木百叶,开关闭合对光起着不一样的形态作用,木质的结构和窗外的景更融合,客厅少用装饰符号,更多是希望内外一景。
帘子闭合状态依然能看到每件家具上的光影,秋天的凉意带着光的问候,我们坐在沙发上不说话也觉得温暖。
餐厅&厨房 dinning·kitchen
餐厅的布局:顶面用木地板上顶做了装饰,让整个空间在大面积白色基调下不会显得乏味。木质的餐桌椅,搭配暖光吊灯,一切都是那么和谐。
业主工作比较繁忙,但偶尔也会下下厨,虽说下厨经验不如他工作经验多,不过见多识广的他会料理的菜品倒不少。西餐、中餐、泰国菜……
柴米油盐酱醋茶都一一俱全,味蕾的打开,从厨房开始……
主卧bedroom
主卧是业主喜欢的样子,下班回到家,洗漱完毕后,躺在床上,是最放松的时候。
皮质和钢架结构的床,搭配深色的背景墙,挂画必不可少。灰色窗帘,为空间带来一些光影的变化,其余空间都选用棉麻材质,舒适自然。
作为机场工作者,形象管理是非常重要的,应业主要求,为业主打造了衣帽间,硬装上线条流畅,没有过多的色彩,全身镜是衣帽间的必备,整理好着装,意气风发的出门工作。
次卧 bedroom
一楼卧室床选择了做旧粗犷的木头材质,深灰色的墙面和做旧,在我看来很有一丝国外风情。
卫生间 toilet
次卫和主卫都是深灰色系的墙砖,主卫进行了干湿区域分离,配备了智能马桶、独立淋浴房,整个空间更具厚重感。
其他空间 other
regions
-END-
我们的强项不止施工,设计也让你眼前一亮
90后的新婚生活:她在闹/他在笑
宝嘉花与山越简单越美好
留着时间、留住岁月
狂野之息Wildness|混泥土丛林中的自由灵魂
邂逅浪漫、时光渐缓的流沙
印/迹 优质男青年 向往的生活
自然清新的家居空间、让繁忙都市人享受一份宁静
客服
消息
收藏
下载
最近















































