查看完整案例

收藏

下载
DECORATI
······一宅一生 琢信打造
快乐的感染力让每个人都无法抗拒,所以其他的人也都尽自己的所能贡献出自己的那份快乐。--美国欧亨利《麦琪的礼物》非常讲究及爱整洁的叔叔阿姨~女儿(郑姐)女婿(刘哥)也是职场精英~特意要给还在上学的小孙儿预留一间房。储物空间一定要多,采光一定要好。
叔叔阿姨不太懂装修,也不便于管理
郑姐工作比较忙,姐夫也有自己的生意需要经营
鉴于对我们公司的信任,就选择了我们的整装服务文艺设计师的自述:接到这个Case,作为设计师的我就明白了,我要花更多的时间和精力在这儿,我必须把控好每一样由我们公司提供的主材,我们的整装必须区别于目前市面上那些所谓的整装公司,我们不仅要保质保量完成,而且还要保证舒适和颜值。
1
案例分析
Case Analysis
楼盘名称·国奥村3期
户型面积·115㎡
设计风格·简美
格局分布·三室二厅一厨二卫
硬装设计·李科
软装设计·李科
项目经理·王晓江
整体费用·43W
合作商家
力诚建材(橱柜,厨卫吊顶,乳胶漆)萨米特地砖
菲林格尔木地板什木坊套装门
储物空间多,光线好,便于打扫然而我们设计师总是会拓展自己的思维根据简单的要求做更多隐藏的硬性需求在满足客户要求的前提下给出更好的方案
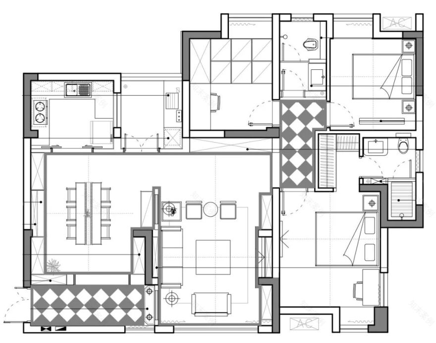
原始户型图
家里是否干净整洁,很大程度说明了这个家庭是否生活幸福。毕竟家人和睦,那才有更多时间去整理这个家,去打理这个装满爱的容器。反过来,一个整洁的家,未尝不能让家庭生活幸福呢?
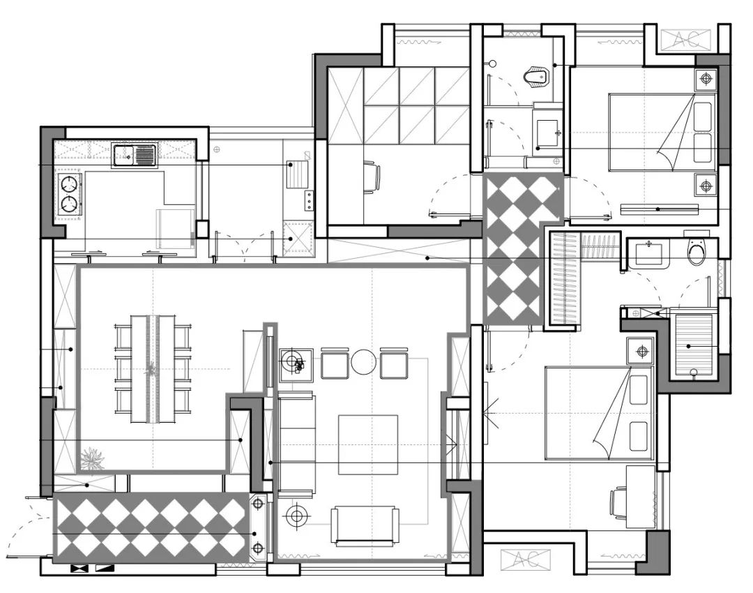
平面户型图
配色及家具搭配
在整个色彩搭配上,更多采用了“提取”法,比如客厅的颜色更多提取自挂画的颜色。在家居搭配上,考虑到方便打扫,最终选择了实木家具,大件的在这一家基本就确定好了,整个款式和颜色搭配都比较协调。叔叔阿姨居住,所以在家具造型上也没过多文章。
01
入户 vestibule
玄关有别于其他户型改动设计,在玄关端头我设计了一面固定格子玻璃固窗,透过窗户可见客厅的部分空间。如此,能扩散客厅的光线,也能延伸进门时的视线(只能看见客厅的一隅)01
客厅 living room
美式等西方格调的装修,都会讲究一个对称的美。而且,就阳台来说,用处不大,便把客厅以及景观阳台连通了。
原本建筑上的构造柱的存在,我考虑制作一个造型简易的壁炉来弱化他的存在,同时将电视柜和电视墙融为一体,电视嵌入式壁挂。同时,客厅旁边的一排收纳柜设计,有利于老人的各种物品的存放。
餐厅·厨房dinning&kitchen
用餐的餐桌,设计的是1.6米,可供全家人用餐。餐边柜也是延续了对称的设计原则,再设计了玻璃柜门来增加空间的通透感,不至于满壁的柜门让餐厅过于压抑。
餐厅靠客厅的墙面也是满壁的储物柜设计,这让次空间的收纳也非常强大。
此空间面积比原始扩大1平米多,而且扩宽了原始的小窗户,增加了采光面。对于老人来说,敞亮的厨房,整洁的操作台面,是最佳的烹饪空间了。
03
主卧 bedroom
因为业主家属于端户,所以主卧是带两个窗户的,多一个窗户,采光也更加了,所以最后设计时保留了。
考虑到阿姨也有不少首饰,所以主卧是配备的床头柜加上梳妆台,梳妆台在窗前,光线也更加自然和明亮。
04
次卧 bedroom
叔叔阿姨到了中年,有时睡眠不是很好,睡一张床可能会影响对方,偶尔会分开睡。所以,这个卧室是预留的郑叔休息或者客人休息的房间,暂时未配备柜子收纳。
05
儿童房children’s room
儿童房的叔叔阿姨特别注重的一块,专门为小孙儿预留的。此空间是设计的全屋定制,榻榻米接衣柜接书桌。让这个不足8平方的卧室变得更加舒适,收纳也空间也足够。
06
卫生间toilet
嵌入式的马桶水箱加壁挂式马桶,有效解决了马桶的清洁卫生,叔叔阿姨对这点非常满意,此外在卫生间设计了壁龛,多余的生活用品,都是可以放置于其中。
【琢信送礼物时间到】先要恭喜网友(养只喵可好?)获得上次点赞最佳获得意大利精美红酒一瓶后续我们会联系您来领取哦
来咯来咯8月22号-8月29号期间,您只需要在下方评论区留言并点赞自己的留言,我们将在8月29日上午12点截止,选出评论区点赞数最多的一位,送上家用实木儿童矮凳。
我们的强项不止施工,设计也让你眼前一亮
看,他们的幸福生活开始了
普赛克和红浆果,托喀纳斯的别样风情
简洁、素雅之下更多的是自由和舒适
拯救老房颜值势在必行
遇见北欧 绽放自我美丽
暮光之城 极致北欧
现代定义你的极致简约
客服
消息
收藏
下载
最近







































