查看完整案例


收藏

下载
"简"与"减"
JIAN
「Design Concept」
本案是一个精装房改造项目,没有大规模的改动空间的墙面与地面。在空间本身的构造加以雕琢,自然形成造型,简单线条的设计,使居室的现代风格更加的明显。质感天然的木色搭配不争不抢的莹白,一幅恬静悠然的生活画卷,就此缓缓铺展而来。
留白韵味
Blank
遵循“简”与“减”的风格,在空间不过分堆砌装饰物,以黑白与木色构成了空间的现代风格。
Follow the style of "simplicity" and "subtraction", stack decorations in the space, and form the modern style of the space with black-and-white and wood floors.
宁静一隅
JING
天地方圆间,为自己觅一隅的宁静。端起放下、风起帘动,心静了,万物也回归了安谧。
The heaven and the earth are round, looking for a corner of tranquility for yourself. Picking up and letting go, the wind rose and the curtain moved, the heart was calm, and everything was calm.
空间减法
Spatial Subtraction
在空间做减法,将衣帽间、书房协同于主卧空间内,黑白柜体、台面搭配皮革棕的座椅,不同材质之间的碰撞迸发出间距刚强的力度与温润的柔美,传递着雅致、层次的格调。
The space is subtracted, and the cloakroom and study are coordinated in the master bedroom space. The black and white cabinets and countertops are matched with leather brown seats. The collision between different materials bursts out the strength of the spacing and the gentle beauty, conveying elegance and level style.
至精至简
Streamline
幽静的角落,让空间的静默气息沿着木质台阶蜿蜒向上,将老人房独立于二层,给予长辈晚年生活更加独立的空间以及安宁。
GRAPHICDISPLAY
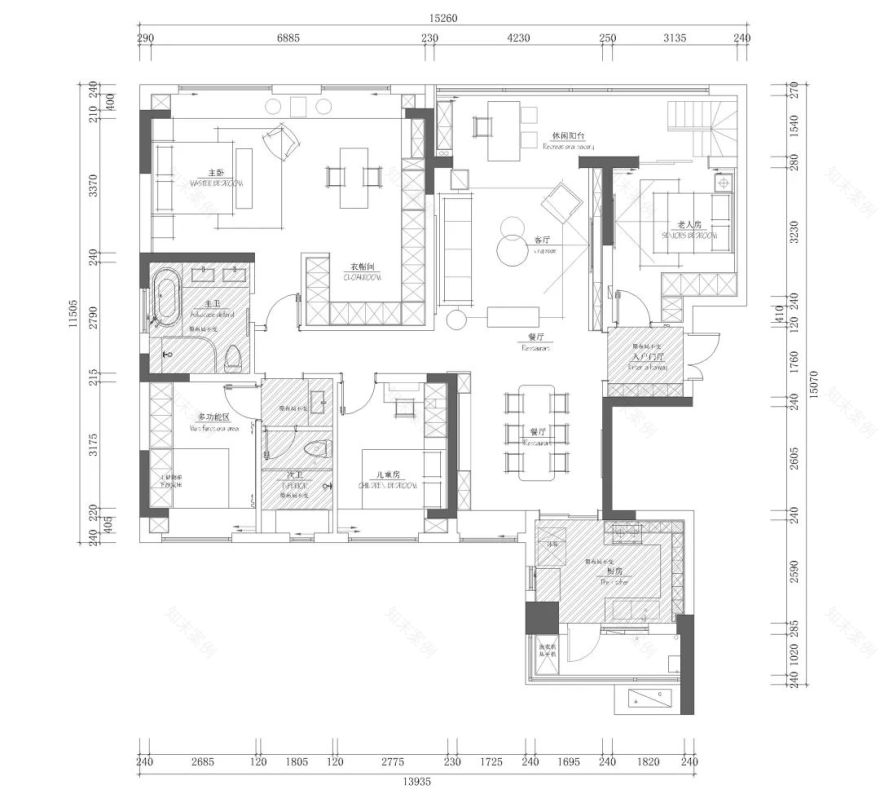
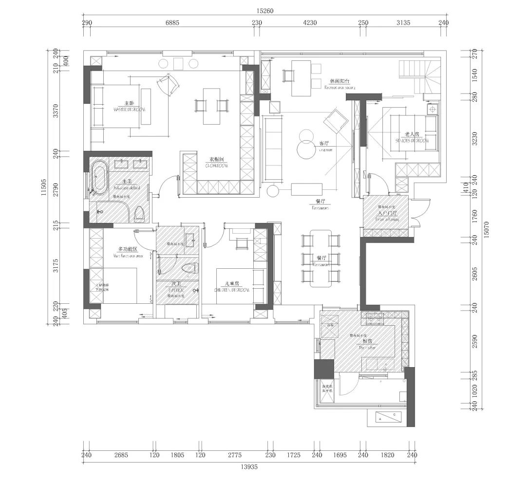
项目类型:平层
项目地址:成都市
项目面积:177㎡
设计团队:廖雨 黎乔
设计工作室:原色原宿空间设计
ABOUT DESIGNERLIAO YU廖雨
原色原宿空间设计
主任设计师
廖雨AWARDING
2019年成都市建筑装饰协会资深住宅室内设计师
2019年第十四届“金外滩”奖最佳概念设计
2020年第二十届银杏金鸟奖入围金奖评选
2020年四川室内设计精英选拔赛”TOP10人物提名奖“2020三棵树健康+室内设计新星大赛全国铜奖
LI QIAO黎 乔
原色原宿空间设计
主案设计师
黎乔
往期推荐
GAMMA ART | "岩"之有理
流动的弧 | Flowing Arc
槿椿庭 | 未来之城·商业设计
槿椿庭 | 未来之城·商业设计
槿椿庭 | 未来之城·商业设计
客服
消息
收藏
下载
最近
























