查看完整案例


收藏

下载
常里
画堂晨起,来报雪花坠。高卷帘栊看佳瑞,皓色远迷庭砌。盛气光引炉烟,素草寒生玉佩。应是天仙狂醉,乱把白云揉碎。
· 设计理念 ·业主倾向于居家感的设计,同时希望居住在有温度的空间中。此外,业主一家三代同堂,老辈希望风格中规中矩,但业主本身希望设计带有创新和突破。因此,设计师在非直线的想法理念中,抽取平衡,添加了更多理性和感性兼容并收的思考。
01
大理石的凌冽和木质的温润化解了冷与热的冲突用黑白两色来构建了整体明亮,简约的氛围弧线的吊顶提升空间整体的灵动性保留了适中格调的同时也打破了视觉局限感受02
通过艺术虹玻来扩充空间感和艺术氛围
岛台拉长整体空间
衔接儿童游乐区
03
打破原有的主卧空间逻辑
自然之灵的雀跃在主卧空间中铺散开来
木质与岩石的并重
将硬冷的寒冬也融为不盈而握的春水
原有的阳台区域,留空天景
夜晚的繁星,伴着晚风吹入梦里
04
去没人的岛,摸鲸鱼的角
粉色棉花糖吐出彩色泡泡
小提琴的协奏曲被弹响
05
卫生间的设计感更明朗
玻璃砖搭配金属形成简约高级的格调
立体挂画调动空间的活泼感
扩充横向视觉感官
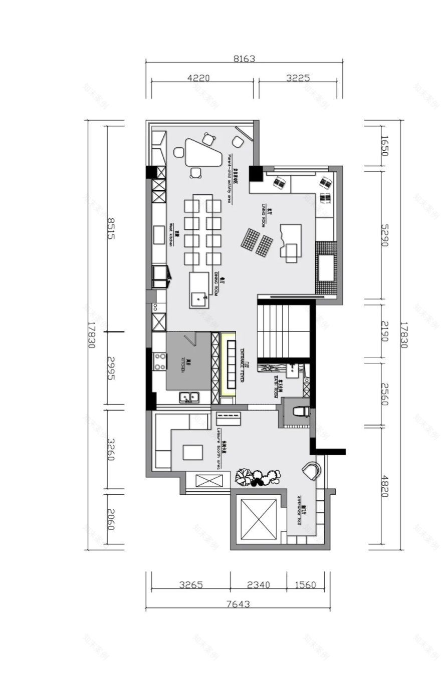
GRAPHIC DISPLAY
平面图
项目类型
私宅
项目地址
成都市
项目面积
260㎡
主创设计师
王端
设计工作室
原色原宿空间设计
ABOUT DESIGNERWANGDUAN王端
原色原宿空间设计
主任设计师
王端AWARDING
2017年成都海尔杯银奖
2018 年-成都市建筑装饰协会资深住宅室内设计师
2019年-成都市家装设计比赛优秀作品
2020年- 红鼎奖——银奖
客服
消息
收藏
下载
最近













