查看完整案例

收藏

下载
用设计传达自己的生活方式、生活态度,家是容器安放我们的身体和灵魂。
——设计师:李文君(Echo)
ABOUT ROOM
房屋信息
户型一室
使用面积
26平米
房屋位置
广东 深圳
装修花费
15万元FOREWORD
说在前面
这是一个26㎡的一居室,户型弊端:没有玄关,卫生间太小没法做干湿分离,客厅床这样摆了之后再放什么家具都显得很局促。厨房不是开放式的,空间显得很拥挤。我们的解决方案是争取每一公分的空间,洗手间砸掉和阳台之间的隔墙改为磨砂玻璃,让洗手间多出了20公分宽度,让干湿分离变为可能。
洗手间和客厅之间的墙也砸掉,实际以磨砂玻璃作为淋浴房和玄关柜之间的隔断,由于把淋浴房缩进去30公分,让嵌入式玄关柜变为可能,小户型也能有一个收纳MAX的玄关鞋柜。
改后的平面布局让26平米的房子有了:玄关区,干湿分离洗手间、工作区、休闲区、睡眠区、大容量衣柜、开放式厨房、洗衣收纳一体的生活阳台。
ROOM SHOW
空间展示
-改造前户型图-
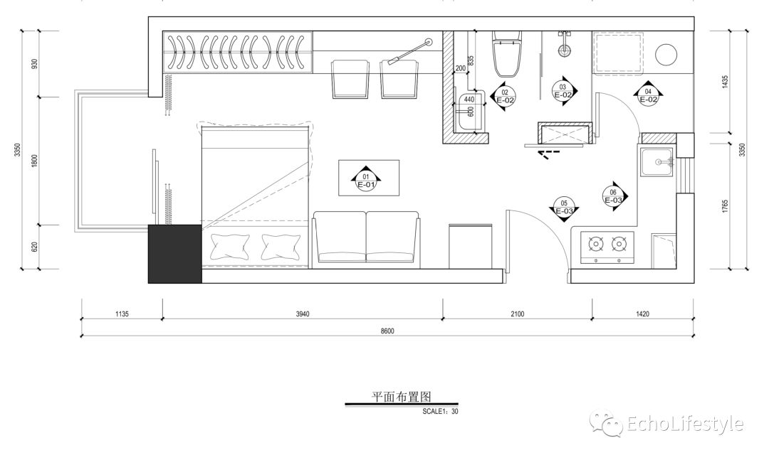
-改造后平面布局图-
实际卫生间布局和图上有所调整,最新的图找不到了,以实际照片和效果图为准。
-玄关-
玄关鞋柜旁边黑色的谷仓门表面也是磁性黑板漆,谷仓门对隔音要求不高的空间还是很省空间的,颜值也高。
对多人居住的空间,就不太推荐在卫生间使用了。
-客厅-
客厅的布局,调换了衣柜和床的位置之后,实现了1米8大衣柜和1米8的双人大书桌。
对小户型来说,床头柜其实很占空间,如果可以不要床头柜,就不用特意为床头柜留出过道,大大的节省了空间。
床的右侧靠近进门位置放了沙发,当时业主有点纠结是放沙发还是餐桌,我建议是平时很少做饭的上班族还是以沙发为主,餐桌可以考虑用茶几代替或者用折叠桌,毕竟在家吃饭的时间比较短,下班累了还可以摊在沙发上休息会儿。
客厅定制了1.8大书桌和置物架,实用性很强。
客厅效果图1
客厅效果图2
-厨房-
原来厨房和客厅之间的墙打掉,做了开放式厨房,厨房墙面贴了业主心心念念的小白砖。
从客厅看开放式厨房
厨房效果图
-卧室-
没有要电视,以投影代替,投影直接吊装在床上方的天花上,既省出了摆电视的空间,又可以直接躺在床上看电影。
简约黑白灰风格的卧室
沙发特写:沙发是我联系供应商给定制的,在靠近床的一侧有个连在沙发上的小边桌,可以代替床头桌使用,在床上随手放个手机或者水杯很方便。
-阳台-
生活阳台,定制了阳台柜放洗手间以及收纳其他生活用品,也是猫咪的基地。
生活阳台效果图
-卫生间-
洗手间砸掉和阳台之间的隔墙改为磨砂玻璃,让洗手间多出了20公分宽度,让干湿分离变为可能。
洗手间和客厅之间的墙也砸掉,实际以磨砂玻璃作为淋浴房和玄关柜之间的隔断,由于把淋浴房缩进去30公分,让嵌入式玄关柜变为可能,小户型也能有一个收纳MAX的玄关鞋柜。
小小的卫生间也能拥有干湿分离
卫生间效果图
QUESTION & ANSWERQ & AQ:
装修过程花了多长时间?
A:4个月
Q:说说是什么给了你灵感,打造出现在这个作品的?
A:简约黑白灰的风格最经典
Q:你对这套作品最满意的地方在哪里,为什么?
A:最满意的在洗手间和客厅的布局。让原本不大的空间实现了8个功能区。
Q:对平面布局做了哪些优化改动,为什么?
A:洗手间砸掉和阳台之间的隔墙改为磨砂玻璃,让洗手间多出了20公分宽度,让干湿分离变为可能。洗手间和客厅之间的墙也砸掉,实际以磨砂玻璃作为淋浴房和玄关柜之间的隔断,由于把淋浴房缩进去30公分,让嵌入式玄关柜变为可能,小户型也能有一个收纳MAX的玄关鞋柜。
Q:在整个装修设计期间遇到最大的挑战是什么?
A:最大的挑战是和施工方的沟通。
Q:回头再看这套房子,设计当中有什么遗憾的地方吗?
A:遗憾的是设计的猫咪友好型阳台柜没有实现,观景阳台也没有定制吧台。
Q:为了满足客户的个性化需求,你在设计过程中做了哪些事情?
A:遇到不太考虑的供应商做错了洗手盆的尺寸和样式,协助业主沟通。
设计师
李文君(Echo)90后室内设计师,软装设计师,设计作品荣获《Elle Deco》家居廊和多乐士主办的色彩大赛色彩风尚演绎奖,入选CCTV2《空间榜样》。
客服
消息
收藏
下载
最近





















