查看完整案例

收藏

下载
FOREWORD
说在前面
八月浅蓝是朋友圈认识了很久但没说过话的,9月份的时候她跑来对我说:然后不到1个星期,就跟我说已经订好了。这速度也是够快的。
工作室在一个创意园区,建面180平,实际使用面积90多平。纯毛坯。
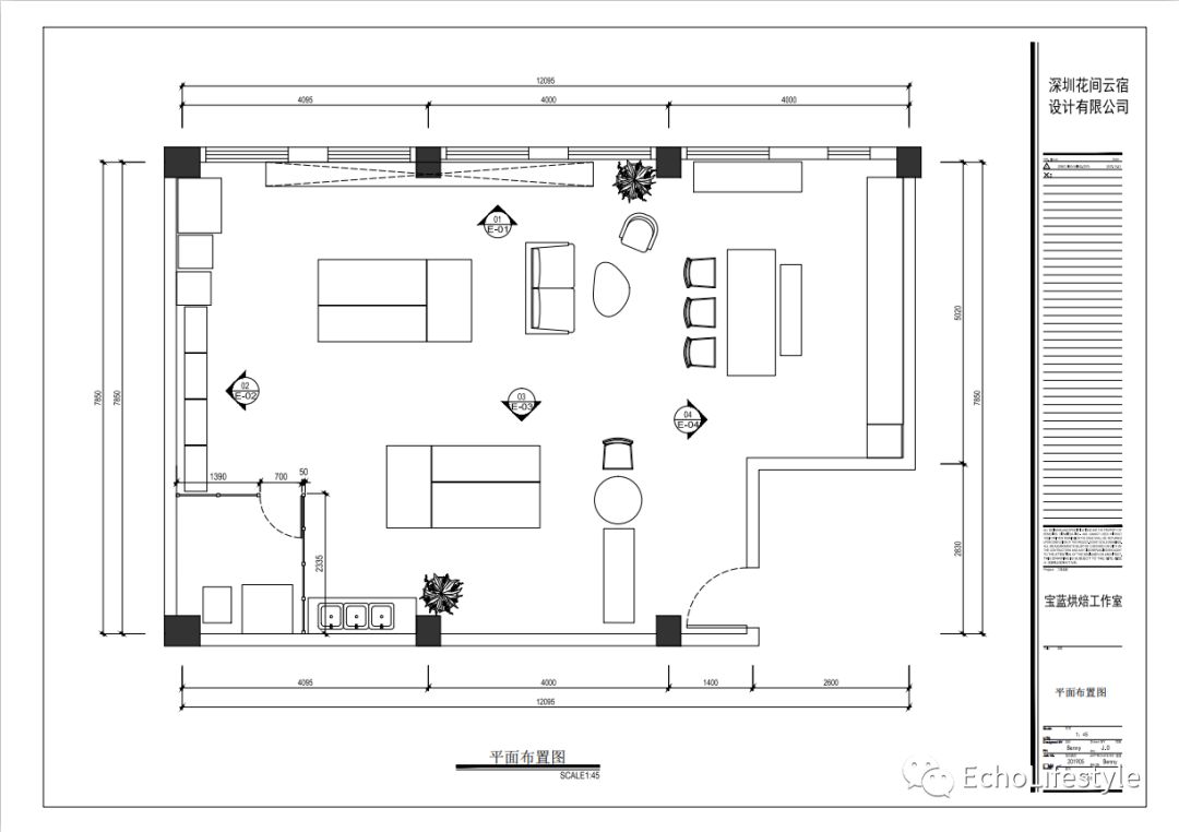
按照需求,分为7个功能区:甜点展示区、等候区、烘焙教学区、教具清洗区、烘烤房、餐厨区、休闲区。
为了让空间显得更通透开阔,只对烘烤房做了单独的玻璃隔间。其他区域完全开放。
一大面的玻璃窗也是稀有的资源,采光很好,尽量不要去遮挡。
ABOUTROOM
房屋信息
户型一室
使用面积
90平米
房屋位置
广东 深圳
装修花费
10万元ROOM SHOW
空间展示
户型图
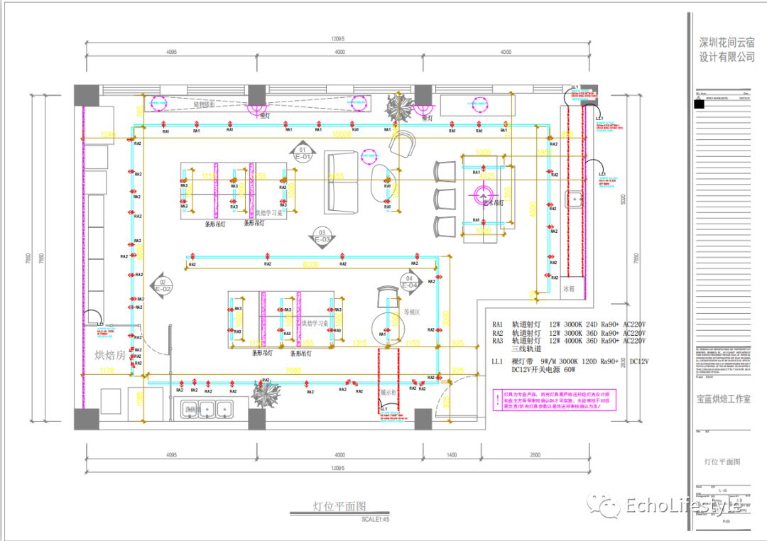
工作室灯位平面图
改造前
改造后
考虑到空间功能主要是烘焙教学为主,所以整体配色以白色为主,目的是显得干净清爽。窗框和天花都是重新喷白的,原来是灰色的。
窗户原来没有白色格条的,定制了格条加上的,成本不高但是却让这一排窗户成为空间养眼的风景。
甜点展示区和等候区
甜点展示区和等候区结合,放在入口处,此区域也用花砖做了分区。花砖是八月浅蓝念念不忘的所以局部用在了门口区域。
甜点展示区和等候区的效果图,实际还原效果很好。
烘焙教学区
烘焙教学区以两个大桌子组成。一个大桌子是原有的重新做了台面和门板,另一个集合了储物柜、洗碗池,原有的3个推车也放在了下面。
烘焙教学区效果图
教具清洗区
左侧教具清洗区做了2个洗碗池,以一颗大的龟背竹作为隔断。
烘烤房
烘烤房放了专业的烤箱和烤网车。
餐厨区
餐厨区的亮点是外装的复古陶瓷洗碗池,在复古风格上我和八月浅蓝是不谋而合的。
餐厨区效果图
白色橱柜搭配金色把手,洗碗池上方的金色挂钩架和精致复古器皿,美貌与实力并存。
复古陶瓷洗碗池,优雅爆表。
休闲区
休闲区以一个单人沙发和一个三人沙发组成,柠檬黄和橄榄绿的配色出跳也让人眼前一亮。
沙发搭配小圆几,温馨舒适。
储物区
没有特意留出空间做一个仓库,而是利用窗前的位置,定制了2个2米5的抽屉柜,共5米长,多个大抽屉和置物层板的组合收纳功能MAX。
靠墙摆放的一排置物架是原有的,让师傅帮忙刷了漆。
高低错落的绿植,赋予工作室蓬勃的生机。
QUESTION & ANSWERQ & AQ:
最后,文末硬广:这间梦想中的烘焙工作室在哪里呢?
想买甜点学甜点的朋友,欢迎来
Empty Plate
空盘子烘焙工作室体验!
地址:深圳市南山区南头街道1956数字文化创意园3B-501-1(三栋右手边电梯上)
客服
消息
收藏
下载
最近





















