查看完整案例

收藏

下载
极简是一种生活态度,以最简单的方式享受生活中真真切切的幸福。
小区名称/大发融悦东方
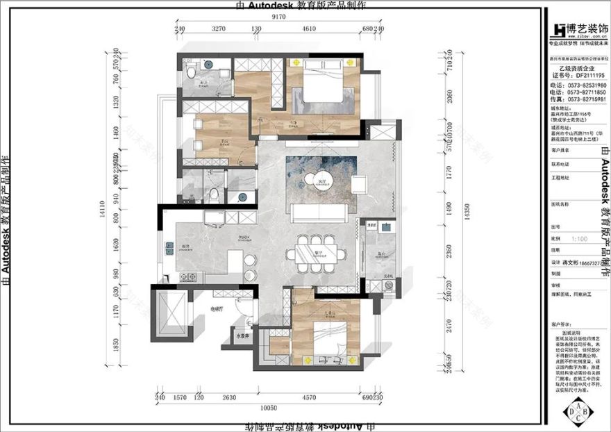
户型面积
/140m
装修风格/现代简约
设计师/蒋文彬
装修公司/博艺装饰
实景摄影
/Beny
户型图
门厅
入户一组玄关柜方便储物收纳,内设感应灯带,一进门点亮心中的温暖,卸下奔波的疲惫。
客厅
客厅与餐厅的归一,使得空间更加连贯,开放式的格局,加上大面积的窗户对空间尺度的拉伸,让空间更为宽敞。
木饰面与白色大理石岩板的协调应用塑造一出中性的美感,同色系皮沙发体验感满分,摆放一簇冬日里绽放的绿意,叙述一曲娓娓的向阳生活。
厨房餐厅
厨房与餐厅互为一又为二,岛台的设计延伸西厨的功能,同时串联餐厅,增加空间的互动感。
敞开式的设计让空间更为自由,整面到顶的木质组合柜,大气内敛,腔调十足。
主卧
卧室与客厅做一样的基调,去掉过多的装饰,简约内敛的气质在温柔中蔓延,一室的暖意散去周身的疲乏。
女儿房
卫浴
书房
本案设计师
蒋文彬
博艺首席设计师
设计理念:设计就是改变客户的生活方式,提高生活品质,让客户更有幸福感。
从业时间:10年
代表案例:罗马都市、南德大院、优优花园、奥园黄金海岸、铂金府邸、烟雨名门、金色恬园…
_____________________________________________
→ 案 例 赏 析
▲ 110m²富盛名邸 | 弄潮人的生活主义
▲ 300m² 桐乡
·爱悦思产后修复| 感受自然 开启身心治愈之旅
▲ 460m² 格兰英郡| 法式浪漫不负时光
等电位
”试试据说,关注
并分享
此文的小伙伴,男的都会发财,女的都会变瘦变更美...
邀约量房:地址+面积+
姓名+手机号
或
13372313151 博艺装饰
客服
消息
收藏
下载
最近

























