查看完整案例


收藏

下载
项目名称| Name:心归吾栖
设计单位| Design:品格装饰
设计主创| Designer:高翔
设计风格 | Design style:新中式
项目类型 | Project Type:住宅
主要材料| Materials:岩板,复合实木墙板,硬包,墙布。
Concept理念
家,都有它个性鲜明的符号,空间的光影、色彩、器物都见证了生活的格调和品位。它以无漆的纯粹来体味自然,每处看似无奇的布局,其实都藏匿着缜密设计的思考。
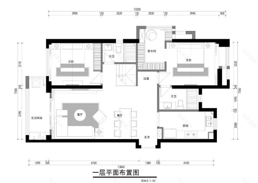
平面展示
/Plane display
效果图
/Design Sketch
化简为繁,选用清浅色调构建中式儒雅气氛。
Simplify to complex, choose light and light colors to build a Chinese elegant atmosphere.
空间中轴对称,层次分明,典雅的家居彰显质朴的人文情怀。
Axial symmetry in the space, distinct levels, elegant environment showing simple humanistic feelings.
无需过多修饰,犹如山水画卷,轻描淡写的晕染,营造中式的传统美学。
No need to describe too much, the painting is like a scroll of landscape, Both warm and elegant, creating Chinese beauty.
传述的留白对话间,将细腻工艺勾勒出绝妙空间。
The narrated blank dialogues outline the exquisite space with delicate craftsmanship.
一张茶几,几把椅凳,燃一线香,沏一壶茶,伴随茶香流淌缓缓沉浸在生活的诗意里。
A coffee table, a few chairs and chairs, burn a scent, make a pot of tea, and immerse yourself in life with the fragrance of tea.
隐形的时光消顺即逝,一日三餐,饱含五味杂陈。
The invisible time disappears quickly, three meals a day, full of five flavors.
历经春夏秋冬,它是对生活的美好点缀,亦是精神食粮的延续。
Through spring, summer, autumn and winter,It is a beautiful embellishment of life and a continuation of spiritual food.
萦绕在耳边的是阳光私语的味道,晒一室的温馨时光,享一生的美满时刻。
What lingers in the ear is the smell of sunshine whispering,The warm time in a room,enjoy the happy moments of a lifetime.
以精细雕琢的材质源源不断刻画古风禅韵的魅力,储一床的温语睡梦,酿一世的岁月平和。
Use carved materials to portray the charm of the retro, use good sleep, and change the peace of a lifetime.
在这自然空灵的东方意境与蕴含人文哲美的糅合之际,美与灵魂的优雅,现代家居的简练与东方风韵的自然交织,淬炼于一幅丰盈的生活美景,这便是定制赋予家的意义。
品格装饰设计
主案设计师
高翔
对待每一种环境的打造,品格装饰都以高度重视的态度,不断实践,不断总结,不断创新!
We treat each work with a serious attitude, Continuous practice, continuous summary and continuous innovation!
品格装饰 | 邂逅 · 如梦馨居
品格装饰 | 品质代言 · 格局创新
客服
消息
收藏
下载
最近




















