查看完整案例

收藏

下载
点击“我要装修”免费看案例,快速查报价
近几年"大横厅"的格局设计爆火,标配超大落地窗,自带一种高级感,越来越成为众多别墅、住宅的青睐,它究竟有何魅力?今天小编就带大家了解一下~
什么是横厅设计
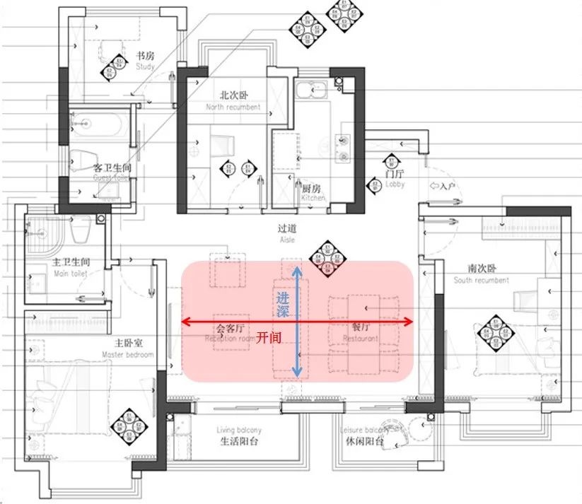
在区分什么是横厅、竖厅之前,有必要先了解下:开间,进深。
开间
是客厅的采光面宽度,通常是东西两墙之间的距离。
进深
则是垂直于开间,通常是南北两墙之间的距离。
横厅:开间>进深(客厅越宽敞)横厅的采光面宽,通常客厅与餐厅/书房/茶室等结合,形成开放一体式布局,空间宽敞,互动性强。
竖厅:开间<进深(客厅越狭窄)竖厅的布局一般按照玄关→餐厅→客厅依次递进的,客厅是采光面。
横厅设计的优缺点
优点:1.采光面大,整体采光、通风效果巨好,2. 减少了过道空间,空间利用率更高;
3. 带来多元化的空间布局,设计感强,可以联和客厅打造开放式的厨房、书房、茶室、亲子活动区等,为生活带来更多畅享空间。
4. 整体空间通透感更强,视野也更加开阔。
缺点:1. 横厅窗户占大面积,保温隔热效果差;
2. 沙发作隔断,后面没有依靠感,很多业主不是很适应;
3. 如果规划不合理,很容易造成空间浪费、视觉拥挤。
相对竖厅来说,横厅设计的要求更高,设计时要考虑周全,合理布局,充分利用空间。
横厅设计方案
01客厅+餐厅
客厅+餐厅是最常见一种横厅布局方式,比较实用。一般沙发做隔断,后面是餐厅,空间更加开放互动,中间留一定的过道空间,方便日常走动。
★布局建议:① 客餐厅之间
留一定的过道空间
,方便日常走动;
② 如果沙发做隔断,没有依靠感,可以在沙发背后增加矮边柜固定,增强安全感的同时也能增加收纳;
③ 有条件的餐厅背景墙要做餐边柜,或者餐桌选用带收纳柜的是餐桌或岛台,增加收纳功能。
02客厅+厨房+吧台
客厅与厨房一体式设计,视觉上更显时尚个性,墙面上面的阻碍,光线更好,空间也更加开阔敞亮。同时可能满足女主人一边备餐,一边关照家人在客厅的情况。
03客厅+餐厅+厨房
如果横厅面积足够大,可以做成客餐厨一体式,即LDK设计,让空间功能更加丰富,提高生活体验感。
★ 开放式厨房注意要点:① 油烟:建议安装吸力大的油烟机或集成灶,若平时做饭油烟比较重,也可在厨房的门口加一个玻璃隔断,能有效地解决油烟问题;
② 灯具:厨房的灯具不要安装的太多,同时灯具造型避免复杂,以便于后期清洁。
③ 电源安全:需要注意多预留些插孔,最好为每个厨房电器配一个插座,且均需安装漏电保护装置。
04客厅+书房
如果没有多余的房间做书房,可以利用大横厅的客厅做一个开放式书房,在沙发背后放一个长条书桌,以大面积背景墙做书柜,一进门就能让人感受满满的书香气息。
05客厅+茶室
客厅与茶室一体,通常运用于新中式风格的家,以彰显出居住对茶的独特爱好与品位。
06客厅+活动室
家里有娃,可以利用大横厅隔出一个空间,作为孩子们的游乐场,闲暇时这里陪伴孩子搭积木、弹琴、做亲子游戏等,增进和孩子的情感互动。喜欢运动的人还可以放一台跑步机,每天清晨起来锻炼一下,看着窗外的景致心情也更加得舒畅。
点击“阅读原文”,参与6周年回馈活动~
客服
消息
收藏
下载
最近





















