查看完整案例

收藏

下载
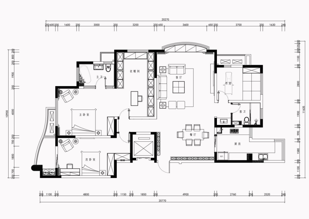
点击“我要装修”免费看案例,快速查报价本案是面积为183㎡的新房装修,业主为幸福的三口之家,对未来新家的定位非常清晰,以现代极简风格为主,要求储物空间要多,一间独立的办公空间,厨房空间大一些,女儿房做日式奶油风格,希望设计师以美学视角,借助原结构隔墙,结合一家人的生活习惯及爱好,合理划分好每个空间的设计需求。设计亮点
1.客餐厅做无主灯,地面瓷砖使用柔光砖。
2.客卫生间干区墙面刷艺术漆,没有用正常的瓷砖铺贴。
3.厨房在原来的基础上,把北阳台扩建进来,扩大厨房使用面积,添加倒台,提升业主的幸福感。
4.根据业主家需求,主卧做大套间,除了居住功能还增加衣帽间套书房的功能结构。
5.主卧卫生间做雾化玻璃,使卫生间的空间感增大。
6.女儿房做日系奶油风格。
01客厅Parlour
设计师出其不意的提取蓝色,置入了空间,通过不同饱和度的蓝晕染出优雅舒适的空间气质。
蓝色与棕色的碰撞组合,使恬淡的休憩空间多了一份大气沉稳,再加上装饰摆件的修饰,提升视觉感受。
蓝白的纱质窗帘暂时隔绝了外面的纷扰,恰好让稀疏的阳光洒落进来。
无主灯光照明,以分散性的光芒,营造舒适的光感氛围,搭配地面的柔光砖烘托出浪漫且极具艺术情调的温暖空间。
0客卫Parlour
客厅卫生间的洗漱区从淋浴区和坐便区独立出来,移至外面,外面洗漱、里面淋浴互不干扰,一个亮点在于干区洗漱区刷了艺术漆,简洁的台下收纳柜也更显得沉稳而不张扬。淋浴区用玻璃移门隔断,这样卫生间内就做了简单的二分离,干湿分离的效果也很好。
03餐厅Restaurant
谁能拒绝的了美食的诱惑呢?忙碌了一天的工作或学习后,召齐家人,围坐黑色岩板餐桌、深灰色的皮质餐椅,伴随着舞动的暖气片,一家人互诉心事,让餐厅成为亲情和香味交流的自留地。
餐厅上方选用吊线灯,营造舒适的用餐环境,与厨房门口上方的磁吸轨道灯形成对比,使空间层次感增强。黑白搭配的整墙嵌入式餐边柜与墙面的装饰形成对比,极简有富有生活品味。
4厨房Kitchen
厨房根据业主需求,把北面阳台扩进厨房,增大厨房的使用面积,厨房地板选用木纹砖,墙面选用白色大理石搭配深灰色橱柜,视觉上空间开阔,加上原木色吧台的点缀,即与厨房相呼应,光线明亮,促使用餐氛围更加轻松。
5走廊Corridor
长长的走廊通向主次卧方向,灯槽的质感影响着光的表达,设计师精选铝制灯槽不易氧化,加上灯槽自带的磨砂感,出光更加柔和无光眩。在过道墙面、顶面使用这种灯槽,配上暖光灯带,让地面的光线顺着狭长的过道流动,指引着入户的动线。
06主卧M.Bedroom
主人卧室设计师预留了充足的空间,做成融合书房、衣帽间和主卫的大套间,用深灰色集成墙板做背景墙,再搭配豆沙色家具,让人舒适而放松。当清晨的第一缕阳光洒落,卧室的惬意便悄然扩散。
在整体灰色的调性下,搭配玻璃装饰吊掉线灯,增强空间感的同时也增加了细节质感,静谧中带点质朴,使这个灰度空间里不会显得沉闷,一踏入室内,归家的宁静和安逸便扑面而来。
根据业主需求,在衣帽间旁添加独立办公空间,墙面与门采用白色为主,挂墙的白色暖气片为空间注入吻合人体适宜的温度,在简约的落地灯的陪伴下,阅读、学习,使人倍感舒适、平和。书桌和衣柜用黑色搭配,这种搭配方式让书房更显简约、时尚,而且通过经典的黑白色对比,也令空间显得更加明亮、有质感。
主卧卫生间的门选用雾化玻璃,卫生间的墙面地面铺贴不同规格的白色大理石瓷砖,集成吊顶,灰色的浴室柜搭配黑色大理石的台面,与白色的马桶、浴缸形成对比,在阳光的照耀下,显露出一丝高级感。
07
女儿房
D.room
女儿房做了女孩喜欢的日式奶油风格,墙面刷了奶咖色乳胶漆,搭配吊线灯,家具选原木风格,奶咖和原木风格的碰撞,整个空间给人带来轻松、活泼的氛围感。
书桌兼顾了梳妆台功能,衣柜结合镂空书柜的虚实设计,减少柜子本身带来的压迫感,使空间内部更加活跃、温馨。一间软萌可爱的女儿房就此搭建,孩子也将在盛满父母爱意与期望下,茁壮成长。
E·N·D
◎项目信息
项目名称| Project :伟星左岸生活
项目类型| Project Type :新房装修
建筑面积| Floorspace :183㎡
房屋户型| housetype :4室2厅1厨2卫3个阳台
装修风格| Decoration style:现代极简风格
主案设计| Designer :张彩霞
施工单位| Construction Unit :金螳螂.家芜湖弋江店
张彩霞·设计师
所属门店金螳螂·家芜湖弋江店
个人自述毕业于安徽工程大学环境艺术设计专业,从业十几年,我之所以热爱设计是因为我热爱生活。
性格开朗、对待工作认真负责,有些许的完美主义和强迫症,随时与客户沟通、建议,共同完成双方心中最满意的方案。
擅长风格新中式、北欧、美式、欧式、现代、中式。设计理念人可以改变环境,环境可以影响人,而设计则可以改变人和环境。
优秀案例皖江壹号院、东湖壹号院、颐景湾畔、蔚蓝海岸、外滩府、古城等。热文推荐
POPULAR ESSAY RECOMMENDATIONS
点击“阅读原文”,查查我家装修多少钱?
客服
消息
收藏
下载
最近






























