查看完整案例

收藏

下载
点击“我要装修”免费看案例,快速查报价现代真正的家宅,不再像过去一样披金戴银,贵价堆砌式的家,而是体现空间与人的契合性,更体现在生活方式上。本案业主是一对80后夫妻,有一对天真可爱儿女,这四口之家正将迎来他们的幸福生活。同业主良好地沟通后,设计师精准地把握到业主喜欢的调性:很喜欢意式轻奢风,整体可以接受很高饱和的深色调性。因为对设计师的足够信任,整个沟通过程非常顺利,设计方案也是一稿通过。设计方案
Effect drawing
168
的住宅里保留三间卧室,公区空间追求足够的宽敞与调性的奢美,客餐厅厨房及入口一体化,设计手法加入带天然石英成分的大理石,进一步强化材质的奢华美感,大量全深色调的使用,更加突出空间的层次感与自我个性。住宅反应的就是生活在这个空间里面人的个性和品味。家宅是自我的环境,也是自我的境界。下面一起来看看这个实景落地的美家~
实景美家
Real map
△原始结构图
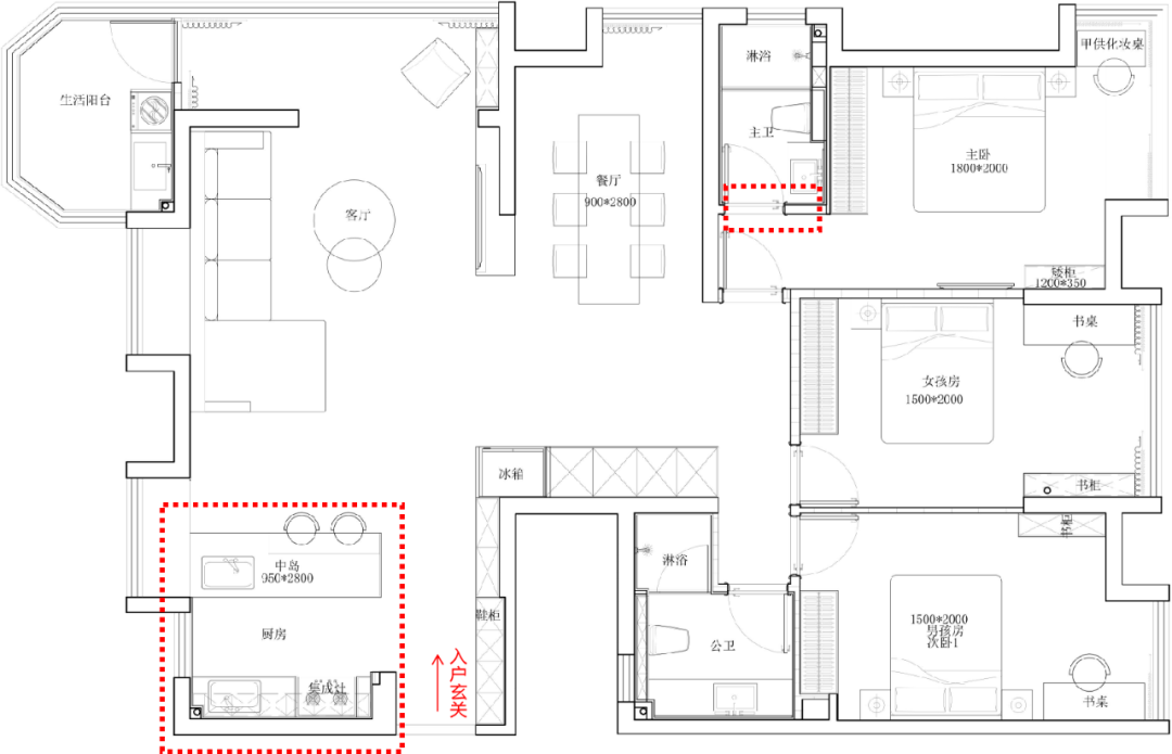
平面布置图
户型优化:1. 拆除原封闭式厨房的非承重墙,建立中岛台,打造开放式厨房,提高空间的互动性、开阔性。
2. 优化主卫开门位置,增加生活舒适度。
客厅
意式轻奢
“意式轻奢”删繁就简,远离一切浮华和不实用,从生活的本质出发,以极简的设计演绎最本质的轻奢美学。
大理石纹砖通铺客餐厅厨房区域,视觉上使空间更加开阔统一,将客餐厅厨房融合贯通,真正呈现餐厨客厅空间一体化。
悬浮式电视墙设计,将美观与艺术性完美融合,在轻盈的视觉中,减少黑色带来的沉重感。
深色背景的木纹板无缝切合电视,并与深色大理石地台组合,高级且富质感,低调中彰显居主品质奢华。橙红色的休闲座椅仿若点睛之笔,瞬间吸引所有瞩目,成为炽热的空间焦点。
棕色皮质沙发,带有独特的怀旧复古的气质,宽大而舒适的外形,无形中为空间注入了温暖与沉稳,待归家的人坐在这里休息,放松疲惫的身心。
厨房优质选材低奢美的空间,来自真实存在的事物,来自人置身空间里时,近距离感官美设计和材料的触感与优秀的空间使用者,而不是简单粗略的财富炫耀。
材质是空间层次与品质的塑造者,带有天然石英成分的大理石中岛台与深色的天然木质柜门及顶部装饰面材,保持整体空间的一致性,进一步强化了材质奢华美感。
入口右侧鞋柜及餐厅嵌入式冰箱柜、收纳柜做成一个整体,将收纳空间发挥到极致。开放式厨房及中岛台的打造,实用且作为整体空间层次的补充。餐厅层次递进。
餐厅由其中一间卧室改造而成,暗色的色调填充,让元素的呈现更具质感,碳灰的柜面与哑光黑的餐桌,嵌入小部分的深色木饰面材与大理石,让视觉有了递进的层次展现。
卫浴奢华体验
独立式的淋浴间
2米的超大洗手台
及
壁挂式马桶
,完全做到了超五星级酒店奢华体验感,将格调品味与时代审美进行融合,强调意式轻奢的永恒美感。设计思维是“道”,手法和技巧是“术”,“术道兼备”才能最终方案落地软硬装一体的设计,才是全案设计落地的底层逻辑。
E·N·D
◎项目信息
项目名称| Project :城投广场
项目类型| Project Type :新房装修
建筑面积| Floorspace :168
房屋户型| housetyp
e :三室两厅一厨
装修风格| Decoration style:意式轻奢
主案设计 | Designer :杜桂华
施工单位 | Construction Unit : 金螳螂·家 三明店
◎ 设计师介绍
杜桂华·设计师
所属门店】金螳螂·家三明店
个人自述深耕私人住宅设计16年,设计总监、大宅高端定制设计师,金螳螂家十佳金牌设计获奖者。
擅长风格法式、新中式、美式、现代、中式等。
设计理念通过设计把人带到城市氛围,却依然有自然环境感觉,模糊自然环境与建筑边界。
优秀案例三明上河城别墅、碧桂园别墅、碧桂园天墅、沙县永安别墅、时代颐园楼中楼、将乐顶层复式、城投广场大平层。
热文推荐
POPULAR ESSAY RECOMMENDATIONS
点击“阅读原文”,参与6周年回馈活动~
客服
消息
收藏
下载
最近






























