查看完整案例

收藏

下载
点击“我要装修”免费看案例,快速查报价本案是一套三房改两房的婚房新居,一屋两人,三餐四季,是他们对未来美好生活的共同期许。男业主是一位商务精英,有着缜密的逻辑思维,对一切加以审视消化,希望家里整体风格硬朗冷峻,而作为女业主的老师,性格随遇而安,希望家的氛围更为温馨舒适。
设计师将夫妻二人对空间的不同诉求做了整合,从客厅开始就把家打造的足够温馨自然,而搭配的家具、摆件,保有精致舒适,也流露出沉稳、冷峻的生活气息。
# 客厅 #
“放松、欢笑”是整个家的主旋律,设计师以米色的乳胶漆打底,搭配的原木电视柜、木色皮质沙发等,奠定温馨舒适的家居氛围,绿植鲜花的点缀,又为客厅空间注入鲜活生机,让屋主每天从繁忙的工作中解放出来,享受归家的温暖和惬意。无主灯设计,间接的照明让空间更富有层次,黑色灯槽穿插其中,塑造简约硬朗的格调。
#餐厅#
四人位的餐桌摆上俏皮可爱的摆件,精心设计的餐边柜,现代感十足,成为餐厅的一处亮点,餐厅在精致吊灯的照映下,给用餐足够的氛围。空间中大面积墙面留白,彻底摒弃装饰与华丽,呈现高度真实且单纯的自然之美。
卧室作为休息空间,干净整洁是最好的状态。卧室设计注重功能和空间的协调性,整个空间以浅色作为主色调,融合高级木色为辅,在自然光线的引入下,没有多余沉重的造型,有的是充满了阳光和呼吸的感觉。一切沉寂简单的格调,目光所及之处,只有简约、明了,少即是多的空间氛围。
E·N·D
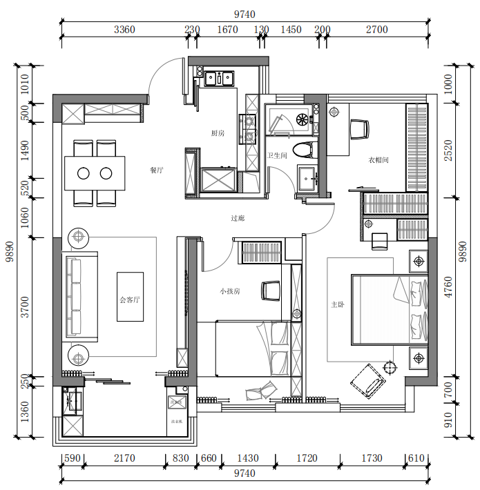
◎项目信息
项目名称| Proje
ct : 凤凰汇紫园
项目类型| Project Type :婚房装修
建筑面积| Floorspace :
127m
房屋户型| housetype :三室
装修风格| Decoration style:现代风
主案设计|Main case design: 严伟祥
施工单位 | Construction Unit :金螳螂·家盐城店
◎ 设计师介绍
严伟祥·设计师
所属门店:金螳螂·家盐城店
个人简介:毕业于南京艺术学院,在室内设计从业之路一直向建筑领域探索,比较喜欢看一些建筑作品,以及把他们的形态记录下来从中得到设计思路启发。获奖荣誉:《中国建筑装饰协会》注册设计师,2016年鲲鹏奖;中国室内设计大赛大宅空间一银奖2016年现代设计奖人文金奖;2018年idol锋范奖别墅空间金奖;2019年第七届中国室内大奖;TINTA AWARD金邸奖。擅长风格:美式、现代、中式。设计理念:好的设计也许改变不了所有,却足以重塑日常,而更好的日常,也许就是生活该有的样子。代表作品:大公馆、中南熙悦、森林红郡、钱江绿洲、金庭苑、恒大帝景。热文推荐
POPULAR ESSAY RECOMMENDATIONS
点击“阅读原文”,参与十大礼遇焕新家活动~
客服
消息
收藏
下载
最近






















