查看完整案例

收藏

下载
点击“我要装修”免费看案例,快速查报价工艺 / 设计 / 装修 / 生活美学遇见金螳螂家·遇见品质生活
SUZHOU, 2020, GOLD MANTIS HOME
建筑的实质是空间,空间的本质是为人服务。——约翰·波特曼
本案业主是一位资深传媒从业者,渴望安静、轻松地生活氛围。
结合业主的品味,我们将风格定位为现代新中式,保留了传统中式的含蓄典雅,又融入了新时代的元素,彰显现代品质感。在意境东方主题之下,着力于“取意”,并寻求更多的现代精致。
■ 项目信息
项目地址|Project address: 兖州锦绣城
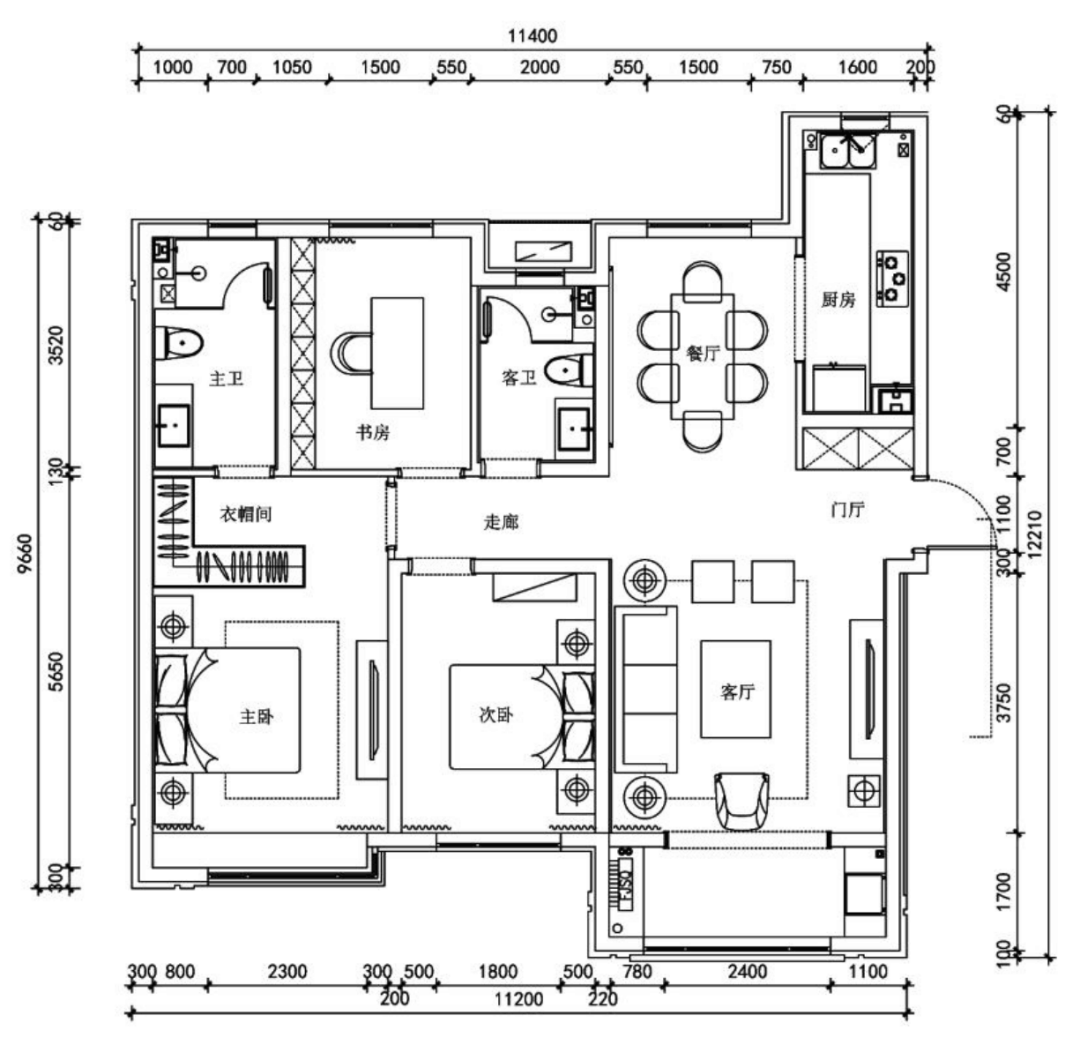
建筑面积|SquareMeters:220㎡
房屋户型|Housetype:5室3厅1厨2卫
装修风格|Decorationstyle:新中式
主案设计|Designer:信玉伟
施工单位|Construction:金螳螂·家济宁店
客厅
摒弃纷繁冗杂的装饰,以素雅的色调和洗练的线条,来表达古典美与现代美的融合魅力。全屋利用黑白灰为基底色,一抹中国蓝,带着中式的文化底蕴,营造了宁静又治愈的生活氛围。
餐厅
三餐茶饭,四季衣裳,细水长流的生活汇聚于此。
水墨溶于的空间赋予了餐厅沉稳理性的基调,繁华不显,气质内敛。
厨房
厨房延续了客厅的素雅,视觉上以白色为主,简洁清爽。靠墙做成连贯的操作台面,不浪费空间。吊柜中间的集成灶以外露呈现,避免了整墙的柜体带来压抑感,也使空间更富有层次,通透美观。
卧室
主卧空间优雅与禅意交融,透过设计手法,巧妙糅合空间、文化与生活艺术,彰显居者奢华内敛的人文气度和府门涵养。
-END-
金螳螂家装修,驻足细节,给你有温度的家。长按关注金螳螂家视频号扫码进入视频赏家分享时尚家装装扮美好小家
戳这里,装出又美又省钱的家~
客服
消息
收藏
下载
最近














