查看完整案例

收藏

下载
点击“我要装修”免费看案例,快速查报价工艺 / 设计 / 装修 / 生活美学遇见金螳螂家·遇见品质生活
SUZHOU, 2020, GOLD MANTIS HOME
世间再大,也不过一个四方的家,守着日子,幸福安康。
No matter how big the world is,It’s just a square home,Keep the day,be happy and healthy.
本案业主是一对即将迈入婚姻殿堂的情侣,此房作为婚房,他们希望房间整体的装修风格给人简约而不失格调感,恬淡清新却富有生活朝气。以简约风家具为基调,辅以设计感与调性的配饰物件的ins风或许能够满足他们对家的期许。
■ 项目信息
项目地址 |
Project address
蓝天新苑
建筑面积| SquareMeters : 126㎡
房屋户型| House type:3室
装修风格| Decoration style:现代
主案设计|Designer : 凌鑫
工程管家| Project Manager:吴俊阳
施工经理| Construction Manager: 张晓龙
施工单位|Construction :金螳螂·家常州天宁店
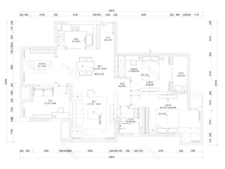
▲原始户型图
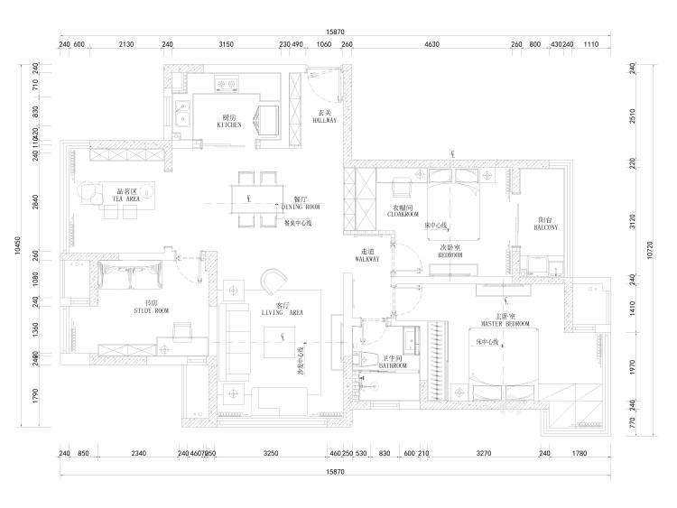
▲平面布置图
■ 设计说明
本案户型为标准的3房2卫2厅的格局,整体空间布局通透,客厅与餐厅都有大落地窗,采光和通风成为该户型最大的优点。其合理的空间改造,充分发挥了户型的隐藏属性。全屋色调以黑白灰为主,配以淡粉色、富有质感的装饰及简洁的线条,赋予空间以现代优雅的家居气质。
客厅Living room
灰白打底铺开的空间,克制而冷静,简约而富质感。淡粉色乳胶漆的电视背景墙,不经意间为空间注入了妙不可言的暖意。
一高一矮的圆形茶几与圆形主吊灯,相映成趣,彰显着家的独特气质。
一天最放松的时刻,大概就是下班后吧,打开电视,躺在软绵绵的亚麻沙发上,品着自己喜欢的饮料,不可言说的幸福从眼角溢出。
充满现代风味的铁艺支架、塑料插花、灰系挂画都为鲜活的日子注入艺术气息。
餐厅Restaurant
浅粉色的墙面、白色大理石餐桌,再配合深色的餐椅,一点简单的设计就让家有了烟火气。
大面积的落地窗,包揽了窗外美景,令三餐四季都变得如此浪漫、有情调。
主卧Master BedRoom
简雅的卧室里,没有一笔多余的勾勒,让空间回归最本真、最舒服的状态。
利用户型本身的结构,设置榻榻米,在一个惬意的午后,品茗听雨,或翻阅许久未看的书,沉淀在诗意的季节里,依着夕阳的余晖,慢慢待年华老去。
皮质的靠背,木质的床头柜,充盈着浓浓的后现代主义风格。儿童房
Children’s room
儿童房又是另一番景象,整体采用了活泼跳跃的暖色系,用不同的色调来区分空间层次。
为了弥补空间的局促,设计师将开放式衣帽间与书柜书桌结合起来。选用舒适温馨的木质造型床,如梦如童话,给小主人营造一个温馨梦幻的休息空间。
书房The study
男业主是一名人民教师,偶尔需要备案教案,但也希望书房能够满足其他功能。
基于此类需求,设计师将该空间打造成一间集书房、客卧、储物于一体的多功能房,这样的配置大大方便了生活需求。
卫生间
Toilet
整体采用浅灰瓷砖与深咖原木材质,其简洁的质感,不仅彰显了一种精致、美好的生活态度,还透露出不俗的品味。
-END-
金螳螂家装修,驻足细节,给你有温度的家。
ABOUTDESIGNERS
凌鑫·设计师
从业经验:5年以上
个人自述:成为不断为客户提供更好服务的设计师
擅长风格:现代 日式 轻奢 新中式
设计理念:一套好的设计作品 是需要业主设计师 匠人的有机配合完成
代表作品:银河湾名苑美式宅邸设计 碧桂园新中式宅邸设计 星韵城现代宅邸设计 雅居乐轻奢宅邸设计 国宾壹号日式宅邸设计 路劲样板房室内设计
近期热文
长按关注金螳螂家视频号
看视频轻松学装修技巧
让家从此告别土味风~
点击“阅读原文”,免费查报价~
客服
消息
收藏
下载
最近

























