查看完整案例

收藏

下载
最好的生活是,有人爱、有事做、有套自己喜欢的房子,简单最快乐。
最近气温一路飙升,人人都换上了轻便的春装,当然你的家也不例外,今天小编带来了一组色彩丰富、富有春日气息的欧式轻奢案例,时尚大气,温馨舒适,一直广受时下客户的喜爱。希望今天看到的快乐依旧哦~
案例简介
小区名称:太平洋城中城
户型面积:207平方
户型结构:联排别墅
设计风格:欧式轻奢
设计师:薛杨
设计单位:润邦装饰
设计说明:轻奢将大行其道,欧式轻奢的元素与现代的简洁装饰手法相融合,将指引着人们在自己的私人空间中进行一场新的文艺复兴革命,空间里不仅会出现欧式轻奢的线条艺术,现代的简洁色彩与材质等元素都将出现在你的视野中,使整个空间的时光得以沉静优雅的同时而又不失奢华质感。
我们追求新鲜感的同时,又渴望着平凡与宁静,营造一个家,在宁静温馨之上,带点生活上的新鲜感,用艺术的感性营造生活,用现代的理性规划生活。
客 厅
将简单的轻奢韵味延伸至都市的居住空间,抛弃繁冗的雕饰与造作,拥有品质感而不浮华的客厅空间。
餐 厅
敞开式厨房的设计,使整个餐厅空间变的整洁而宽阔。顶部金属线条装饰,在黑白灰的空间中让人眼前一亮,造型别致的水晶吊灯更有画龙点睛之笔。
休闲区采用白色大理石材质吧台,空间中搭配橙色与蓝色的软装,让整个空间充满乐趣。
卧室温馨色调,舒适质感
主卧米色护墙与硬包的碰撞加以深色的窗帘,推开门便是一片优雅、高贵之处。
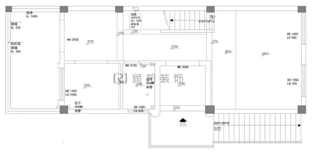
▲一楼原始结构图
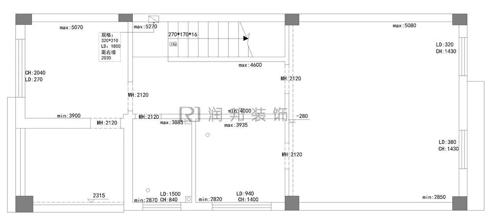
▲二楼原始结构图
▲三层原始结构图
▲四层原始结构图
本案设计师薛杨职位级别:主任设计师从业年数:10 年所属公司:润邦装饰无锡公司毕业院校:南昌工程大学,进修于四川美术学院设计学院设计理念:室内设计是一件“受人之托,成人之美”的事,因为每一天自己都快乐着,每一次都与别人分享快乐,每一次又都在快乐的探讨中去突破而拥有新的快乐,如果每一天的工作都是这样的,人生怎能不幸福呢?所获荣誉:第三届中国国际空间环境艺术设计大赛(筑巢奖)优秀奖CIDA中国室内装饰协会会员CIDA中国室内装饰协会注册中级设计师2011年家装博览会设计师主题设计银奖2011年荣获第二届南京市装饰设计奖“公装类”佳作奖第五届中国国际空间环境艺术设计大赛(筑巢奖) 优秀奖“为中国设计发声”2014全国精英人物2015年荣获“中国新锐设计师”称号2016年中国国际亚太空间环境艺术设计大赛优秀作品奖“为中国设计发声”2017全国精英人物2018粤港大湾区设计高级研修班“家”作为生活的重要载体已经不再只是居住的空间是一种生活态度和生活方式的体现。
点击阅读原文立即预约
客服
消息
收藏
下载
最近















