查看完整案例


收藏

下载
我走进大自然,安抚和治疗受创的心灵,再一次拾回我对美好事物的感觉。
清新如大自然清晨的草木,淡定而从容,抚慰受伤、不安定的灵魂。
本案例是一个旧店改造,店主是相识已久的老友,美丽兼智慧于一身,此次合作已是第五次,默契一次更甚一次,见证了彼此的成长,并相互成就,之间的每一段旅程,犹如一次重新恋爱的过程,碰撞并发现更好的自己。
改造前后店里的营业性质类似,下面一起来品鉴下改造前后的变化。
一楼大厅改造前
一楼大厅改造后
温润的养生茶,一股浓郁的芳香从清透的汤汁中飘逸而出,袅袅绕绕,于是乎,像打太极,目不旁视,静心,深吸,引导香气直抵丹田,转而频频呼出,顿觉理气通脉,神清气爽。
返璞归真的水泥竹子纹路墙面,贯穿墙体的原始木桌,休息、等候的客人品茶聊天,览尽外面人来人往,有了墙体稍微遮挡,里面的人又多了份属于自己的宁静,这种感觉甚妙。
满顶的纱幔搭配原生态的墙面、绿植,端起一杯清茶,是否有种自然的仙气,享受健康美丽的同时,身心也得到了极大的放松。
楼梯改造前
楼梯改造后
舍去传统的栏杆扶梯,红黑搭配的楼梯是楼下楼上色系的衔接色,为楼上房间的色调做了完美的铺垫。
二楼改造前
二楼改造后
房间的主要色系从楼梯间延续上来,淋浴区营造了一种在自然中沐浴的感觉,整体的色系以及用品经过设计师和店主的用心搭配,希望客人在自然舒适的环境中用心感受精油芳疗带来的身心放松!
精油,感谢大自然的造物神功,为人类带来了如此佳品,让人们身体更健康,生活更美妙。芳香疗法的魅力在于它既是严谨的科学方法又是关乎美学的生活艺术,用我们纤细而敏锐的感受幸福的能力,用心感受生活。
在触摸中觉知,在芳香中疗愈,学习倾听自己的身体,正是学习爱自己的方法。
设计施工过程中值得纪念的点滴——
19年3月6日——设计方案敲定
19年4月18日——选样
19年5月16日——施工过程中设计师即兴作画
一层原始结构图
二层原始结构图
一层平面布置图
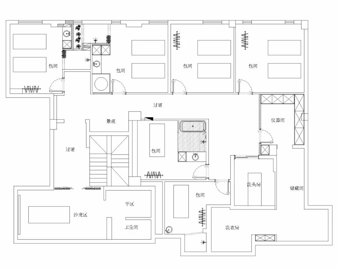
二层平面布置图
店主心语:让我们能够与精油结缘,是上天对我们特别的恩赐,因为精油是上帝赐给我们人类最好的礼物,精油用爱的生命能量守护着我们,让我们时刻与大自然的气息在一起。我们也爱喜欢大自然的朋友们,所以,我们不断探寻世界上最纯正的植物精华,分享给喜欢芳香生活的每一位朋友,让身心上流淌的每一滴精油都结出美丽,健康,喜乐,温柔,善良,优雅,有节制,充满爱的硕果,让我们共同演奏天然植物精华与爱的馨香之气的美好生命乐章!
特别感谢软装赞助商——万仟堂
项目名称︱原朴﹒芳疗恒大店
项目地址︱江苏江阴
设计施工︱春秋空间设计
设计师︱春秋空间设计团队
摄影师︱ing丛林
美丽热线:代表作品︱春秋空间设计 丨宁静·归
春秋空间设计 | 拾光·音
春秋空间设计 | 荏苒 · 伴
春秋空间设计|化繁为简,追求自然
春秋空间设计 | 小隐生活
客服
消息
收藏
下载
最近






































