创作上传
VIP
收藏下载
登录 | 注册有礼
知末案例
/
吴忠亮高端室内设计师
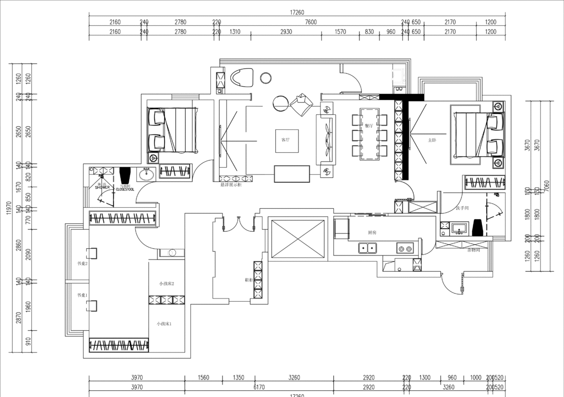
山海湾9-2-3002徐总雅居设计方案
2021/01/09 00:00:00
查看完整案例
微信扫一扫
收藏
下载
分享
你可能还喜欢
换一换
60 Curzon 公寓丨英国伦敦丨Tatjana von Stein
Casa a Ponza 公寓丨意大利丨Carla Bruzzesi
瑞典 Gothenburg 市中心明亮温馨一居室公寓
俄罗斯 18 层顶层公寓,多层次空间与自然金属元素的创新结合
莫斯科凯旋门宫豪华公寓,Nikolashin 打造现代生活空间
UIC大厦V on Shenton重建,新加坡 / UNStudio
昆明恒大城13栋1406朱总雅居
昆明西山区金地中心a栋9楼美容院
云南泸西锦辉广场银座酒吧
昆明江东花园四季园关医生花园设计
昆明宜良游客中心方案设计
红河弥勒市锦屏后海别墅主卧设计
云南省丽江市荣城商业综合体灯光亮化项目
昆明呈贡涌鑫哈佛中心时尚天街3楼
云南昆明寻甸松园尚居样板房设计方案
昆明高原明珠五金市场办公楼B8-7
云南红河泸西金马路厂房改造办公室设计方案
大理莱海慢摇吧酒吧
客服
消息
收藏
下载
最近